Eladó Lakás
Hirdetéskód: 9288885
Dunaharaszti Bocskai utca 10 - OTP Ingatlanpont Iroda
Felújításhoz személyi kölcsönt keres? Kalkuláljon itt! →52.00 m2
ALAPTERÜLET2
SZOBASZÁMnincs megadva
ÉPÍTÉSnincs megadva
FŰTÉS- CSOK igénybe vehető nem
- Tetőtér beépíthető nem
- Építés éve 1980
- Klíma nem
- Szigetelt nem
A+++
A++
A+
A
B
C
D
E
F
G
H
I
Az ingatlan leírása
Eladó Budapest Csepel Erdősor városrészében egy kiváló elosztású, 52 nm-es földszintes lakás!
Ez a kedves otthon mindössze 15 percre található a Szent Imre tértől, és 40 percre a belvárostól, így kiváló közlekedéssel és kényelmes életvitellel várja új tulajdonosát.
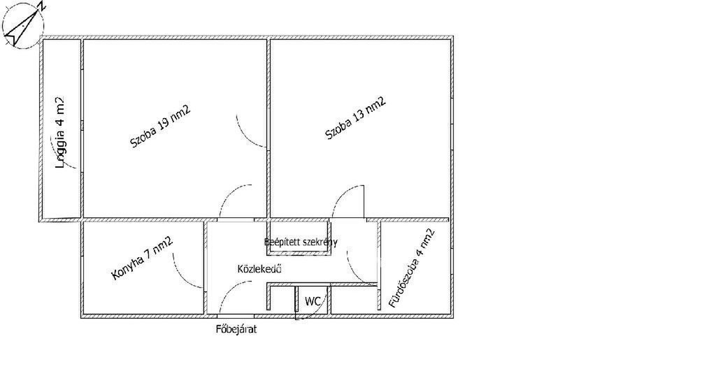
A lakás két tágas szobából, konyhából, fürdőszobából, WC-ből, közlekedőből és loggiából áll, mindez jól kihasználható, praktikus elrendezéssel. A nyílászárókat 2019-ben korszerűsítették, biztosítva a jó hő- és hangszigetelést.
A társasház rendezett, karbantartott lépcsőházzal rendelkezik, és a panelprogram felújásának köszönhetően a közös költség alacsony, így hosszú távon is kedvező fenntartási költségekkel számolhat.
A környéken minden adott: közelben orvosi rendelő, óvoda, iskola, valamint bevásárlási lehetőségek. A Wittner Mária Parkban pedig zöld övezetben sétálhat, kikapcsolódhat.
Ez a lakás ideális választás lehet családalapítóknak, egyedülállóknak, kis családoknak vagy idősebb generáció számára egyaránt.
Az Otthon Start Hitel csak akkor vehető igénybe, ha a vásárló minimum 50% önrésszel rendelkezik.
Ne hagyja ki ezt a remek lehetőséget! Hívjon még ma, és tekintse meg személyesen!
Referenciaszám: M321373
#csepelszeretem#csepellove#csepellakas#
Ez a kedves otthon mindössze 15 percre található a Szent Imre tértől, és 40 percre a belvárostól, így kiváló közlekedéssel és kényelmes életvitellel várja új tulajdonosát.
A lakás két tágas szobából, konyhából, fürdőszobából, WC-ből, közlekedőből és loggiából áll, mindez jól kihasználható, praktikus elrendezéssel. A nyílászárókat 2019-ben korszerűsítették, biztosítva a jó hő- és hangszigetelést.
A társasház rendezett, karbantartott lépcsőházzal rendelkezik, és a panelprogram felújásának köszönhetően a közös költség alacsony, így hosszú távon is kedvező fenntartási költségekkel számolhat.
A környéken minden adott: közelben orvosi rendelő, óvoda, iskola, valamint bevásárlási lehetőségek. A Wittner Mária Parkban pedig zöld övezetben sétálhat, kikapcsolódhat.
Ez a lakás ideális választás lehet családalapítóknak, egyedülállóknak, kis családoknak vagy idősebb generáció számára egyaránt.
Az Otthon Start Hitel csak akkor vehető igénybe, ha a vásárló minimum 50% önrésszel rendelkezik.
Ne hagyja ki ezt a remek lehetőséget! Hívjon még ma, és tekintse meg személyesen!
Referenciaszám: M321373
#csepelszeretem#csepellove#csepellakas#