Eladó Lakás
Hirdetéskód: 9253298

Domus Plusz Partner Kft. (OC)

Felújításhoz személyi kölcsönt keres? Kalkuláljon itt! →
FIX 3% Program

Ez a hirdetés megfelelhet a FIX 3%-os programnak.
Tudj meg többet a részletekről itt.

48.00 m2
ALAPTERÜLET
2
SZOBASZÁM
nincs megadva
ÉPÍTÉS
Elektromos
FŰTÉS
  • CSOK igénybe vehető nem
  • Tetőtér beépíthető nem
  • Építés éve 1955
  • Fűtés Elektromos
  • Klíma nem
  • Szigetelt nem
Energetikai besorolás: Nincs meghatározva
A+++
A++
A+
A
B
C
D
E
F
G
H
I

Az MBH Bank személyi kölcsön ajánlata

Fizetett hirdetés
1 millió Ft
6 évre
20 585 Ft/hó
THM: 14.5%
Részletek →
2 millió Ft
6 évre
41 169 Ft/hó
THM: 14.5%
Részletek →
3 millió Ft
6 évre
61 754 Ft/hó
THM: 14.5%
Részletek →

A tájékoztatás nem teljes körű és nem minősül ajánlattételnek.

Az ingatlan leírása

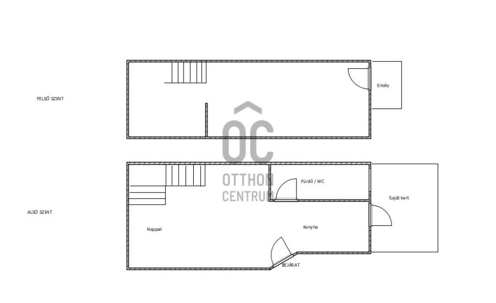
XX. kerületben, a Honvéd utcában ELADÓ lakás
Közös belső udvarból nyílik a lakás
Ez a legutolsó lakás, teljesen fel lett újítva
Új burkolatok, szigetelés, új nyílászárók
Elkerített, saját kis kertkapcsolattal rendelkezik - 9nm
Lakás alsó szintje 28nm, felső része bruttó 20nm, összesen tehát 48nm
Alacsony rezsi költség
Nincs gáz, minden elektromos
Elektromos padlófűtés, klíma, elektromos ARISTON boiler, villany tűzhely
Szomszédok csendesek, rendezett a belső udvar
Lakáshoz tartozik még egy saját tároló is a lakással szemben - 4nm
Üres a lakás, azonnal költözhető

Térkép

Ingatlan adásvétel ügyvédi díja
201 150 Ft
a hirdetésben szereplő ár alapján
  • A vételár 0,45%-a
  • Szerződéscsomag teljeskörű képviselettel
  • Ingyenes tulajdoni lap ellenőrzés
  • Az ÁFA-t már tartalmazza
Érdekel az ajánlat →
A tájékoztatás nem teljes körű és nem minősül ajánlattételnek. Minimum díj: 150 000 Ft, maximum díj: 600 000 Ft. A díj kizárólag lakóingatlan adásvételére vonatkozik.

A hirdető elérhetősége

Domus Plusz Partner Kft. (OC)

Váradi Márton
+36 70 465