Eladó Lakás
Hirdetéskód: 9253229
Domus Plusz Partner Kft. (OC)
48.00 m2
ALAPTERÜLET2
SZOBASZÁMnincs megadva
ÉPÍTÉSElektromos
FŰTÉS- CSOK igénybe vehető nem
- Tetőtér beépíthető nem
- Építés éve 1955
- Fűtés Elektromos
- Klíma nem
- Szigetelt nem
A+++
A++
A+
A
B
C
D
E
F
G
H
I
Az ingatlan leírása
XX. kerületben, a Honvéd utcában ELADÓ lakás
Közös belső udvarból nyílik a lakás
Ez a legutolsó lakás, teljesen fel lett újítva
Új burkolatok, szigetelés, új nyílászárók
Elkerített, saját kis kertkapcsolattal rendelkezik - 9nm
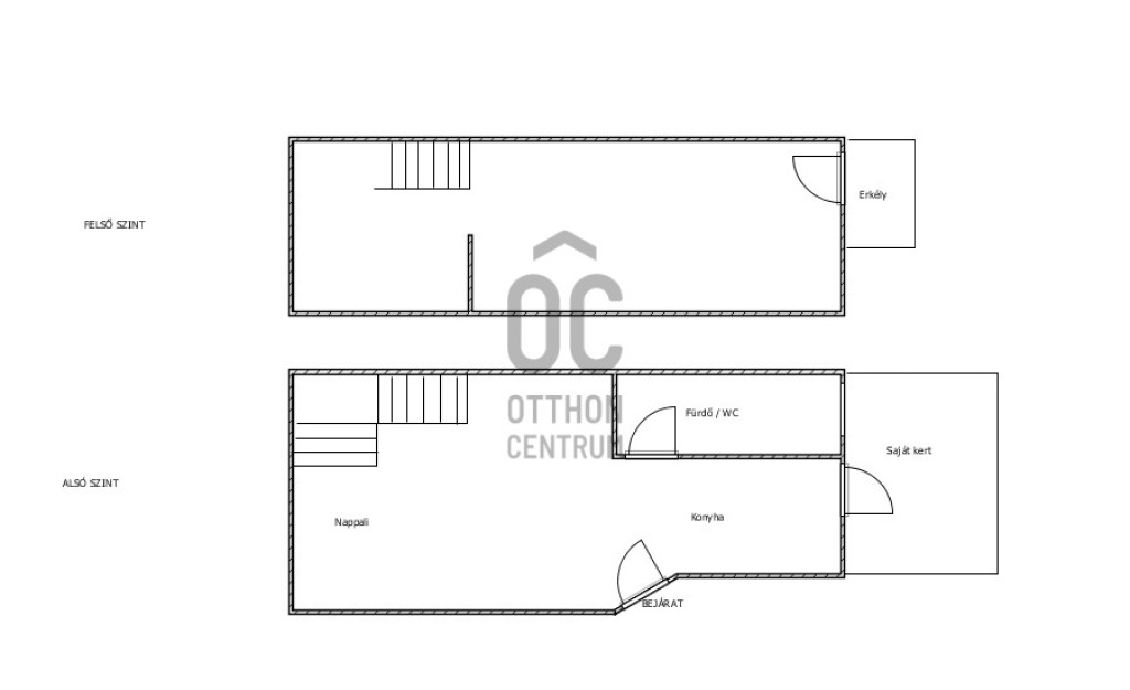
Lakás alsó szintje 28nm, felső része bruttó 20nm, összesen tehát 48nm
Alacsony rezsi költség
Nincs gáz, minden elektromos
Elektromos padlófűtés, klíma, elektromos ARISTON boiler, villany tűzhely
Szomszédok csendesek, rendezett a belső udvar
Lakáshoz tartozik még egy saját tároló is a lakással szemben - 4nm
Üres a lakás, azonnal költözhető
Közös belső udvarból nyílik a lakás
Ez a legutolsó lakás, teljesen fel lett újítva
Új burkolatok, szigetelés, új nyílászárók
Elkerített, saját kis kertkapcsolattal rendelkezik - 9nm
Lakás alsó szintje 28nm, felső része bruttó 20nm, összesen tehát 48nm
Alacsony rezsi költség
Nincs gáz, minden elektromos
Elektromos padlófűtés, klíma, elektromos ARISTON boiler, villany tűzhely
Szomszédok csendesek, rendezett a belső udvar
Lakáshoz tartozik még egy saját tároló is a lakással szemben - 4nm
Üres a lakás, azonnal költözhető