Eladó Lakás
Hirdetéskód: 9326212
OTP Ingatlanpont - Takács Zsuzsanna
Felújításhoz személyi kölcsönt keres? Kalkuláljon itt! →61.00 m2
ALAPTERÜLET3
SZOBASZÁMnincs megadva
ÉPÍTÉSHázközponti fűtés egyedi méréssel
FŰTÉS- CSOK igénybe vehető nem
- Tetőtér beépíthető nem
- Építés éve 2007
- Fűtés Házközponti fűtés egyedi méréssel
- Klíma nem
- Szigetelt nem
A+++
A++
A+
A
B
C
D
E
F
G
H
I
Az ingatlan leírása
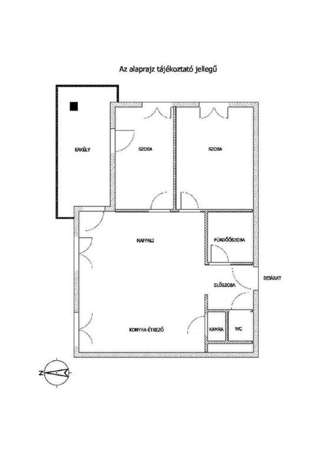
Világos, 3 szobás, sarokerkélyes lakás a Mediterrán lakóparkban, a Duna közelében.
Budapest XX. kerületének egyik legkedveltebb, zöldövezeti részén, a Mediterrán lakóparkban kínálunk megvételre egy 61,12 nm-es, nappali + 2 hálószobás, erkélyes lakást.
Az ingatlan egy liftes társasház 4. emeletén helyezkedik el, és egy 10 nm-es sarokerkéllyel rendelkezik, amely kiváló lehetőséget biztosít a mindennapi kikapcsolódásra.
Világos terek, élhető elrendezés
A lakás elosztása rendkívül praktikus:
- tágas, világos nappali amerikai konyhával
- 2 külön nyíló hálószoba
- nagy méretű, 10 nm-es erkély
- jól kihasználható, világos lakóterek
A lakás jó állapotú, így akár kisebb esztétikai frissítést követően azonnal költözhető.
Erkély: a lakás igazi értéke
A sarokerkély különleges hangulatot ad az ingatlannak:
- ideális reggeli kávézáshoz
- tökéletes esti beszélgetésekhez
- nyugodt, intim pihenőtér a hétköznapokban
Nyugodt, parkosított lakókörnyezet
A Mediterrán lakópark rendezett, zöld környezetben található, amely:
- családok számára is ideális
- csendes, biztonságos lakókörnyezetet biztosít
- hosszú távon is értékálló választás
Parkolás és extra lehetőségek
- parkolás ingyenesen a ház előtt
- tároló és teremgarázs külön vásárolható (nem tartozik a lakáshoz)
Kiváló elhelyezkedés
A közelben található a Duna-parti sétány, amely remek lehetőséget kínál:
- sétákhoz
- sportoláshoz
- kikapcsolódáshoz
A környék infrastruktúrája kiváló:
- bevásárlási lehetőségek
- szolgáltatások
- jó közlekedési kapcsolatok
A belváros gyorsan és kényelmesen elérhető.
Kinek ajánljuk?
Ez az ingatlan ideális:
- saját otthonnak
- fiatal pároknak vagy családoknak
- befektetésnek, stabilan keresett lakóparkban
M325018
Az OTP Ingatlanpont, mint egyetlen közvetlen banki hátterű ingatlanközvetítő társaság teljes körű ügyintézéssel áll az eladók és a vevők rendelkezésére! A kínálatunkból választott ingatlan finanszírozásához minősített fogyasztóbarát, piaci és kedvezményes hitel- és lízingkonstrukciókat kínálunk (lakásvásárlási hitel, CSOK plusz, szabad felhasználású hitel, babaváró hitel, céges hitelek, pályázatok, amennyiben az ügyfél és az ingatlan megfelel a feltételeknek). Az adásvételi szerződés megkötéséhez igény szerint megbízható ügyvédi közreműködést biztosítunk, és segítséget nyújtunk az adásvételhez kapcsolódó egyéb ügyek intézéséhez.
Ha az új ingatlana megvásárlásához a jelenlegi ingatlanát el kell adnia, abban is szívesen segítünk.
Budapest XX. kerületének egyik legkedveltebb, zöldövezeti részén, a Mediterrán lakóparkban kínálunk megvételre egy 61,12 nm-es, nappali + 2 hálószobás, erkélyes lakást.
Az ingatlan egy liftes társasház 4. emeletén helyezkedik el, és egy 10 nm-es sarokerkéllyel rendelkezik, amely kiváló lehetőséget biztosít a mindennapi kikapcsolódásra.
Világos terek, élhető elrendezés
A lakás elosztása rendkívül praktikus:
- tágas, világos nappali amerikai konyhával
- 2 külön nyíló hálószoba
- nagy méretű, 10 nm-es erkély
- jól kihasználható, világos lakóterek
A lakás jó állapotú, így akár kisebb esztétikai frissítést követően azonnal költözhető.
Erkély: a lakás igazi értéke
A sarokerkély különleges hangulatot ad az ingatlannak:
- ideális reggeli kávézáshoz
- tökéletes esti beszélgetésekhez
- nyugodt, intim pihenőtér a hétköznapokban
Nyugodt, parkosított lakókörnyezet
A Mediterrán lakópark rendezett, zöld környezetben található, amely:
- családok számára is ideális
- csendes, biztonságos lakókörnyezetet biztosít
- hosszú távon is értékálló választás
Parkolás és extra lehetőségek
- parkolás ingyenesen a ház előtt
- tároló és teremgarázs külön vásárolható (nem tartozik a lakáshoz)
Kiváló elhelyezkedés
A közelben található a Duna-parti sétány, amely remek lehetőséget kínál:
- sétákhoz
- sportoláshoz
- kikapcsolódáshoz
A környék infrastruktúrája kiváló:
- bevásárlási lehetőségek
- szolgáltatások
- jó közlekedési kapcsolatok
A belváros gyorsan és kényelmesen elérhető.
Kinek ajánljuk?
Ez az ingatlan ideális:
- saját otthonnak
- fiatal pároknak vagy családoknak
- befektetésnek, stabilan keresett lakóparkban
M325018
Az OTP Ingatlanpont, mint egyetlen közvetlen banki hátterű ingatlanközvetítő társaság teljes körű ügyintézéssel áll az eladók és a vevők rendelkezésére! A kínálatunkból választott ingatlan finanszírozásához minősített fogyasztóbarát, piaci és kedvezményes hitel- és lízingkonstrukciókat kínálunk (lakásvásárlási hitel, CSOK plusz, szabad felhasználású hitel, babaváró hitel, céges hitelek, pályázatok, amennyiben az ügyfél és az ingatlan megfelel a feltételeknek). Az adásvételi szerződés megkötéséhez igény szerint megbízható ügyvédi közreműködést biztosítunk, és segítséget nyújtunk az adásvételhez kapcsolódó egyéb ügyek intézéséhez.
Ha az új ingatlana megvásárlásához a jelenlegi ingatlanát el kell adnia, abban is szívesen segítünk.