Eladó Lakás
Hirdetéskód: 9308614
OTP Ingatlanpont - Takács Zsuzsanna
Felújításhoz személyi kölcsönt keres? Kalkuláljon itt! →
Ez a hirdetés megfelelhet a FIX 3%-os programnak.
Tudj meg többet a részletekről itt.
49.00 m2
ALAPTERÜLET1
SZOBASZÁMnincs megadva
ÉPÍTÉSGáz (cirkó)
FŰTÉS- CSOK igénybe vehető nem
- Tetőtér beépíthető nem
- Építés éve 1980
- Fűtés Gáz (cirkó)
- Klíma nem
- Szigetelt nem
A+++
A++
A+
A
B
C
D
E
F
G
H
I
Az ingatlan leírása
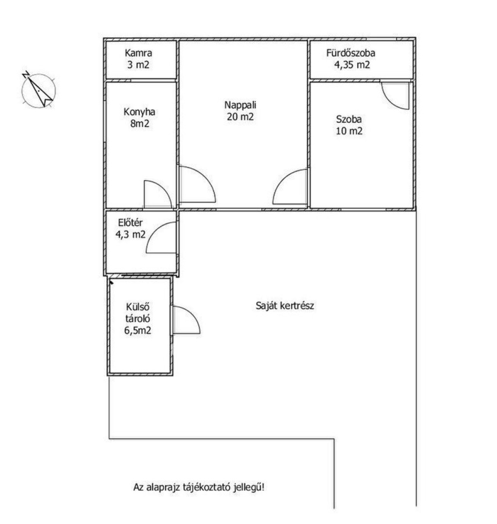
Eladó Budapest, XX., Pesterzsébet nagyon jó közlekedésű, kertvárosias részén br. 63, nettó 49 nm-es, másfél szobás, részben már felújított önálló kis ház. Az ingatlan saját, külön leválasztott bejárattal, kizárólagos használatú kertrésszel rendelkezik. Jelenleg osztatlan közös tulajdon még használati megállapodással, de tavaly júniusban már be lett adva a Földhivatalhoz a társasházzá való nyilvánítási kérelem, az albetétesítés. Felújításra és szigetelésre került a tető, a teljes villanyvezeték hálózat, a külső nyílászárók, belső melegburkolatok. A ház 10 cm-es dryvit szigetelést is kapott. A kert rendezett, új térburkolatos járda került kialakításra. A fürdőszoba még felújítandó - ez már az új tulajdonosra vár!
Kellemes otthon alakítható ki fiatalok, újrakezdők, kis családosok számára. A közelben, sétatávolságra kisboltok, piac, cukrászda, gyógyszertár, iskolák, ovi, bölcsi...
Kiváló közlekedéssel rendelkezik: az 52-es és 2B villamos közvetlen közelségben, a 36, 136, 123, 224, 224E, 966, és 923-as buszok pár perc sétával elérhetők.
M323895
Az OTP Ingatlanpont, mint egyetlen közvetlen banki hátterű ingatlanközvetítő társaság teljes körű ügyintézéssel áll az eladók és a vevők rendelkezésére! A kínálatunkból választott ingatlan finanszírozásához minősített fogyasztóbarát, piaci és kedvezményes hitel- és lízingkonstrukciókat kínálunk (lakásvásárlási hitel, CSOK plusz, szabad felhasználású hitel, babaváró hitel, céges hitelek, pályázatok, amennyiben az ügyfél és az ingatlan megfelel a feltételeknek). Az adásvételi szerződés megkötéséhez igény szerint megbízható ügyvédi közreműködést biztosítunk, és segítséget nyújtunk az adásvételhez kapcsolódó egyéb ügyek intézéséhez.
Ha az új ingatlana megvásárlásához a jelenlegi ingatlanát el kell adnia, abban is szívesen segítünk.
Kellemes otthon alakítható ki fiatalok, újrakezdők, kis családosok számára. A közelben, sétatávolságra kisboltok, piac, cukrászda, gyógyszertár, iskolák, ovi, bölcsi...
Kiváló közlekedéssel rendelkezik: az 52-es és 2B villamos közvetlen közelségben, a 36, 136, 123, 224, 224E, 966, és 923-as buszok pár perc sétával elérhetők.
M323895
Az OTP Ingatlanpont, mint egyetlen közvetlen banki hátterű ingatlanközvetítő társaság teljes körű ügyintézéssel áll az eladók és a vevők rendelkezésére! A kínálatunkból választott ingatlan finanszírozásához minősített fogyasztóbarát, piaci és kedvezményes hitel- és lízingkonstrukciókat kínálunk (lakásvásárlási hitel, CSOK plusz, szabad felhasználású hitel, babaváró hitel, céges hitelek, pályázatok, amennyiben az ügyfél és az ingatlan megfelel a feltételeknek). Az adásvételi szerződés megkötéséhez igény szerint megbízható ügyvédi közreműködést biztosítunk, és segítséget nyújtunk az adásvételhez kapcsolódó egyéb ügyek intézéséhez.
Ha az új ingatlana megvásárlásához a jelenlegi ingatlanát el kell adnia, abban is szívesen segítünk.