Eladó Lakás
Hirdetéskód: 9304231

Dunaharaszti Bocskai utca 10 - OTP Ingatlanpont Iroda

Felújításhoz személyi kölcsönt keres? Kalkuláljon itt! →
FIX 3% Program

Ez a hirdetés megfelelhet a FIX 3%-os programnak.
Tudj meg többet a részletekről itt.

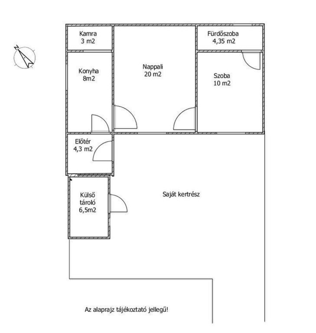
49.00 m2
ALAPTERÜLET
1
SZOBASZÁM
nincs megadva
ÉPÍTÉS
Gáz (cirkó)
FŰTÉS
  • CSOK igénybe vehető nem
  • Tetőtér beépíthető nem
  • Építés éve 1980
  • Fűtés Gáz (cirkó)
  • Klíma nem
  • Szigetelt nem
Energetikai besorolás: Nincs meghatározva
A+++
A++
A+
A
B
C
D
E
F
G
H
I

Az MBH Bank személyi kölcsön ajánlata

Fizetett hirdetés
1 millió Ft
6 évre
20 585 Ft/hó
THM: 14.5%
Részletek →
2 millió Ft
6 évre
41 169 Ft/hó
THM: 14.5%
Részletek →
3 millió Ft
6 évre
61 754 Ft/hó
THM: 14.5%
Részletek →

A tájékoztatás nem teljes körű és nem minősül ajánlattételnek.

Az ingatlan leírása

Eladó Budapest, XX., Pesterzsébet nagyon jó közlekedésű, kertvárosias részén br. 63, nettó 49 nm-es, másfél szobás, részben már felújított önálló kis ház. Az ingatlan saját, külön leválasztott bejárattal, kizárólagos használatú kertrésszel rendelkezik. Jelenleg osztatlan közös tulajdon még használati megállapodással, de tavaly júniusban már be lett adva a Földhivatalhoz a társasházzá való nyilvánítási kérelem, az albetétesítés. Felújításra és szigetelésre került a tető, a teljes villanyvezeték hálózat, a külső nyílászárók, belső melegburkolatok. A ház 10 cm-es dryvit szigetelést is kapott. A kert rendezett, új térburkolatos járda került kialakításra. A fürdőszoba még felújítandó - ez már az új tulajdonosra vár!
Kellemes otthon alakítható ki fiatalok, újrakezdők, kis családosok számára. A közelben, sétatávolságra kisboltok, piac, cukrászda, gyógyszertár, iskolák, ovi, bölcsi...
Kiváló közlekedéssel rendelkezik: az 52-es és 2B villamos közvetlen közelségben, a 36, 136, 123, 224, 224E, 966, és 923-as buszok pár perc sétával elérhetők.
Ügyfeleink számára teljes körű ügyintézéssel állunk rendelkezésre. Kínálatunkból választott ingatlan finanszírozásához kedvezményes hitelmegoldásokat kínálunk, illetve az adásvételi szerződés megkötéséhez megbízható ügyvédi közreműködést is tudunk biztosítani!
Ha hirdetésünk felkeltette érdeklődését, kérem hívjon bizalommal a hét bármely napján!

Térkép

Ingatlan adásvétel ügyvédi díja
256 050 Ft
a hirdetésben szereplő ár alapján
  • A vételár 0,45%-a
  • Szerződéscsomag teljeskörű képviselettel
  • Ingyenes tulajdoni lap ellenőrzés
  • Az ÁFA-t már tartalmazza
Érdekel az ajánlat →
A tájékoztatás nem teljes körű és nem minősül ajánlattételnek. Minimum díj: 150 000 Ft, maximum díj: 600 000 Ft. A díj kizárólag lakóingatlan adásvételére vonatkozik.

A hirdető elérhetősége

Dunaharaszti Bocskai utca 10 - OTP Ingatlanpont Iroda

Káll László
+36 20 461