Eladó Lakás
Hirdetéskód: 9288313

Dunaharaszti Bocskai utca 10 - OTP Ingatlanpont Iroda

Felújításhoz személyi kölcsönt keres? Kalkuláljon itt! →
FIX 3% Program

Ez a hirdetés megfelelhet a FIX 3%-os programnak.
Tudj meg többet a részletekről itt.

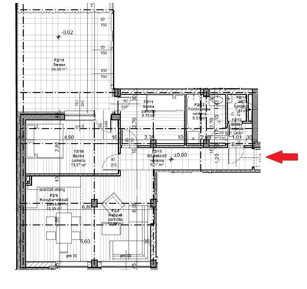
70.00 m2
ALAPTERÜLET
3
SZOBASZÁM
nincs megadva
ÉPÍTÉS
Házközponti
FŰTÉS
  • CSOK igénybe vehető nem
  • Tetőtér beépíthető nem
  • Építés éve 2023
  • Fűtés Házközponti
  • Klíma nem
  • Szigetelt nem
Energetikai besorolás: Nincs meghatározva
A+++
A++
A+
A
B
C
D
E
F
G
H
I

Az MBH Bank személyi kölcsön ajánlata

Fizetett hirdetés
1 millió Ft
6 évre
20 585 Ft/hó
THM: 14.5%
Részletek →
2 millió Ft
6 évre
41 169 Ft/hó
THM: 14.5%
Részletek →
3 millió Ft
6 évre
61 754 Ft/hó
THM: 14.5%
Részletek →

A tájékoztatás nem teljes körű és nem minősül ajánlattételnek.

Az ingatlan leírása

Budapest XX. kerületében, kertvárosi környezetben mégis jól megközelíthető helyen 22 lakásos, liftes, új építésű lakások várják tulajdonosaikat. A kínálatban 1+1 szobás, 2 szobás valamint nagyobb alapterületű, akár négy szobával rendelkező otthonok is megtalálhatóak. A lakások kialakításakor egyik fő szempont volt a praktikus elrendezés, a legtöbb lakáshoz erkély vagy terasz tartozik. A biztonságos, telken belüli parkolás felszíni beállók kialakításával lesz biztosítva, melynek megvásárlása opcionális. A változatos méretű és alaprajzú lakástípusok között az első lakást kereső fiatalok, vagy a nagycsaládosok is megtalálhatják álmaik otthonát. Tervezett átadás: 2025. I. negyedév

Az energetikai tanúsítvány készítése folyamatban van, amint rendelkezésre áll, úgy azzal a hirdetés frissítésre kerül.

Térkép

Ingatlan adásvétel ügyvédi díja
382 500 Ft
a hirdetésben szereplő ár alapján
  • A vételár 0,45%-a
  • Szerződéscsomag teljeskörű képviselettel
  • Ingyenes tulajdoni lap ellenőrzés
  • Az ÁFA-t már tartalmazza
Érdekel az ajánlat →
A tájékoztatás nem teljes körű és nem minősül ajánlattételnek. Minimum díj: 150 000 Ft, maximum díj: 600 000 Ft. A díj kizárólag lakóingatlan adásvételére vonatkozik.

A hirdető elérhetősége

Dunaharaszti Bocskai utca 10 - OTP Ingatlanpont Iroda

Káll László
+36 20 461