Eladó Lakás
Hirdetéskód: 9288272

Dunaharaszti Bocskai utca 10 - OTP Ingatlanpont Iroda

Felújításhoz személyi kölcsönt keres? Kalkuláljon itt! →
65.00 m2
ALAPTERÜLET
2
SZOBASZÁM
nincs megadva
ÉPÍTÉS
nincs megadva
FŰTÉS
  • CSOK igénybe vehető nem
  • Tetőtér beépíthető nem
  • Építés éve 2023
  • Klíma nem
  • Szigetelt nem
Energetikai besorolás: Nincs meghatározva
A+++
A++
A+
A
B
C
D
E
F
G
H
I

Az MBH Bank személyi kölcsön ajánlata

Fizetett hirdetés
1 millió Ft
6 évre
20 585 Ft/hó
THM: 14.5%
Részletek →
2 millió Ft
6 évre
41 169 Ft/hó
THM: 14.5%
Részletek →
3 millió Ft
6 évre
61 754 Ft/hó
THM: 14.5%
Részletek →

A tájékoztatás nem teljes körű és nem minősül ajánlattételnek.

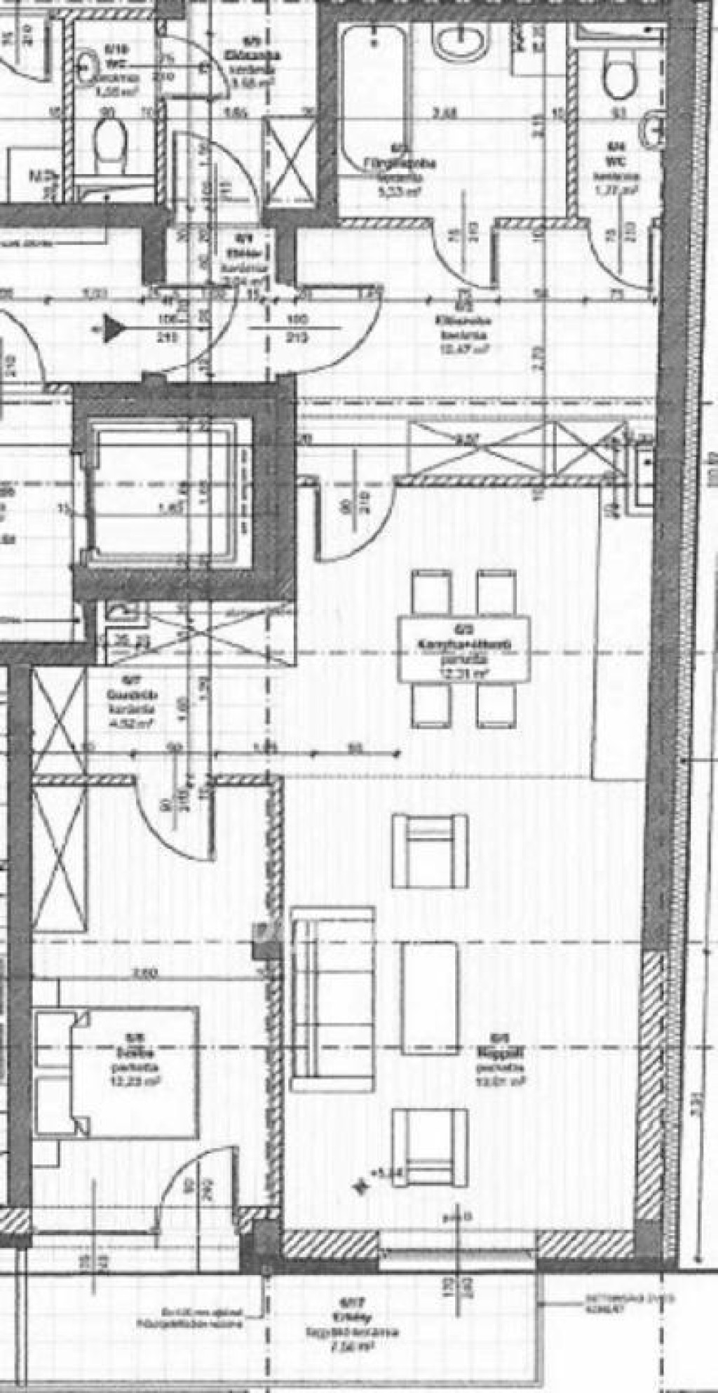
Az ingatlan leírása

Budapest XX. kerületében, kertvárosi környezetben mégis jól megközelíthető helyen 22 lakásos, liftes, új építésű lakások várják tulajdonosaikat. A kínálatban 1+1 szobás, 2 szobás valamint nagyobb alapterületű, akár négy szobával rendelkező otthonok is megtalálhatóak. A lakások kialakításakor egyik fő szempont volt a praktikus elrendezés, a legtöbb lakáshoz erkély vagy terasz tartozik. A biztonságos, telken belüli parkolás felszíni beállók kialakításával lesz biztosítva, melynek megvásárlása opcionális. A változatos méretű és alaprajzú lakástípusok között az első lakást kereső fiatalok, vagy a nagycsaládosok is megtalálhatják álmaik otthonát. Tervezett átadás: 2025. I. negyedév

Térkép

A hirdető elérhetősége

Dunaharaszti Bocskai utca 10 - OTP Ingatlanpont Iroda

Káll László
+36 20 461