Eladó Lakás
Hirdetéskód: 9194093
Szigetszentmiklós Tököli út 19.B - OTP Ingatlanpont Iroda
Felújításhoz személyi kölcsönt keres? Kalkuláljon itt! →
Ez a hirdetés megfelelhet a FIX 3%-os programnak.
Tudj meg többet a részletekről itt.
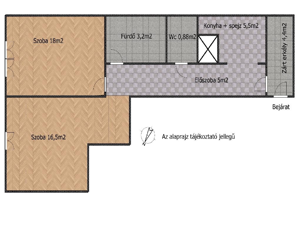
51.00 m2
ALAPTERÜLET2
SZOBASZÁMnincs megadva
ÉPÍTÉSTávfűtés
FŰTÉS- CSOK igénybe vehető nem
- Tetőtér beépíthető nem
- Építés éve 1987
- Fűtés Távfűtés
- Klíma nem
- Szigetelt nem
A+++
A++
A+
A
B
C
D
E
F
G
H
I
Az ingatlan leírása
Eladó 2 szobás, felújított panellakás Budapest XX. kerületének szívében, 9. emelet, remek állapot, kiváló közlekedés!
Budapest XX. kerületének központi részén kínálunk megvételre egy 51 m2-es, 9. emeleti, 2 szobás, összkomfortos lakást, mely jó műszaki állapotban van. így akár azonnal költözhető, apró ráncfelvarrással, tisztasági festéssel.
Felújítások és műszaki jellemzők:
Hőszigetelt, új modern műanyag nyílászárók, és bejárati ajtó, új hideg- és meleg burkolatok a vizes helyiségekben és a szobákban egyaránt. Az elektromos hálózat teljes körű felújításon esett át: a vezetékeket újrahúzták, korszerű rézvezetékek kerültek beépítésre. A rendszer FI relével lett ellátva, a rendelkezésre álló teljesítmény pedig 1×16 amperre lett kialakítva.
Alacsony költségű távfűtés, jól szabályozható, kiszámítható:
Közös költség 14.000Ft, Rezsi havi szinten kb 20.000 Ft, télen nyáron.
A lépcsőház rendezett, tiszta, az épületben 2 lift segíti a kényelmes közlekedést.
Környék és elhelyezkedés:
A lakás kiváló elhelyezkedésű:
Bevásárlási lehetőségek (kisboltok, szupermarketek, plázák) a közelben.
Óvoda, iskola, orvosi rendelő, patika gyalogosan elérhető.
Kiváló tömegközlekedés: több busz- és villamosjárat, gyors eljutás a belvárosba.
Autósok számára az autópályák könnyen elérhetők, így agglomerációs kapcsolat is kiváló.
Kinek ajánljuk:
Ez a lakás ideális választás lehet:
fiatal pároknak első lakásként, idősebbeknek, akik jó közlekedésű, mégis nyugodt otthont keresnek.
Befektetőknek, kiadásra, a felújítási igény hiánya miatt azonnal hasznosítható. Az OTP Bankcsoport teljes körű ügyintézéssel áll az eladók és a vevők rendelkezésére! A kínálatunkból választott ingatlan finanszírozásához kedvezményes hitelkonstrukciókat kínálunk. Az adásvételi szerződés megkötéséhez igény szerint megbízható ügyvédi közreműködést biztosítunk és segítséget nyújtunk az adásvételhez kapcsolódó ügyek intézéséhez. Referenciaszám: M315810
Budapest XX. kerületének központi részén kínálunk megvételre egy 51 m2-es, 9. emeleti, 2 szobás, összkomfortos lakást, mely jó műszaki állapotban van. így akár azonnal költözhető, apró ráncfelvarrással, tisztasági festéssel.
Felújítások és műszaki jellemzők:
Hőszigetelt, új modern műanyag nyílászárók, és bejárati ajtó, új hideg- és meleg burkolatok a vizes helyiségekben és a szobákban egyaránt. Az elektromos hálózat teljes körű felújításon esett át: a vezetékeket újrahúzták, korszerű rézvezetékek kerültek beépítésre. A rendszer FI relével lett ellátva, a rendelkezésre álló teljesítmény pedig 1×16 amperre lett kialakítva.
Alacsony költségű távfűtés, jól szabályozható, kiszámítható:
Közös költség 14.000Ft, Rezsi havi szinten kb 20.000 Ft, télen nyáron.
A lépcsőház rendezett, tiszta, az épületben 2 lift segíti a kényelmes közlekedést.
Környék és elhelyezkedés:
A lakás kiváló elhelyezkedésű:
Bevásárlási lehetőségek (kisboltok, szupermarketek, plázák) a közelben.
Óvoda, iskola, orvosi rendelő, patika gyalogosan elérhető.
Kiváló tömegközlekedés: több busz- és villamosjárat, gyors eljutás a belvárosba.
Autósok számára az autópályák könnyen elérhetők, így agglomerációs kapcsolat is kiváló.
Kinek ajánljuk:
Ez a lakás ideális választás lehet:
fiatal pároknak első lakásként, idősebbeknek, akik jó közlekedésű, mégis nyugodt otthont keresnek.
Befektetőknek, kiadásra, a felújítási igény hiánya miatt azonnal hasznosítható. Az OTP Bankcsoport teljes körű ügyintézéssel áll az eladók és a vevők rendelkezésére! A kínálatunkból választott ingatlan finanszírozásához kedvezményes hitelkonstrukciókat kínálunk. Az adásvételi szerződés megkötéséhez igény szerint megbízható ügyvédi közreműködést biztosítunk és segítséget nyújtunk az adásvételhez kapcsolódó ügyek intézéséhez. Referenciaszám: M315810