Eladó Lakás
Hirdetéskód: 9228291
Budapest II. kerület Ganz utca 5-7 - OTP Ingatlanpont Iroda
Ez a hirdetés megfelelhet a FIX 3%-os programnak.
Tudj meg többet a részletekről itt.
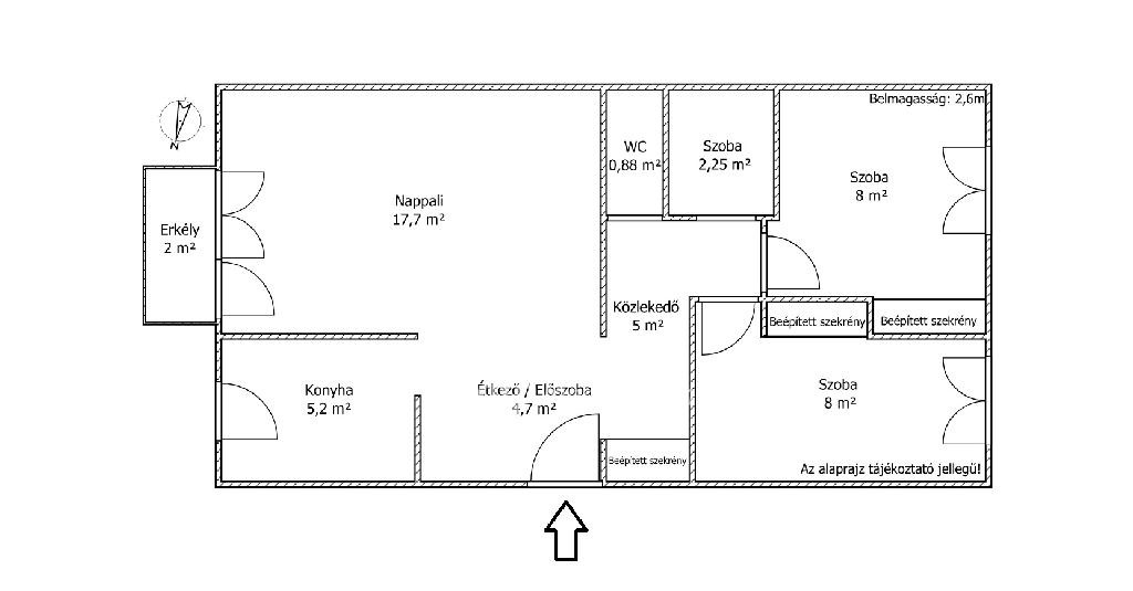
54.00 m2
ALAPTERÜLET1
SZOBASZÁMnincs megadva
ÉPÍTÉSTávfűtés
FŰTÉS- CSOK igénybe vehető nem
- Tetőtér beépíthető nem
- Építés éve 1970
- Fűtés Távfűtés
- Klíma nem
- Szigetelt nem
A+++
A++
A+
A
B
C
D
E
F
G
H
I
Az ingatlan leírása
Eladó 54 négyzetméteres második emeleti erkélyes panellakás az Újlak utcai lakótelepen. Kiváló adottságai mellett a lakást több felújításon is átesett már az évek során. Zuhanyzós fürdőszoba, egyedi bútorok és klíma berendezések lettek beszerelve. Két éve az összes nyílászárót műanyagra cserélték, majd múlt évben belülről teljesen ki lett festve. A fűtést és a meleg vizet távhőn kapja a lakás, így egyszerre komfortos és kedvező a rezsije. A ház folyamatosan fejleszt, jövőre egyedi hőmennyiségmérők is terveben vannak tovább csökkentve a havi költségeket, de a tetőszigetelés felújítására is gyűjtenek már. A közelben játszótér és bevásárlóközpontok megtalálhatóak. A tömegközlekedés nagyon könnyen elérhető, de mégis távol van a forgalmas zajos utaktól. Az erkély csendes udvarra néz, tájolásának köszönhetően nyáron is kellemes időtöltést tesz lehetővé. Ezt a remek elosztású lakást pároknak vagy családosoknak ajánlom elsősorban, de mindenkinek érdekes lehet aki nyugalmat keres karnyújtásnyira a város sűrűjétől. Ha érdekesnek találta jöjjön el és tekintse meg élőben is! Időpont egyeztetéshez hívjon bizalommal!
Teljes körű ügyintézéssel állunk az eladók és a vevők rendelkezésére! A kínálatunkból választott ingatlan finanszírozásához minősített fogyasztóbarát, piaci és kedvezményes hitel- és lízingkonstrukciókat kínálunk (lakásvásárlási hitel, szabad felhasználású hitel, babaváró hitel, CSOK Plusz intézés, Otthonfelújítási Támogatás, egyéb felújítási hitelek). Az adásvételi szerződés megkötéséhez igény szerint megbízható ügyvédi közreműködést biztosítunk, és segítséget nyújtunk az adásvételhez kapcsolódó egyéb ügyek intézéséhez.
Kérdéseire az esti órákban és hétvégén is szívesen válaszolok! Ha az új ingatlana megvásárlásához a jelenlegi ingatlanát el kell adnia, abban is szívesen segítünk.
Teljes körű ügyintézéssel állunk az eladók és a vevők rendelkezésére! A kínálatunkból választott ingatlan finanszírozásához minősített fogyasztóbarát, piaci és kedvezményes hitel- és lízingkonstrukciókat kínálunk (lakásvásárlási hitel, szabad felhasználású hitel, babaváró hitel, CSOK Plusz intézés, Otthonfelújítási Támogatás, egyéb felújítási hitelek). Az adásvételi szerződés megkötéséhez igény szerint megbízható ügyvédi közreműködést biztosítunk, és segítséget nyújtunk az adásvételhez kapcsolódó egyéb ügyek intézéséhez.
Kérdéseire az esti órákban és hétvégén is szívesen válaszolok! Ha az új ingatlana megvásárlásához a jelenlegi ingatlanát el kell adnia, abban is szívesen segítünk.