Eladó Lakás
Hirdetéskód: 9228700

-

Felújításhoz személyi kölcsönt keres? Kalkuláljon itt! →
FIX 3% Program

Ez a hirdetés megfelelhet a FIX 3%-os programnak.
Tudj meg többet a részletekről itt.

87.00 m2
ALAPTERÜLET
3
SZOBASZÁM
Tégla
ÉPÍTÉS
Gáz (cirkó)
FŰTÉS
  • CSOK igénybe vehető igen
  • Kilátás Utcai
  • Tájolás Délkelet
  • Ingatlan komfort Összkomfortos
  • Parkolási lehetőség Önálló garázs
  • Építés éve 1986
  • Fűtés Gáz (cirkó)
  • Építőanyag Tégla
  • Erkély, terasz Terasz 35.00m2
  • Kertkapcsolat igen 200.00m2
  • Klíma nem
  • Szigetelt nem
  • Bútorozott nem
  • Akadálymentesített nem
Energetikai besorolás: Nincs meghatározva
A+++
A++
A+
A
B
C
D
E
F
G
H
I

Az MBH Bank személyi kölcsön ajánlata

Fizetett hirdetés
1 millió Ft
6 évre
20 585 Ft/hó
THM: 14.5%
Részletek →
2 millió Ft
6 évre
41 169 Ft/hó
THM: 14.5%
Részletek →
3 millió Ft
6 évre
61 754 Ft/hó
THM: 14.5%
Részletek →

A tájékoztatás nem teljes körű és nem minősül ajánlattételnek.

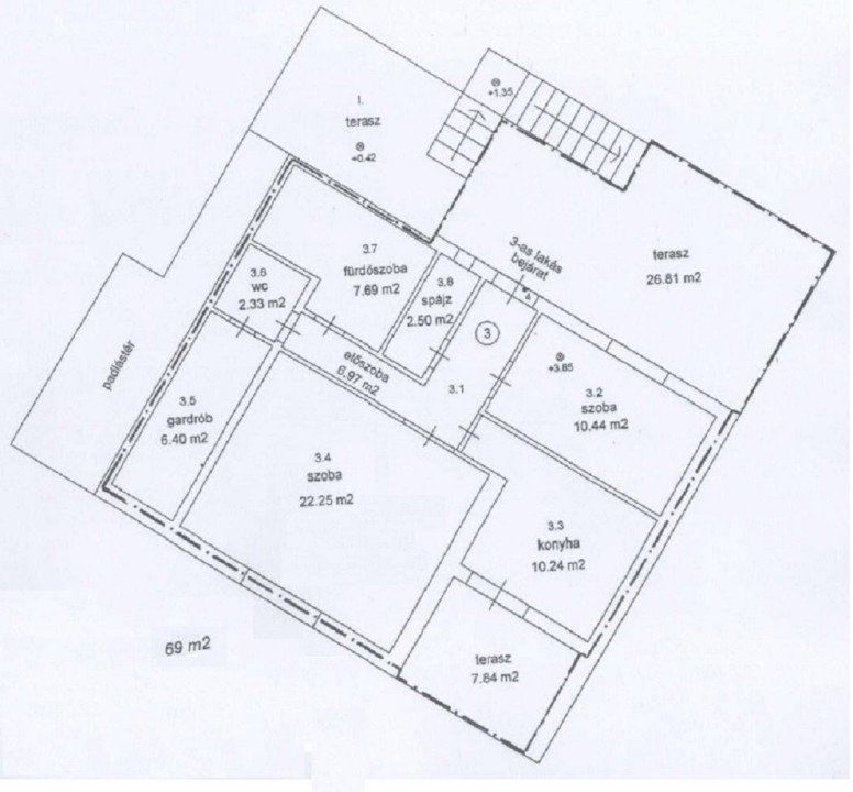
Az ingatlan leírása




PANEL ÁRBAN TETŐTERASZOS lakás - KERTES HÁZBAN, madárcsicsergésben élhet!

Sikerült megtekintenie a hirdetésen belül, az ingatlanról készült videót?

CSENDES HELYEN,
TÉGLA ÉPÍTÉSŰ LAKÁS + fedett 8 nm-es erkély + hatalmas, 27 nm-es, hátsó kertre néző, napsütötte terasz + nagy tároló + SAJÁT KERT! + garázs - mindezt ENNYIÉRT?
XVII. kerületben eladó egy vasútállomástól és buszmegállótól is gyalogtávolságra lévő, mégis csendes, aszfaltozott utcában elhelyezkedő napsütötte családi ház 1986-ban beépített tetőtéri tégla építésű lakása.
Ez egy 2 lakásos, ügyvéd által szerkesztett használati megosztással rendelkező családi ház. (A földszint egy teljesen külön bejáratú lakás.) Önálló, saját, kombi (meleg vizet + fűtést is nyújtó) cirkófűtéssel is rendelkező a lakás!
A garázs nem a kert területéből vesz el, azon felül értendő a kert mérete, a 200 nm.
A feltüntetett 69 nm területben nem látható, az nem tartalmazza az erkély, a terasz, a saját, kizárólagos használatú kert területét, pedig azok jelentősen megnövelik az életteret, tavasztól őszig, és azt is a lakással együtt, felár nélkül kapja meg a feltüntetett áron a Vevő!
ALKALMI ÁRON MEGVEHETŐ ez az ingatlan?
Kérjen időpontot megtekintésre, hogy mindez kiderüljön!
Teher- és permentes az ingatlan!
Ennyiért egy panel lakást lehet venni, DE abban az árban nincs hatalmas pince, a saját tulajdonú, 200 nm-es összefüggő, intim, az utcafronttól távoli, gyümölcsfás kert sem!
(A garázs kötelezően megvásárolandó, 5 M Ft-ért.)


A fotók, az alaprajzok és a hirdetésszöveg szellemi termék, melynek másolása, megjelentetése jogkövetkezménnyel jár.




Térkép

Ingatlan adásvétel ügyvédi díja
337 500 Ft
a hirdetésben szereplő ár alapján
  • A vételár 0,45%-a
  • Szerződéscsomag teljeskörű képviselettel
  • Ingyenes tulajdoni lap ellenőrzés
  • Az ÁFA-t már tartalmazza
Érdekel az ajánlat →
A tájékoztatás nem teljes körű és nem minősül ajánlattételnek. Minimum díj: 150 000 Ft, maximum díj: 600 000 Ft. A díj kizárólag lakóingatlan adásvételére vonatkozik.

A hirdető elérhetősége

BINGO Ingatlaniroda

+36 70 202