Eladó Lakás
Hirdetéskód: 9239066
Benefit Line (OC)
58 m2
ALAPTERÜLET3
SZOBASZÁMnincs megadva
ÉPÍTÉSnincs megadva
FŰTÉS- CSOK igénybe vehető nem
- Tetőtér beépíthető nem
- Építés éve 1975
- Klíma nem
- Szigetelt nem
A+++
A++
A+
A
B
C
D
E
F
G
H
I
Az ingatlan leírása
A XVI. kerületben, Mátyásföld kedvelt zöldövezeti részén, az Összefogás sétányon keresi új tulajdonosát egy külön konyhás, nappali + 2 szobás, 58 m²-es, erkélyes lakás. Ha jó elosztású, könnyen alakítható otthont keres, remek közlekedéssel és barátságos környezettel, akkor ezt érdemes megnéznie!
! ! ! A képek között fotórealisztikus látványtervek is találhatók ! ! !
MIÉRT IDEÁLIS A LAKÁS?
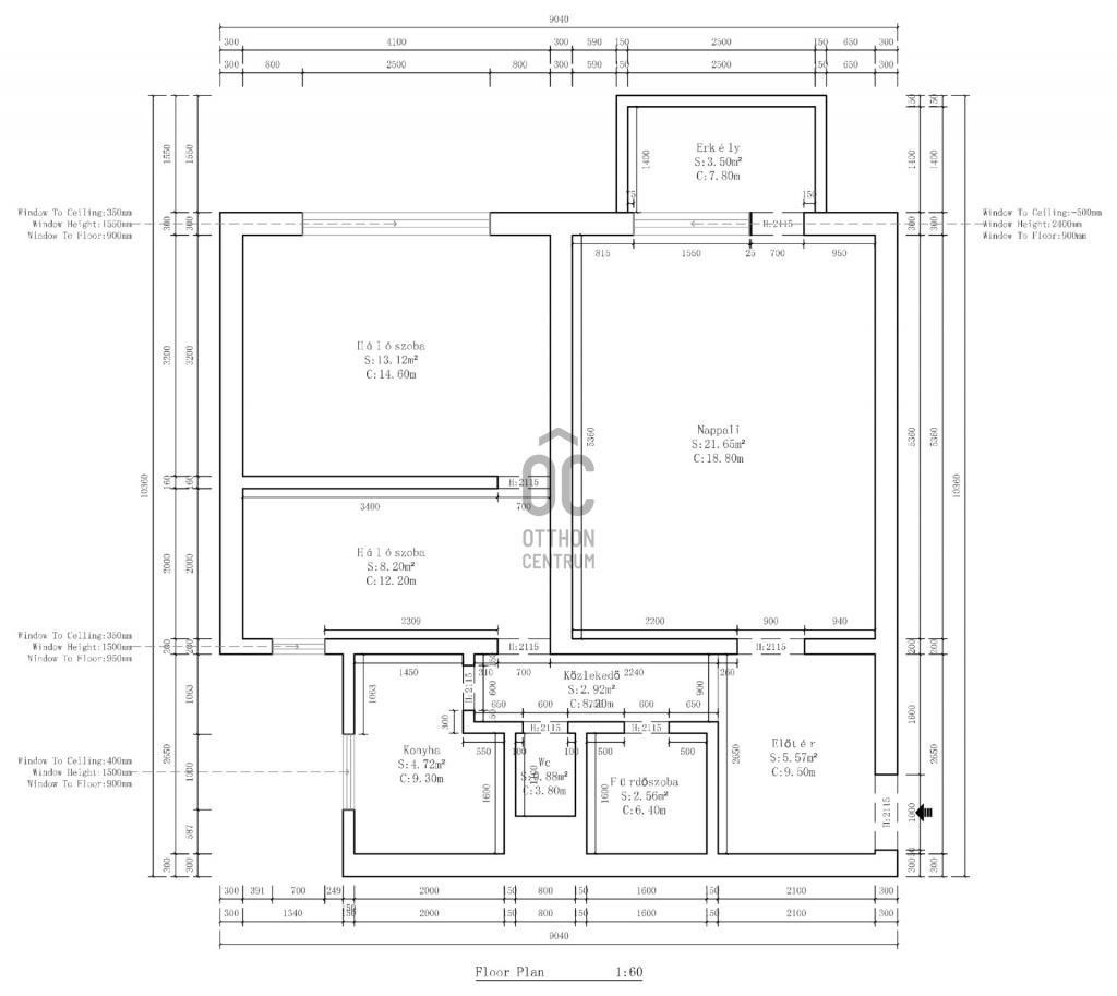
4. emeleti (zárószint) 58 m²-es, 3 szobás, 3,5 m²-es erkéllyel rendelkező ingatlan.
Lakás elosztása: előtér, közlekedő, erkélyes nappali, hálószoba, dolgozószoba, ablakos konyha, kádas fürdőszoba, külön WC.
Elrendezése nagyon jó, a képek között található fotórealisztikus látványtervekkel mutatjuk meg a lakásban rejlő lehetőségeket.
A konyha, a fürdőszoba és a WC 10 éve volt felújítva, használható állapotú, de igény szerint modernizálható.
Nyílászárói modern, műanyag keretes, hő- és hangszigetelt ablakok, a radiátorok szintén korszerű, cserélt darabok.
A lakás nagyon világos, délkeleti tájolásának köszönhetően a nappali és a szobák is sok természetes fényt kapnak.
Külön konyhás elrendezés, jól szeparálható háló- és dolgozórész, ideális családoknak, otthonról dolgozóknak is.
A zárószinti elhelyezkedés előnye, hogy nincs felső szomszéd, így csendesebb a lakás.
A lakás fűtését a Távhő, hűtését a nappaliban elhelyezett klímaberendezés biztosítja.
Közös költség 25.608 Ft/hó, fenntartási költsége alacsony.
A környék rendezett, a szomszédok csendesek, a lakóközösség vigyáz a házra és a környezetre.
AMIT A HÁZRÓL TUDNI KELL:
️ 4 szintes panel épület a XVI. kerületben, Mátyásföldön, a Centenáriumi lakótelepen.
️ A társasház átlagos, de jól karbantartott állapotú, folyamatosan gondoskodnak a közös részek állagmegóvásáról.
️ A lépcsőház tiszta, rendezett, a lakók figyelnek a rendre és a tisztaságra.
️ Lift nincs az épületben, a lakás gyalog közelíthető meg a 4. emeletig.
️ A ház környezetében sok a zöldfelület, játszóterek és sétányok találhatók, a közelben az Összefogás sétány játszótér is.
️ A környéken elsősorban családok, hosszú távra berendezkedett lakók élnek, biztonságos, csendes lakókörnyezet.
KÖRNYÉK ÉS KÖZLEKEDÉS:
XVI. kerület, Mátyásföld, rendezett és zöld, családbarát környezet.
A mindennapokhoz szükséges szolgáltatások (boltok, óvoda, iskola, orvosi rendelő, gyógyszertár stb.) a közelben, többségük gyalogosan is könnyen elérhető.
Tömegközlekedés kiváló, a közelben több buszjárat (pl. 44, 144, 244, 46) megállója elérhető, melyekkel gyorsan eljutunk az Örs vezér terére, ahol metró és bevásárlóközpontok is találhatók.
A Mátyásföld, Repülőtér vasútállomás is közel van, ahonnan a H8–H9 HÉV-vel és vonattal is könnyen bejuthatunk a város más pontjaira.
Autóval a Rákosi út és a környék főbb útvonalai biztosítanak gyors kapcsolatot a belváros, illetve az M0-s irányába.
A környék parkos, sok a fa és a sétány, kifejezetten ideális kisgyermekes családoknak és kutyásoknak is.
AZ INGATLAN MEGTEKINTHETŐ:
️ Személyesen,
️ Irányítható 3D Websétával,
️ Online, személyes bejelentkezéssel.
FINANSZÍROZÁSBAN ONLINE ÜGYINTÉZÉSSEL IS SEGÍTÜNK!
Többszörösen díjnyertes irodánk hitelszakértői 20 éves szakmai tapasztalattal várják, előre egyeztetett időpontban akár normál munkaidőn kívül is.
Bank-független Hitel Centerünk díjmentesen versenyezteti minden bank és hitelintézet kínálatát, hogy önnek a legmegfelelőbb konstrukciót megtaláljuk.
Egyedi igényekre szabott, csak nálunk elérhető egyedi ajánlatokkal, fogyasztóbarát lakáshitelekkel, babaváró hitellel, teljes körű CSOK PLUSZ és OTTHON START PROGRAM ügyintézéssel állunk rendelkezésére.
Kifejezetten keresett ingatlan, EGYEDI LEHETŐSÉG, ne maradjon le róla!
Érdeklődés esetén VÁROM HÍVÁSÁT a hét minden napján!
! ! ! A képek között fotórealisztikus látványtervek is találhatók ! ! !
MIÉRT IDEÁLIS A LAKÁS?
4. emeleti (zárószint) 58 m²-es, 3 szobás, 3,5 m²-es erkéllyel rendelkező ingatlan.
Lakás elosztása: előtér, közlekedő, erkélyes nappali, hálószoba, dolgozószoba, ablakos konyha, kádas fürdőszoba, külön WC.
Elrendezése nagyon jó, a képek között található fotórealisztikus látványtervekkel mutatjuk meg a lakásban rejlő lehetőségeket.
A konyha, a fürdőszoba és a WC 10 éve volt felújítva, használható állapotú, de igény szerint modernizálható.
Nyílászárói modern, műanyag keretes, hő- és hangszigetelt ablakok, a radiátorok szintén korszerű, cserélt darabok.
A lakás nagyon világos, délkeleti tájolásának köszönhetően a nappali és a szobák is sok természetes fényt kapnak.
Külön konyhás elrendezés, jól szeparálható háló- és dolgozórész, ideális családoknak, otthonról dolgozóknak is.
A zárószinti elhelyezkedés előnye, hogy nincs felső szomszéd, így csendesebb a lakás.
A lakás fűtését a Távhő, hűtését a nappaliban elhelyezett klímaberendezés biztosítja.
Közös költség 25.608 Ft/hó, fenntartási költsége alacsony.
A környék rendezett, a szomszédok csendesek, a lakóközösség vigyáz a házra és a környezetre.
AMIT A HÁZRÓL TUDNI KELL:
️ 4 szintes panel épület a XVI. kerületben, Mátyásföldön, a Centenáriumi lakótelepen.
️ A társasház átlagos, de jól karbantartott állapotú, folyamatosan gondoskodnak a közös részek állagmegóvásáról.
️ A lépcsőház tiszta, rendezett, a lakók figyelnek a rendre és a tisztaságra.
️ Lift nincs az épületben, a lakás gyalog közelíthető meg a 4. emeletig.
️ A ház környezetében sok a zöldfelület, játszóterek és sétányok találhatók, a közelben az Összefogás sétány játszótér is.
️ A környéken elsősorban családok, hosszú távra berendezkedett lakók élnek, biztonságos, csendes lakókörnyezet.
KÖRNYÉK ÉS KÖZLEKEDÉS:
XVI. kerület, Mátyásföld, rendezett és zöld, családbarát környezet.
A mindennapokhoz szükséges szolgáltatások (boltok, óvoda, iskola, orvosi rendelő, gyógyszertár stb.) a közelben, többségük gyalogosan is könnyen elérhető.
Tömegközlekedés kiváló, a közelben több buszjárat (pl. 44, 144, 244, 46) megállója elérhető, melyekkel gyorsan eljutunk az Örs vezér terére, ahol metró és bevásárlóközpontok is találhatók.
A Mátyásföld, Repülőtér vasútállomás is közel van, ahonnan a H8–H9 HÉV-vel és vonattal is könnyen bejuthatunk a város más pontjaira.
Autóval a Rákosi út és a környék főbb útvonalai biztosítanak gyors kapcsolatot a belváros, illetve az M0-s irányába.
A környék parkos, sok a fa és a sétány, kifejezetten ideális kisgyermekes családoknak és kutyásoknak is.
AZ INGATLAN MEGTEKINTHETŐ:
️ Személyesen,
️ Irányítható 3D Websétával,
️ Online, személyes bejelentkezéssel.
FINANSZÍROZÁSBAN ONLINE ÜGYINTÉZÉSSEL IS SEGÍTÜNK!
Többszörösen díjnyertes irodánk hitelszakértői 20 éves szakmai tapasztalattal várják, előre egyeztetett időpontban akár normál munkaidőn kívül is.
Bank-független Hitel Centerünk díjmentesen versenyezteti minden bank és hitelintézet kínálatát, hogy önnek a legmegfelelőbb konstrukciót megtaláljuk.
Egyedi igényekre szabott, csak nálunk elérhető egyedi ajánlatokkal, fogyasztóbarát lakáshitelekkel, babaváró hitellel, teljes körű CSOK PLUSZ és OTTHON START PROGRAM ügyintézéssel állunk rendelkezésére.
Kifejezetten keresett ingatlan, EGYEDI LEHETŐSÉG, ne maradjon le róla!
Érdeklődés esetén VÁROM HÍVÁSÁT a hét minden napján!