Eladó Lakás
Hirdetéskód: 9302227
OTP Ingatlanpont - Budapest IX. ker., Üllői út 21.
Felújításhoz személyi kölcsönt keres? Kalkuláljon itt! →
Ez a hirdetés megfelelhet a FIX 3%-os programnak.
Tudj meg többet a részletekről itt.
55.00 m2
ALAPTERÜLET1
SZOBASZÁMnincs megadva
ÉPÍTÉSnincs megadva
FŰTÉS- CSOK igénybe vehető nem
- Tetőtér beépíthető nem
- Építés éve 1983
- Klíma nem
- Szigetelt nem
A+++
A++
A+
A
B
C
D
E
F
G
H
I
Az ingatlan leírása
Kertvárosi nyugalom, élhető tér - saját ízlésére formálható otthon Rákospalotán
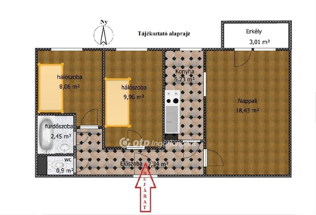
Rákospalota-Kertváros részen kínálunk megvételre egy 55 négyzetméteres, nappali + 2 hálószobás, erkélyes lakást, amely kiváló választás lehet családoknak vagy azoknak, akik szeretnének egy értékálló ingatlant saját elképzelésük szerint kialakítani.
Ezen a környéken ritkaságnak számít a hasonló adottságú, eladó lakás, NE MARADJON LE RÓLA!
Egy folyamatosan karbantartott, jó állapotú társasházban található ez a mindössze másfél emeletnyi lépcsőzéssel elérhető otthon.
- Élhető elrendezés, valódi térérzet:
Az ingatlan egyik előnye a praktikus, különnyíló elrendezés:
- nappali + 2 hálószoba
- világos, ablakos konyha
- külön fürdőszoba
- külön WC
- nappaliból nyíló, 3 m2-es nyugati tájolású erkély
A nyugati fekvésnek köszönhetően a lakás délutánonként napfényes, meleg hangulatú. Az erkély ideális egy kávéra, esti beszélgetésre vagy egy csendes pihenésre.
Lehetőség azoknak, akik értéket látnak benne
Az ingatlan felújítandó állapotú, így új tulajdonosa teljes mértékben saját igényei szerint alakíthatja ki.
Egy tisztasági festéssel és burkolatcserével akár rövid időn belül költözhetővé tehető, hosszabb távon pedig a gépészeti és nyílászáró korszerűsítés tovább növelheti az értékét.
Ez nem kompromisszum - ez lehetőség.
Kiváló közlekedés, élhető környezet
Sétatávolságra több buszjárat is elérhető, melyekkel közvetlenül megközelíthető:
- Újpest-Központ (170)
- Bosnyák tér (124, 125)
- Mexikói út (225)
- valamint a Budapest-Nyugati - Vác vasútvonal állomásai
Az éjszakai közlekedést a 950-es busz biztosítja.
A parkolás a környéken ingyenes.
Családbarát környezet
Óvoda, játszótér és általános iskola a közelben, biztonságos, kertvárosi hangulatú utcák, nyugodt lakókörnyezet - ideális választás gyermekes családok számára is.
Az ingatlan megfelel az Otthon_Start_Program (Fix3% Lakáshitel Program) feltételeinek.
Felkeltette érdeklődését az általam kínált ingatlan?
Keressen bizalommal!
Rákospalota-Kertváros részen kínálunk megvételre egy 55 négyzetméteres, nappali + 2 hálószobás, erkélyes lakást, amely kiváló választás lehet családoknak vagy azoknak, akik szeretnének egy értékálló ingatlant saját elképzelésük szerint kialakítani.
Ezen a környéken ritkaságnak számít a hasonló adottságú, eladó lakás, NE MARADJON LE RÓLA!
Egy folyamatosan karbantartott, jó állapotú társasházban található ez a mindössze másfél emeletnyi lépcsőzéssel elérhető otthon.
- Élhető elrendezés, valódi térérzet:
Az ingatlan egyik előnye a praktikus, különnyíló elrendezés:
- nappali + 2 hálószoba
- világos, ablakos konyha
- külön fürdőszoba
- külön WC
- nappaliból nyíló, 3 m2-es nyugati tájolású erkély
A nyugati fekvésnek köszönhetően a lakás délutánonként napfényes, meleg hangulatú. Az erkély ideális egy kávéra, esti beszélgetésre vagy egy csendes pihenésre.
Lehetőség azoknak, akik értéket látnak benne
Az ingatlan felújítandó állapotú, így új tulajdonosa teljes mértékben saját igényei szerint alakíthatja ki.
Egy tisztasági festéssel és burkolatcserével akár rövid időn belül költözhetővé tehető, hosszabb távon pedig a gépészeti és nyílászáró korszerűsítés tovább növelheti az értékét.
Ez nem kompromisszum - ez lehetőség.
Kiváló közlekedés, élhető környezet
Sétatávolságra több buszjárat is elérhető, melyekkel közvetlenül megközelíthető:
- Újpest-Központ (170)
- Bosnyák tér (124, 125)
- Mexikói út (225)
- valamint a Budapest-Nyugati - Vác vasútvonal állomásai
Az éjszakai közlekedést a 950-es busz biztosítja.
A parkolás a környéken ingyenes.
Családbarát környezet
Óvoda, játszótér és általános iskola a közelben, biztonságos, kertvárosi hangulatú utcák, nyugodt lakókörnyezet - ideális választás gyermekes családok számára is.
Az ingatlan megfelel az Otthon_Start_Program (Fix3% Lakáshitel Program) feltételeinek.
Felkeltette érdeklődését az általam kínált ingatlan?
Keressen bizalommal!