Eladó Lakás
Hirdetéskód: 9300108
OTP Ingatlanpont - Budapest IX. ker., Üllői út 21.
Felújításhoz személyi kölcsönt keres? Kalkuláljon itt! →35.00 m2
ALAPTERÜLET1
SZOBASZÁMnincs megadva
ÉPÍTÉSnincs megadva
FŰTÉS- CSOK igénybe vehető nem
- Tetőtér beépíthető nem
- Építés éve 1980
- Klíma nem
- Szigetelt nem
A+++
A++
A+
A
B
C
D
E
F
G
H
I
Az ingatlan leírása
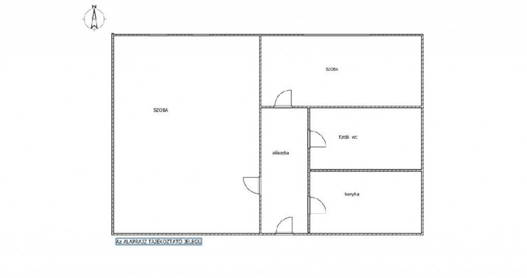
Eladó másfél szobás lakás Budapest XV. kerületében azonnal költözhető!
Budapest XV. kerületében, központi elhelyezkedéssel eladó egy 35 nm-es, másfél szobás, első emeleti panellakás.
Főbb jellemzők: panelprogramos épület (szigetelés, műanyag nyílászárók).
Rendezett, tiszta lépcsőház.
A lakás jó állapotú, azonnal költözhető.
Fürdőszoba felújítva: csempefestékkel korszerűsítve, burkolatok rendben.
Ingyenes parkolás közterületen.
1/1 tulajdon, tehermentes. 3%-os OSP hitelre alkalmas.
Elhelyezkedés: kiváló infrastruktúra, Pólus Center és Ázsia Center a közelben.
Tömegközlekedés, boltok, szolgáltatások pár perc sétára.
Ajánljuk: kezdő lakásnak, befektetésnek (könnyen kiadható).
Ne maradjon le erről a remek lehetőségről azonnal költözhető lakás, kiváló helyen!
Budapest XV. kerületében, központi elhelyezkedéssel eladó egy 35 nm-es, másfél szobás, első emeleti panellakás.
Főbb jellemzők: panelprogramos épület (szigetelés, műanyag nyílászárók).
Rendezett, tiszta lépcsőház.
A lakás jó állapotú, azonnal költözhető.
Fürdőszoba felújítva: csempefestékkel korszerűsítve, burkolatok rendben.
Ingyenes parkolás közterületen.
1/1 tulajdon, tehermentes. 3%-os OSP hitelre alkalmas.
Elhelyezkedés: kiváló infrastruktúra, Pólus Center és Ázsia Center a közelben.
Tömegközlekedés, boltok, szolgáltatások pár perc sétára.
Ajánljuk: kezdő lakásnak, befektetésnek (könnyen kiadható).
Ne maradjon le erről a remek lehetőségről azonnal költözhető lakás, kiváló helyen!