Eladó Lakás
Hirdetéskód: 9312979
GDN Ingatlanhálózat - KANKALIN Ingatlaniroda
Felújításhoz személyi kölcsönt keres? Kalkuláljon itt! →
Ez a hirdetés megfelelhet a FIX 3%-os programnak.
Tudj meg többet a részletekről itt.
53.00 m2
ALAPTERÜLET1
SZOBASZÁMnincs megadva
ÉPÍTÉSTávfűtés
FŰTÉS- CSOK igénybe vehető nem
- Tetőtér beépíthető nem
- Fűtés Távfűtés
- Klíma nem
- Szigetelt nem
A+++
A++
A+
A
B
C
D
E
F
G
H
I
Az ingatlan leírása
Első lakás a XIX. kerületben – ideális választás az Otthon Start Programhoz
Megvételre kínálok a XIX. kerületben, a Zrínyi utcában egy 53 m²-es, 2 + 1 félszobás, tehermentes panellakást. Az ingatlan azonnal költözhető állapotban van, így kiváló lehetőség első lakást keresőknek vagy fiatal pároknak.
A lakás egy 10 emeletes, liftes, rendezett társasház 6. emeletén található. A környék csendes, parkos, mégis jól megközelíthető, így ideális választás azok számára, akik nyugodt, de városi környezetben szeretnének élni.
Elrendezés – jól alakítható terek
A 2 + 1 félszobás kialakítás rugalmasan alkalmazkodik az élethelyzethez:
a nappali tágas közösségi térként funkcionál,
a félszoba kényelmes hálószobának ideális,
a harmadik szoba használható dolgozószobának, gyerekszobának vagy gardróbnak.
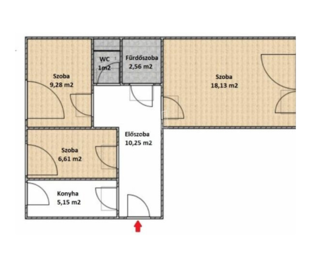
Helyiségek:
előszoba (5,8 m²)
konyha
közlekedő (4,1 m²)
külön fürdőszoba és WC
hálószoba (9,3 m²)
nappali (18,3 m²)
Műszaki állapot
Az ingatlan az elmúlt években több felújításon esett át:
2022-ben műanyag, több rétegű üvegezésű nyílászárók kerültek beépítésre,
szintén 2022-ben megtörtént a hidegburkolatok cseréje a folyosón, konyhában, fürdőben és WC-ben,
új radiátorok biztosítják az egyenletes hőleadást,
a nappaliban hűtő-fűtő klíma található,
2025 novemberében tisztasági festés történt.
A lakás azonnali felújítás nélkül birtokba vehető.
Költségek és finanszírozás
A közös költség 20.500 Ft/hó, amely tartalmazza a takarítást, a felújítási alapot és a lift felújításának törlesztését is.
Az ingatlan tehermentes, banki hitellel is megvásárolható.
Környék és ellátottság
A közelben minden fontos szolgáltatás elérhető: bevásárlási lehetőségek, gyógyszertár, orvosi rendelő, oktatási intézmények, valamint sportolási és kikapcsolódási lehetőségek.
Közlekedés
3 perc sétára az 50-es villamos, amely kapcsolatot biztosít a Határ úti M3-as metróhoz,
3 perc sétára több buszjárat (93, 93A, 136),
a belváros, Deák Ferenc tér körülbelül 36 perc alatt elérhető,
a parkolás a környéken díjmentes.
Sport és kikapcsolódás
A közelben új konditerem található, valamint az utca végén reformer pilates stúdió is elérhető.
Ez a lakás kiváló választás mindazok számára, akik egy jól elrendezett, azonnal költözhető otthont keresnek jó közlekedéssel és teljes infrastruktúrával rendelkező környezetben. ...TOVÁBBI, TÖBBEZRES INGATLAN KÍNÁLAT: - GDN azonosító: 394595
Megvételre kínálok a XIX. kerületben, a Zrínyi utcában egy 53 m²-es, 2 + 1 félszobás, tehermentes panellakást. Az ingatlan azonnal költözhető állapotban van, így kiváló lehetőség első lakást keresőknek vagy fiatal pároknak.
A lakás egy 10 emeletes, liftes, rendezett társasház 6. emeletén található. A környék csendes, parkos, mégis jól megközelíthető, így ideális választás azok számára, akik nyugodt, de városi környezetben szeretnének élni.
Elrendezés – jól alakítható terek
A 2 + 1 félszobás kialakítás rugalmasan alkalmazkodik az élethelyzethez:
a nappali tágas közösségi térként funkcionál,
a félszoba kényelmes hálószobának ideális,
a harmadik szoba használható dolgozószobának, gyerekszobának vagy gardróbnak.
Helyiségek:
előszoba (5,8 m²)
konyha
közlekedő (4,1 m²)
külön fürdőszoba és WC
hálószoba (9,3 m²)
nappali (18,3 m²)
Műszaki állapot
Az ingatlan az elmúlt években több felújításon esett át:
2022-ben műanyag, több rétegű üvegezésű nyílászárók kerültek beépítésre,
szintén 2022-ben megtörtént a hidegburkolatok cseréje a folyosón, konyhában, fürdőben és WC-ben,
új radiátorok biztosítják az egyenletes hőleadást,
a nappaliban hűtő-fűtő klíma található,
2025 novemberében tisztasági festés történt.
A lakás azonnali felújítás nélkül birtokba vehető.
Költségek és finanszírozás
A közös költség 20.500 Ft/hó, amely tartalmazza a takarítást, a felújítási alapot és a lift felújításának törlesztését is.
Az ingatlan tehermentes, banki hitellel is megvásárolható.
Környék és ellátottság
A közelben minden fontos szolgáltatás elérhető: bevásárlási lehetőségek, gyógyszertár, orvosi rendelő, oktatási intézmények, valamint sportolási és kikapcsolódási lehetőségek.
Közlekedés
3 perc sétára az 50-es villamos, amely kapcsolatot biztosít a Határ úti M3-as metróhoz,
3 perc sétára több buszjárat (93, 93A, 136),
a belváros, Deák Ferenc tér körülbelül 36 perc alatt elérhető,
a parkolás a környéken díjmentes.
Sport és kikapcsolódás
A közelben új konditerem található, valamint az utca végén reformer pilates stúdió is elérhető.
Ez a lakás kiváló választás mindazok számára, akik egy jól elrendezett, azonnal költözhető otthont keresnek jó közlekedéssel és teljes infrastruktúrával rendelkező környezetben. ...TOVÁBBI, TÖBBEZRES INGATLAN KÍNÁLAT: - GDN azonosító: 394595