Eladó Lakás
Hirdetéskód: 9289231
Fővállalkozó Balla és Balla Kft
Felújításhoz személyi kölcsönt keres? Kalkuláljon itt! →54.00 m2
ALAPTERÜLET2
SZOBASZÁMnincs megadva
ÉPÍTÉSEgyéb fűtés
FŰTÉS- CSOK igénybe vehető nem
- Tetőtér beépíthető nem
- Építés éve 2024
- Fűtés Egyéb fűtés
- Klíma nem
- Szigetelt nem
A+++
A++
A+
A
B
C
D
E
F
G
H
I
Az ingatlan leírása
ÚJ ÉPÍTÉSŰ, TERASZOS, környezettudatos, azonnal költözhető igényes, energiatakarékos lakás teremgarázs vásárlás opciójával - akár Otthon Start hitelre is Kispest ( XIX. kerület) szívében, kiváló infrastrukturális adottságokkal megvásárolható.
A 2024-ben épült társasház minden igényt kielégít. Geotermikus hűtés-fűtéssel, zöld tetőkerttel, hatalmas belső kerttel, energiatakarékos megoldásokkal várja lakóit.
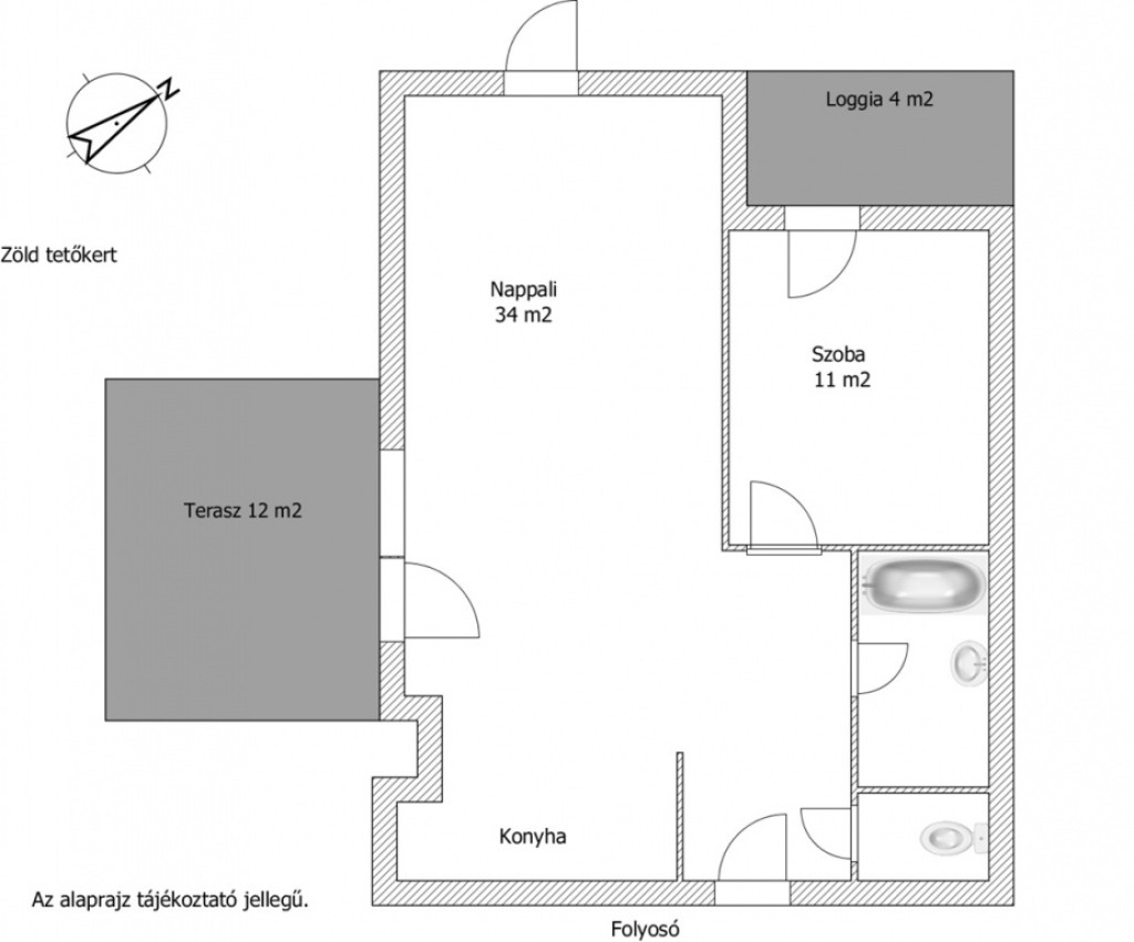
Az 54 nm-es világos esztétikus otthon a 3. emeleten található. A lakás beosztása kiváló tervezés eredménye: az amerikai konyhás, dél- nyugati fekvésű nappalihoz kapcsolódik a 12 m2-es terasz, melyet körbeölel a társasház kezelésébe tartozó gyönyörű zöld terület. Innen nyílik a hálószoba, melynek saját erkélye van. A nappali nyílászáróinak az elhelyezkedése lehetőséget ad egy külön szoba leválasztására.
A nyílászárók, burkolatok, gépészeti elemek mind igényes anyagokból, kiváló minőségben fogják szolgálni a leendő lakóit.
Konyhabútor nincs az árban. A fürdőszoba mellett külön helyiségben található a WC.
A XIX. kerületben a parkolás ingyenes. Ugyanakkor a lakáshoz teremgarázs beállóhely és egy zárható tároló külön megvásárolható A mélygarázsból lifttel közvetleül elérhető a lakás szintje
A garázs és a tároló külön helyrajzi számon van, megvásárlása opcionális, ára együtt 7 M Ft.
A közös költség 20 000 Ft/ hó, minden más fogyasztás alapján, kb 15 000 Ft/hó
Elhelyezkedés kiváló: közintézmények, játszótér, bevásárlási lehetőség, piac, éttermek, SZTK, Posta, stb. gyalog elérhető távolságban. A nagy bevásárlóközpontok (Market Centrál vagy az M5-Soroksár bevásárlóközpont) autóval 12 perc
Közlekedés
Metró: M3 Köki megállója tömegközlekedésel 8 a Határ úti megálló 10 perc. Az itt közlekedő járatokkal: 50-es villamos, 93, 93A 136 számú buszok és a 914, 950, 950A éjszakai járatokkal a belváros is 25-30 perc alatt elérhető. Nagy bevásárló központok ( Auchan, Ikea, OBI, stb. ) autóval 10 perc
Az ingatlan tehermentes, fizetés után azonnal birtokba vehető.
Amennyiben szeretné megtekinteni, hívjon bátran a hét bármely napján.
A 2024-ben épült társasház minden igényt kielégít. Geotermikus hűtés-fűtéssel, zöld tetőkerttel, hatalmas belső kerttel, energiatakarékos megoldásokkal várja lakóit.
Az 54 nm-es világos esztétikus otthon a 3. emeleten található. A lakás beosztása kiváló tervezés eredménye: az amerikai konyhás, dél- nyugati fekvésű nappalihoz kapcsolódik a 12 m2-es terasz, melyet körbeölel a társasház kezelésébe tartozó gyönyörű zöld terület. Innen nyílik a hálószoba, melynek saját erkélye van. A nappali nyílászáróinak az elhelyezkedése lehetőséget ad egy külön szoba leválasztására.
A nyílászárók, burkolatok, gépészeti elemek mind igényes anyagokból, kiváló minőségben fogják szolgálni a leendő lakóit.
Konyhabútor nincs az árban. A fürdőszoba mellett külön helyiségben található a WC.
A XIX. kerületben a parkolás ingyenes. Ugyanakkor a lakáshoz teremgarázs beállóhely és egy zárható tároló külön megvásárolható A mélygarázsból lifttel közvetleül elérhető a lakás szintje
A garázs és a tároló külön helyrajzi számon van, megvásárlása opcionális, ára együtt 7 M Ft.
A közös költség 20 000 Ft/ hó, minden más fogyasztás alapján, kb 15 000 Ft/hó
Elhelyezkedés kiváló: közintézmények, játszótér, bevásárlási lehetőség, piac, éttermek, SZTK, Posta, stb. gyalog elérhető távolságban. A nagy bevásárlóközpontok (Market Centrál vagy az M5-Soroksár bevásárlóközpont) autóval 12 perc
Közlekedés
Metró: M3 Köki megállója tömegközlekedésel 8 a Határ úti megálló 10 perc. Az itt közlekedő járatokkal: 50-es villamos, 93, 93A 136 számú buszok és a 914, 950, 950A éjszakai járatokkal a belváros is 25-30 perc alatt elérhető. Nagy bevásárló központok ( Auchan, Ikea, OBI, stb. ) autóval 10 perc
Az ingatlan tehermentes, fizetés után azonnal birtokba vehető.
Amennyiben szeretné megtekinteni, hívjon bátran a hét bármely napján.