Eladó Lakás
Hirdetéskód: 9185225
Dunaharaszti, Dózsa György út 45. (OTPIP)
Ez a hirdetés megfelelhet a FIX 3%-os programnak.
Tudj meg többet a részletekről itt.
53 m2
ALAPTERÜLET2
SZOBASZÁMnincs megadva
ÉPÍTÉSnincs megadva
FŰTÉS- CSOK igénybe vehető nem
- Tetőtér beépíthető nem
- Építés éve 1990
- Klíma nem
- Szigetelt nem
A+++
A++
A+
A
B
C
D
E
F
G
H
I
Az ingatlan leírása
Eladó ******Kispest*****3 szobás lakás****3%- os hitel!!!!
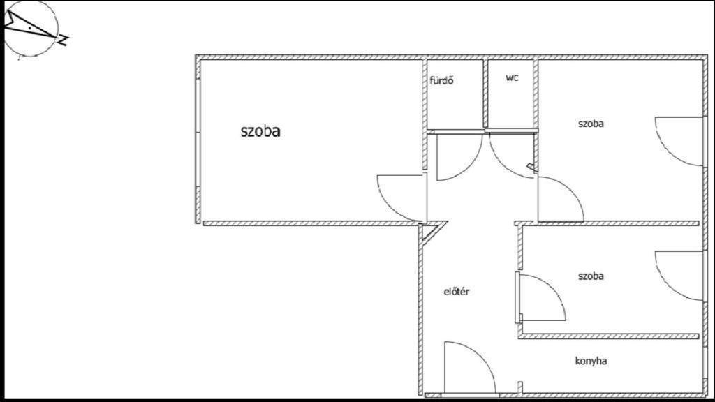
Eladásra kínálok Kispest szívében, egy 53 m2-es, 2 +1 szobás, loggiás ,7.emeleti világos lakást!
Gyönyörűen felújított, IKEA bútorokkal ízlésesen berendezett, modern burkolatokkal, új konyhabútorral és berendezési tárgyakkal ellátott, igényes otthon! Délkeleti fekvésű a nagyobb szoba, de a két kisebb szoba délnyugati, mindegyiken ablak, így a lakás mindig fényben úszik.
A loggia a kisgyermekek miatt védőhálózott. Külön wc és fürdőszoba van. A konyhában a tűzhely és a sütő is villany,szintén Ikeás.
A beépített gardróbok, cipőtárolók, a nappali bútor a leendő vevő igénye szerint mind maradhatnak,a tulajdonossal egyeztetve megvásárolhatók.
A környék telis tele óvodákkal, bölcsikkel, játszótérrel, parkokkal, bevásárlási lehetőségekkel.
A házban Telekom és Digi is elérhető.
A közös költség 27.000,-a vízzel és szeméttel, jelenleg extra csomaggal,extra fogyasztási lehetőséggel. 4 vízórával ellátott. Panel program folyamatban. Fűtés, villany kb.22.000,-.
Csendes, békés ház, jó szomszédok!!
Remek lehetőség kisgyermekeseknek, home officeban dolgozóknak, új otthont keresőknek, kiscsaládosoknak,de befektetésnek sem utolsó!! A beköltözés gyorsan megoldható!
Teljeskörű hitel ügyintézéssel és ügyvédi háttérrel biztosítjuk a leendő tulajdonosok gyors, minden igényt kielégítő ingatlan vásárlását!
Kérdéseivel és megtekintési szándékával forduljon hozzám bizalommal!
Az ingatlan kevés, igény szerint rendezhető hitellel terhelt, de 3% otthon Start és egyéb hitelre is alkalmas .
Eladásra kínálok Kispest szívében, egy 53 m2-es, 2 +1 szobás, loggiás ,7.emeleti világos lakást!
Gyönyörűen felújított, IKEA bútorokkal ízlésesen berendezett, modern burkolatokkal, új konyhabútorral és berendezési tárgyakkal ellátott, igényes otthon! Délkeleti fekvésű a nagyobb szoba, de a két kisebb szoba délnyugati, mindegyiken ablak, így a lakás mindig fényben úszik.
A loggia a kisgyermekek miatt védőhálózott. Külön wc és fürdőszoba van. A konyhában a tűzhely és a sütő is villany,szintén Ikeás.
A beépített gardróbok, cipőtárolók, a nappali bútor a leendő vevő igénye szerint mind maradhatnak,a tulajdonossal egyeztetve megvásárolhatók.
A környék telis tele óvodákkal, bölcsikkel, játszótérrel, parkokkal, bevásárlási lehetőségekkel.
A házban Telekom és Digi is elérhető.
A közös költség 27.000,-a vízzel és szeméttel, jelenleg extra csomaggal,extra fogyasztási lehetőséggel. 4 vízórával ellátott. Panel program folyamatban. Fűtés, villany kb.22.000,-.
Csendes, békés ház, jó szomszédok!!
Remek lehetőség kisgyermekeseknek, home officeban dolgozóknak, új otthont keresőknek, kiscsaládosoknak,de befektetésnek sem utolsó!! A beköltözés gyorsan megoldható!
Teljeskörű hitel ügyintézéssel és ügyvédi háttérrel biztosítjuk a leendő tulajdonosok gyors, minden igényt kielégítő ingatlan vásárlását!
Kérdéseivel és megtekintési szándékával forduljon hozzám bizalommal!
Az ingatlan kevés, igény szerint rendezhető hitellel terhelt, de 3% otthon Start és egyéb hitelre is alkalmas .