Eladó Lakás
Hirdetéskód: 9320909
Fővállalkozó Balla és Balla Kft
Felújításhoz személyi kölcsönt keres? Kalkuláljon itt! →
Ez a hirdetés megfelelhet a FIX 3%-os programnak.
Tudj meg többet a részletekről itt.
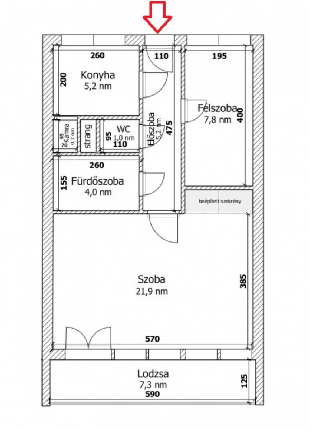
50.00 m2
ALAPTERÜLET1
SZOBASZÁMnincs megadva
ÉPÍTÉSHázközponti
FŰTÉS- CSOK igénybe vehető nem
- Tetőtér beépíthető nem
- Építés éve 1968
- Fűtés Házközponti
- Klíma nem
- Szigetelt nem
A+++
A++
A+
A
B
C
D
E
F
G
H
I
Az ingatlan leírása
Kispest szívében, zöld környezetben: Tágas, 50 nm-es lakás nagy lodzsával!
Eladó Kispest méltán kedvelt, átmenő forgalomtól mentes részén, a Rákóczi utcában egy negyedik emeleti, világos, 50 négyzetméteres lakás. Ez az otthon ideális választás fiatal pároknak, befektetőknek vagy azoknak, akik saját ízlésükre formálnák új otthonukat.
Főbb paraméterek:
• Alapterület: 50 nm + 7 nm lodzsa
• Elosztás: 1 + 1 félszoba (alakítható!)
• Építési mód: Csúsztatott zsalus technológia
• Fűtés: Házközponti kazán, díját a közös költség tartalmazza (egyedi igényekhez igazítható)
• Állapot: Átlagos, esztétikai felújítást igényel (fürdőszoba 2016-ban felújítva)
Miért érdemes ezt a lakást választania?
Csend és nyugalom: Az utca mentes az átmenő forgalomtól, így csak az ott lakók járnak erre. A nappali és a hatalmas, 7 nm-es lodzsa egy gondozott, belső kertre néz, amely a lakók számára pihenőhelyként is szolgál.
Kiváló alakíthatóság: A közel 22 nm-es nappali méretéből adódóan egy gipszkarton fallal könnyedén kettéválasztható. Így a lakás minimális ráfordítással 1 + 2 félszobássá alakítható, növelve az ingatlan értékét és kihasználhatóságát.
Fény és szellőzés: Az ablakos konyha nemcsak világos, de kiválóan átszellőztethető. A konyhához praktikus kamra is tartozik, ami ritka és értékes kincs a társasházi lakásokban.
Legfelső emeleti előnyök: Felejtse el az Ön felett lakó szomszédok zaját vagy a felsőbb szinten lakó szomszéd okozta beázásokat! Itt senki sem zavarja az ön nyugalmát.
Környék és közlekedés:
Kispest központi része minden igényt kielégít:
• Karnyújtásnyira: Iskolák, óvodák, gyógyszertárak, bankok és bevásárlási lehetőségek.
• Közlekedés: Kiváló adottságok! A belváros több irányból, akár átszállás nélkül is gyorsan elérhető.
Amit kínálunk:
• Rugalmas megtekintés.
• Teljes körű, díjmentes hitelügyintézés és bankfüggetlen tanácsadás.
• Profi háttér az adásvétel lebonyolításához.
Ne maradjon le erről a remek lehetőségről! Hívjon bizalommal, és nézzük meg együtt leendő otthonát!
Eladó Kispest méltán kedvelt, átmenő forgalomtól mentes részén, a Rákóczi utcában egy negyedik emeleti, világos, 50 négyzetméteres lakás. Ez az otthon ideális választás fiatal pároknak, befektetőknek vagy azoknak, akik saját ízlésükre formálnák új otthonukat.
Főbb paraméterek:
• Alapterület: 50 nm + 7 nm lodzsa
• Elosztás: 1 + 1 félszoba (alakítható!)
• Építési mód: Csúsztatott zsalus technológia
• Fűtés: Házközponti kazán, díját a közös költség tartalmazza (egyedi igényekhez igazítható)
• Állapot: Átlagos, esztétikai felújítást igényel (fürdőszoba 2016-ban felújítva)
Miért érdemes ezt a lakást választania?
Csend és nyugalom: Az utca mentes az átmenő forgalomtól, így csak az ott lakók járnak erre. A nappali és a hatalmas, 7 nm-es lodzsa egy gondozott, belső kertre néz, amely a lakók számára pihenőhelyként is szolgál.
Kiváló alakíthatóság: A közel 22 nm-es nappali méretéből adódóan egy gipszkarton fallal könnyedén kettéválasztható. Így a lakás minimális ráfordítással 1 + 2 félszobássá alakítható, növelve az ingatlan értékét és kihasználhatóságát.
Fény és szellőzés: Az ablakos konyha nemcsak világos, de kiválóan átszellőztethető. A konyhához praktikus kamra is tartozik, ami ritka és értékes kincs a társasházi lakásokban.
Legfelső emeleti előnyök: Felejtse el az Ön felett lakó szomszédok zaját vagy a felsőbb szinten lakó szomszéd okozta beázásokat! Itt senki sem zavarja az ön nyugalmát.
Környék és közlekedés:
Kispest központi része minden igényt kielégít:
• Karnyújtásnyira: Iskolák, óvodák, gyógyszertárak, bankok és bevásárlási lehetőségek.
• Közlekedés: Kiváló adottságok! A belváros több irányból, akár átszállás nélkül is gyorsan elérhető.
Amit kínálunk:
• Rugalmas megtekintés.
• Teljes körű, díjmentes hitelügyintézés és bankfüggetlen tanácsadás.
• Profi háttér az adásvétel lebonyolításához.
Ne maradjon le erről a remek lehetőségről! Hívjon bizalommal, és nézzük meg együtt leendő otthonát!