Eladó Lakás
Hirdetéskód: 9302698
Érd Bajcsy-Zsilinszky út 160 - OTP Ingatlanpont Iroda
Felújításhoz személyi kölcsönt keres? Kalkuláljon itt! →103.00 m2
ALAPTERÜLET3
SZOBASZÁMnincs megadva
ÉPÍTÉSGáz (cirkó)
FŰTÉS- CSOK igénybe vehető nem
- Belső szintek 1
- Tetőtér beépíthető nem
- Építés éve 1915
- Fűtés Gáz (cirkó)
- Klíma nem
- Szigetelt nem
A+++
A++
A+
A
B
C
D
E
F
G
H
I
Az ingatlan leírása
Két ingatlan egy áráért! Kertkapcsolatos prémium otthon és külön apartman Istvánmező szívében!
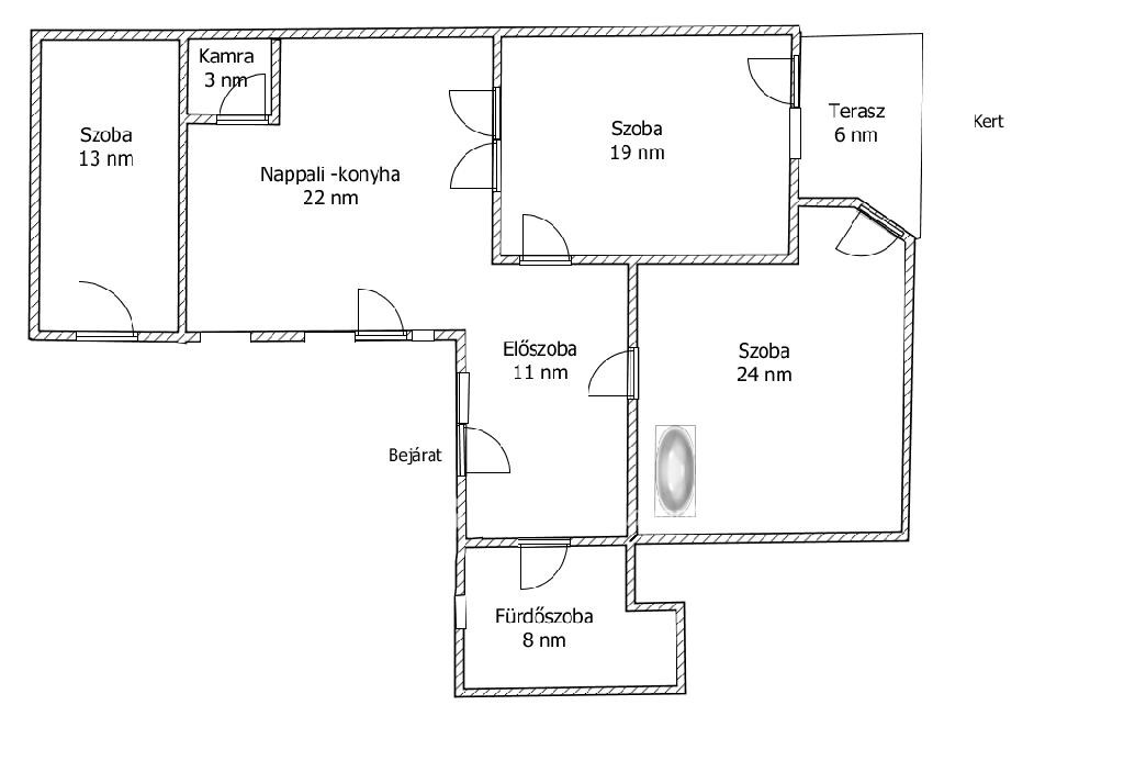
Eladásra kínálok a XIV. kerület egyik legkedveltebb részén, Istvánmezőn egy 103 nm-es, földszinti, teljes körűen és magas minőségben felújított ingatlant. A lakás különlegessége a rendkívül rugalmas kialakítás: az ingatlan egyik szobája saját bejárattal és önálló mérőórával rendelkezik, így gyakorlatilag két ingatlant kapunk egy áráért. Ez a rész ideális lehet különálló stúdióként, irodának vagy vendéglakrésznek, de a fő lakótérrel egybenyitva egy tágas, három hálószobás családi otthonként is tökéletesen funkcionál.
A belső terek 3,2 méteres belmagassága elegáns, levegős érzetet biztosít, a tágas amerikai konyhás nappali központi dísze pedig egy egyedileg beépített kandalló, amely ritka és hangulatos eleme a lakásnak. A szobákból közvetlen kijárás nyílik a 6 nm-es saját teraszra, amelyen keresztül a kertkapcsolat előnyeit is élvezhetjük a város szívében.
A felújítás során a legkorszerűbb műszaki megoldásokat alkalmazták. A lakás hő- és hangszigeteléséről háromrétegű nyílászárók és elektromos redőnyök gondoskodnak, a kellemes hőérzetet pedig egyedileg szabályozható gáz-cirkó fűtéssel ( hidegburkolat alatt padlófűtés) és klímaberendezés biztosítja. A biztonságról kiépített riasztórendszer gondoskodik, a tárolást pedig a lakáshoz tartozó saját pincehelyiség segíti.
A ház lakóközössége és maga a ház is rendezett, karbantartott.
A modern gépészetnek köszönhetően a fenntartási költségek rendkívül kedvezőek, a közös költség mindössze 24 000 Ft havonta. Ez az ingatlan kiváló választás mindazoknak, akik csendes, nívós környezetben keresnek azonnal költözhető, többcélú hasznosításra is alkalmas prémium otthont vagy értékálló befektetést.
Eladásra kínálok a XIV. kerület egyik legkedveltebb részén, Istvánmezőn egy 103 nm-es, földszinti, teljes körűen és magas minőségben felújított ingatlant. A lakás különlegessége a rendkívül rugalmas kialakítás: az ingatlan egyik szobája saját bejárattal és önálló mérőórával rendelkezik, így gyakorlatilag két ingatlant kapunk egy áráért. Ez a rész ideális lehet különálló stúdióként, irodának vagy vendéglakrésznek, de a fő lakótérrel egybenyitva egy tágas, három hálószobás családi otthonként is tökéletesen funkcionál.
A belső terek 3,2 méteres belmagassága elegáns, levegős érzetet biztosít, a tágas amerikai konyhás nappali központi dísze pedig egy egyedileg beépített kandalló, amely ritka és hangulatos eleme a lakásnak. A szobákból közvetlen kijárás nyílik a 6 nm-es saját teraszra, amelyen keresztül a kertkapcsolat előnyeit is élvezhetjük a város szívében.
A felújítás során a legkorszerűbb műszaki megoldásokat alkalmazták. A lakás hő- és hangszigeteléséről háromrétegű nyílászárók és elektromos redőnyök gondoskodnak, a kellemes hőérzetet pedig egyedileg szabályozható gáz-cirkó fűtéssel ( hidegburkolat alatt padlófűtés) és klímaberendezés biztosítja. A biztonságról kiépített riasztórendszer gondoskodik, a tárolást pedig a lakáshoz tartozó saját pincehelyiség segíti.
A ház lakóközössége és maga a ház is rendezett, karbantartott.
A modern gépészetnek köszönhetően a fenntartási költségek rendkívül kedvezőek, a közös költség mindössze 24 000 Ft havonta. Ez az ingatlan kiváló választás mindazoknak, akik csendes, nívós környezetben keresnek azonnal költözhető, többcélú hasznosításra is alkalmas prémium otthont vagy értékálló befektetést.