Eladó Lakás
Hirdetéskód: 9308582
OTP Ingatlanpont - Takács Zsuzsanna
Felújításhoz személyi kölcsönt keres? Kalkuláljon itt! →
Ez a hirdetés megfelelhet a FIX 3%-os programnak.
Tudj meg többet a részletekről itt.
49.00 m2
ALAPTERÜLET2
SZOBASZÁMnincs megadva
ÉPÍTÉSTávfűtés egyedi méréssel
FŰTÉS- CSOK igénybe vehető nem
- Tetőtér beépíthető nem
- Építés éve 1980
- Fűtés Távfűtés egyedi méréssel
- Klíma nem
- Szigetelt nem
A+++
A++
A+
A
B
C
D
E
F
G
H
I
Az ingatlan leírása
XIV. kerület, Füredi lakótelep: saját kényelem vagy azonnali hozam az Ond vezér útján!
Eladásra kínálunk a XIV. kerület egyik legkeresettebb részén, a Füredi lakótelepen egy 49 m2-es, 2 szobás, loggiás, jó állapotú panellakást. Az ingatlan egy panelprogramon átesett, liftes társasház magasföldszintjén található, nyugati fekvésének köszönhetően pedig rendkívül világos.
Befektetők figyelem!
Az ingatlanban jelenleg is megbízható bérlők laknak, akik az adásvétel után is szívesen maradnának. Ez kiváló lehetőség azoknak, akik azonnali hozamot keresnek. Stabil kereslet, biztos megtérülés!
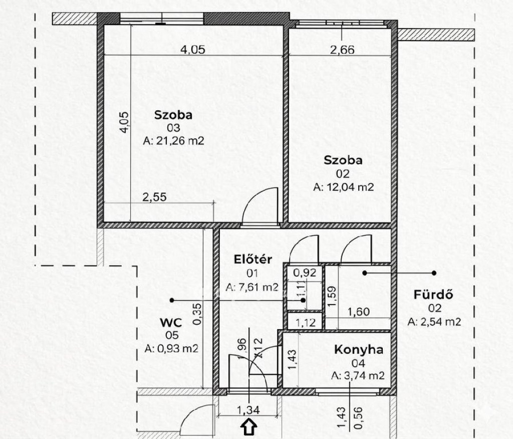
A lakás belső elrendezése:
A lakásba belépve egy praktikus, L alakú előtérbe érkezünk, ahonnan minden helyiség külön megközelíthető. Jobbra található a világos konyha, valamint a különálló WC és fürdőszoba. A közlekedő végén helyezkedik el a két tágas szoba; a kisebbik szobából közvetlen kijárás nyílik a nyugati fekvésű loggiára, amely ideális helyszín az esti kikapcsolódáshoz.
A társasház és a környezet:
A 10 emeletes társasház tiszta, rendezett, liftes és számkódos beléptetőrendszerrel védett. A környék igazi zöldövezeti paradicsom: parkok, játszóterek és sétatávolságra lévő kikapcsolódási lehetőségek jellemzik a Füredi lakótelepet.
Infrastruktúra és közlekedés:
A lokáció párját ritkítja, hiszen minden karnyújtásnyira van, amire a hétköznapokban szükség lehet:
Vásárlás: Árkád, Sugár, IKEA, ALDI, SPAR, pékségek és éttermek.
Szolgáltatások: Óvoda, iskola, posta, gyógyszertár a közvetlen közelben.
Közlekedés: A 80-as troli megállója szinte a ház előtt, az M2-es metró (Örs vezér tere) mindössze 2 megálló. A HÉV és számos buszjárat szintén könnyen elérhető, így a város bármely pontja gyorsan megközelíthető.
Ne maradjon le erről a remek lehetőségről! Akár saját otthonnak, akár kiadásra keres ingatlant, ez a lakás minden szempontból jó döntés.
M325598
Az OTP Ingatlanpont, mint egyetlen közvetlen banki hátterű ingatlanközvetítő társaság teljes körű ügyintézéssel áll az eladók és a vevők rendelkezésére! A kínálatunkból választott ingatlan finanszírozásához minősített fogyasztóbarát, piaci és kedvezményes hitel- és lízingkonstrukciókat kínálunk (lakásvásárlási hitel, CSOK plusz, szabad felhasználású hitel, babaváró hitel, céges hitelek, pályázatok, amennyiben az ügyfél és az ingatlan megfelel a feltételeknek). Az adásvételi szerződés megkötéséhez igény szerint megbízható ügyvédi közreműködést biztosítunk, és segítséget nyújtunk az adásvételhez kapcsolódó egyéb ügyek intézéséhez.
Ha az új ingatlana megvásárlásához a jelenlegi ingatlanát el kell adnia, abban is szívesen segítünk.
Eladásra kínálunk a XIV. kerület egyik legkeresettebb részén, a Füredi lakótelepen egy 49 m2-es, 2 szobás, loggiás, jó állapotú panellakást. Az ingatlan egy panelprogramon átesett, liftes társasház magasföldszintjén található, nyugati fekvésének köszönhetően pedig rendkívül világos.
Befektetők figyelem!
Az ingatlanban jelenleg is megbízható bérlők laknak, akik az adásvétel után is szívesen maradnának. Ez kiváló lehetőség azoknak, akik azonnali hozamot keresnek. Stabil kereslet, biztos megtérülés!
A lakás belső elrendezése:
A lakásba belépve egy praktikus, L alakú előtérbe érkezünk, ahonnan minden helyiség külön megközelíthető. Jobbra található a világos konyha, valamint a különálló WC és fürdőszoba. A közlekedő végén helyezkedik el a két tágas szoba; a kisebbik szobából közvetlen kijárás nyílik a nyugati fekvésű loggiára, amely ideális helyszín az esti kikapcsolódáshoz.
A társasház és a környezet:
A 10 emeletes társasház tiszta, rendezett, liftes és számkódos beléptetőrendszerrel védett. A környék igazi zöldövezeti paradicsom: parkok, játszóterek és sétatávolságra lévő kikapcsolódási lehetőségek jellemzik a Füredi lakótelepet.
Infrastruktúra és közlekedés:
A lokáció párját ritkítja, hiszen minden karnyújtásnyira van, amire a hétköznapokban szükség lehet:
Vásárlás: Árkád, Sugár, IKEA, ALDI, SPAR, pékségek és éttermek.
Szolgáltatások: Óvoda, iskola, posta, gyógyszertár a közvetlen közelben.
Közlekedés: A 80-as troli megállója szinte a ház előtt, az M2-es metró (Örs vezér tere) mindössze 2 megálló. A HÉV és számos buszjárat szintén könnyen elérhető, így a város bármely pontja gyorsan megközelíthető.
Ne maradjon le erről a remek lehetőségről! Akár saját otthonnak, akár kiadásra keres ingatlant, ez a lakás minden szempontból jó döntés.
M325598
Az OTP Ingatlanpont, mint egyetlen közvetlen banki hátterű ingatlanközvetítő társaság teljes körű ügyintézéssel áll az eladók és a vevők rendelkezésére! A kínálatunkból választott ingatlan finanszírozásához minősített fogyasztóbarát, piaci és kedvezményes hitel- és lízingkonstrukciókat kínálunk (lakásvásárlási hitel, CSOK plusz, szabad felhasználású hitel, babaváró hitel, céges hitelek, pályázatok, amennyiben az ügyfél és az ingatlan megfelel a feltételeknek). Az adásvételi szerződés megkötéséhez igény szerint megbízható ügyvédi közreműködést biztosítunk, és segítséget nyújtunk az adásvételhez kapcsolódó egyéb ügyek intézéséhez.
Ha az új ingatlana megvásárlásához a jelenlegi ingatlanát el kell adnia, abban is szívesen segítünk.