Eladó Lakás
Hirdetéskód: 9320922

Fővállalkozó Balla és Balla Kft

Felújításhoz személyi kölcsönt keres? Kalkuláljon itt! →
FIX 3% Program

Ez a hirdetés megfelelhet a FIX 3%-os programnak.
Tudj meg többet a részletekről itt.

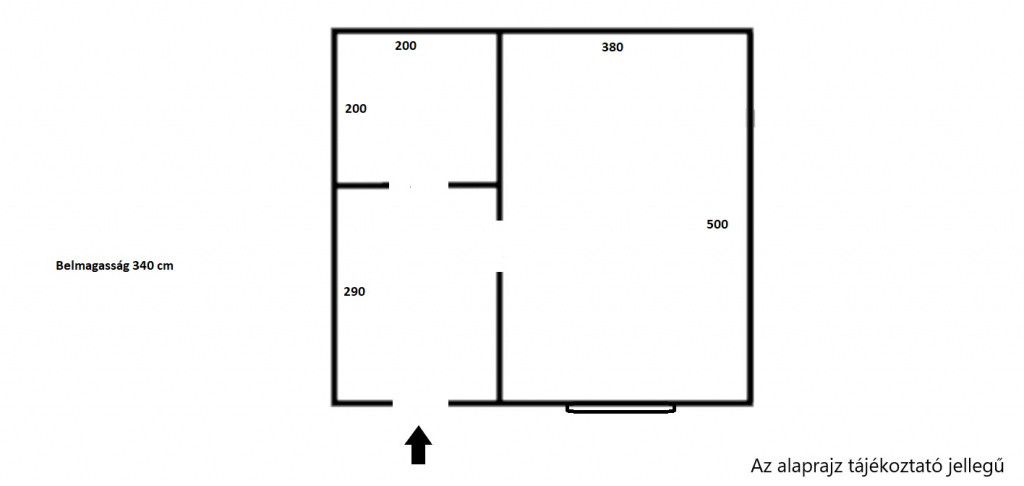
28.00 m2
ALAPTERÜLET
1
SZOBASZÁM
nincs megadva
ÉPÍTÉS
Gáz (konvektor)
FŰTÉS
  • CSOK igénybe vehető nem
  • Tetőtér beépíthető nem
  • Építés éve 1940
  • Fűtés Gáz (konvektor)
  • Klíma nem
  • Szigetelt nem
Energetikai besorolás: Nincs meghatározva
A+++
A++
A+
A
B
C
D
E
F
G
H
I

Az MBH Bank személyi kölcsön ajánlata

Fizetett hirdetés
1 millió Ft
6 évre
20 585 Ft/hó
THM: 14.5%
Részletek →
2 millió Ft
6 évre
41 169 Ft/hó
THM: 14.5%
Részletek →
3 millió Ft
6 évre
61 754 Ft/hó
THM: 14.5%
Részletek →

A tájékoztatás nem teljes körű és nem minősül ajánlattételnek.

Az ingatlan leírása

XIV. Zugló központi részén, Bosnyák tértől pár perces sétára kínálunk megvételre egy földszintes, udvari bejáratos, 28 nm-es, közepes állapotú garzonlakást. Az ingatlan gázkonvektoros fűtésű, minden egyedileg mérhető, a meleg vizet villanybojler szolgáltatja.
A lakás a Komócsy utca elején helyezkedik el, kitűnő infrastrukturális elhelyezkedéssel bír.
Aki késztetést érez rá, az udvaron közvetlenül a lakás előtti kertrészt szokásjog alapján birtokolhatja és hangulatossá varázsolhatja a bejáratát.
További kérdésekkel kapcsolatban telefonon tudok tájékoztatást adni, várom hívását!

Ha érdekli az ingatlan, vagy esetleg saját lakásának eladásában is tudnánk segíteni, kérem keressen bizalommal! Cégünk piacvezetőként már akár nettó 2,5%-os közvetítői díjért is segít az értékesítésben!
Vevőknek szolgáltatásunk ingyenes!

Térkép

Ingatlan adásvétel ügyvédi díja
170 550 Ft
a hirdetésben szereplő ár alapján
  • A vételár 0,45%-a
  • Szerződéscsomag teljeskörű képviselettel
  • Ingyenes tulajdoni lap ellenőrzés
  • Az ÁFA-t már tartalmazza
Érdekel az ajánlat →
A tájékoztatás nem teljes körű és nem minősül ajánlattételnek. Minimum díj: 150 000 Ft, maximum díj: 600 000 Ft. A díj kizárólag lakóingatlan adásvételére vonatkozik.

A hirdető elérhetősége

Fővállalkozó Balla és Balla Kft

Sebestyén Tamás
+36 70 332