Eladó Lakás
Hirdetéskód: 9240322

-

Felújításhoz személyi kölcsönt keres? Kalkuláljon itt! →
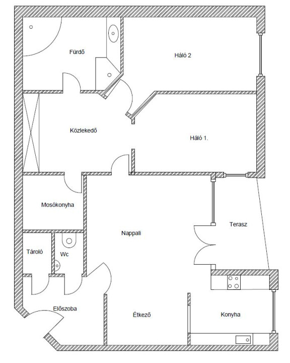
96.00 m2
ALAPTERÜLET
4
SZOBASZÁM
Tégla
ÉPÍTÉS
Házközponti
FŰTÉS
  • Kilátás Udvari
  • Tájolás Dél
  • Ingatlan komfort Összkomfortos
  • Parkolási lehetőség Utcán, közterületen
  • Építés éve 2001
  • Fűtés Házközponti
  • Építőanyag Tégla
  • Erkély, terasz Erkély 6.00m2
  • Klíma igen
  • Szigetelt nem
  • Bútorozott igen
  • Akadálymentesített igen
Energetikai besorolás: Nincs meghatározva
A+++
A++
A+
A
B
C
D
E
F
G
H
I

Az MBH Bank személyi kölcsön ajánlata

Fizetett hirdetés
1 millió Ft
6 évre
20 585 Ft/hó
THM: 14.5%
Részletek →
2 millió Ft
6 évre
41 169 Ft/hó
THM: 14.5%
Részletek →
3 millió Ft
6 évre
61 754 Ft/hó
THM: 14.5%
Részletek →

A tájékoztatás nem teljes körű és nem minősül ajánlattételnek.

Az ingatlan leírása

Zugló egyik kedvelt részén eladó egy világos, barátságos hangulatú, II. emeleti lakás, csendes, rendezett házban. Az ingatlan belső díszkertre néző erkéllyel rendelkezik, így nyugodt, zöld környezetet biztosít. A társasházban portaszolgálat és takarító személyzet működik, ennek köszönhetően az épület biztonságos, tiszta és kulturált, az előtér és a folyosók folyamatosan karbantartottak. A lakáshoz két darab, egyenként 2 nm-es tároló tartozik: – az egyik a lakás szintjén, a folyosón – a másik a földszinten található. A lakás főbb jellemzői: klímával ellátott redőnyözött nyílászárók beépített gardrób épített zuhanyzó mosókonyha és kamra felszerelt konyha 2 db WC Lokáció: A lakás a Stefánia úttal párhuzamos utcában, a zuglói rendőrkapitányság mögött helyezkedik el. Kiváló tömegközlekedési adottságokkal rendelkezik, a Városliget mindössze 10 perc sétára található. A közelben gyógyszertár, orvosi rendelő, bankok, dohánybolt, pékség és több üzlet is elérhető. Ingatlanosok megkeresését kérem, mellőzzék.

Térkép

Ingatlan adásvétel ügyvédi díja
600 000 Ft
a hirdetésben szereplő ár alapján
  • A vételár 0,45%-a
  • Szerződéscsomag teljeskörű képviselettel
  • Ingyenes tulajdoni lap ellenőrzés
  • Az ÁFA-t már tartalmazza
Érdekel az ajánlat →
A tájékoztatás nem teljes körű és nem minősül ajánlattételnek. Minimum díj: 150 000 Ft, maximum díj: 600 000 Ft. A díj kizárólag lakóingatlan adásvételére vonatkozik.

A hirdető elérhetősége

Ákos Straubinger

+36 30 232