Eladó Lakás
Hirdetéskód: 9325483
OTP Ingatlanpont - Budapest IX. ker., Üllői út 21.
Felújításhoz személyi kölcsönt keres? Kalkuláljon itt! →67.00 m2
ALAPTERÜLET3
SZOBASZÁMnincs megadva
ÉPÍTÉSHázközponti fűtés egyedi méréssel
FŰTÉS- CSOK igénybe vehető nem
- Tetőtér beépíthető nem
- Építés éve 2018
- Fűtés Házközponti fűtés egyedi méréssel
- Klíma nem
- Szigetelt nem
A+++
A++
A+
A
B
C
D
E
F
G
H
I
Az ingatlan leírása
***NAPFÉNYES LUXUS ÉS HATALMAS TERASZ ZUGLÓ SZÍVÉBEN***
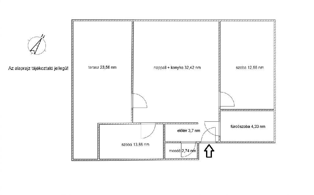
Eladásra kínálunk egy 2018-ban épült, 70 nm-es, 3 szobás téglalakást az első tulajdonostól Zugló, Alsórákos egyik legkedveltebb részén. Ez az ingatlan nem csupán egy lakás, hanem egy életérzés: a modern építészeti megoldások, a tágas terek és a lenyűgöző, 23 nm-es délnyugati fekvésű terasz kombinációja teszi egyedülállóvá a piacon.
A XIV. kerület, Alsórákos egyik legkeresettebb része. Kiváló közlekedés (trolik, buszok pár percre), sétatávolságra boltok, iskolák, óvodák és kikapcsolódási lehetőségek. Minden elérhető, amire a mindennapi életben szükség van, mégis zöldebb, élhetőbb környezetben.
FŐBB JELLEMZŐK:
Alapterület: 70 nm lakótér + 23 nm terasz.
Elosztás: Amerikai konyhás nappali + 2 külön nyíló hálószoba (ideális családoknak vagy home office-hoz).
Állapot: Fiatal, 2018-as építésű társasház, kifogástalan állapot.
Kényelem: Légkondicionált helyiségek, akadálymentesített épület, modern lift.
Fényviszonyok: Délnyugati tájolásának köszönhetően a lakás egész nap úszik a természetes fényben.
Kilátás: Csendes, belső udvari nézet, amely garantálja a nyugalmat a városi nyüzsgés közepette is.
A lakás 2018-as átadását követően 2021-ben minden konstrukciós hibát kijavított a kivitelező, így a lakás kifogástalan állapotban várja az új tulajdonosát, semmihez nem kellett hozzányúlni köszönhetően a gondos tulajdonosoknak.
Az eladási ár részét képezik a beépített bútorok a konyhában, az előszobában, mosdóban, fürdőszobában, valamint az egyik hálószobában található nagyméretű gardrób szekrény is. Minden egyéb mozdítható bútorzat külön megbeszélés tárgya.
Az ingatlanhoz OPCIONÁLISAN megvásárolható egy kényelmes hely a teremgarázsban is, így a parkolás sosem lesz probléma, illetve egy tároló is szükség esetén.
A teraszon holland pázsit szolgálja a lakók kényelmét, az ablakokon szúnyogháló található, ha már elege lett túl sok napfényből a teraszon egy motoros napernyő is lett beépítve, hogy hűs árnyékot nyújtson az ott tartózkodóknak.
KINEK AJÁNLJUK?
Fiatal pároknak/családoknak: Aki modern, biztonságos és igényes otthont keresnek.
A terasz szerelmeseinek: Akiknek fontos a saját kültéri birodalom, ahol kávézhatnak, kertészkedhetnek vagy barátokat fogadhatnak.
NE MARADJON LE RÓLA!
Ez az ingatlan ritka kincs a zuglói piacon. Jöjjön el, nézze meg személyesen, és szeressen bele a tágas terasz adta szabadságba!
Az OTP Ingatlanpont teljes körű ügyintézéssel áll az eladók és a vevők rendelkezésére. A kínálatunkból választott ingatlan finanszírozásához kedvezményes hitelkonstrukciót kínálunk. Az adásvételi szerződés megkötéséhez igény szerint megbízható ügyvédi közreműködést biztosítunk, és segítséget nyújtunk az adásvételhez kapcsolódó ügyek intézéséhez is.
Az energetikai tanúsítvány készítése folyamatban van, amint rendelkezésre áll, úgy azzal a hirdetés frissítésre kerül.
Eladásra kínálunk egy 2018-ban épült, 70 nm-es, 3 szobás téglalakást az első tulajdonostól Zugló, Alsórákos egyik legkedveltebb részén. Ez az ingatlan nem csupán egy lakás, hanem egy életérzés: a modern építészeti megoldások, a tágas terek és a lenyűgöző, 23 nm-es délnyugati fekvésű terasz kombinációja teszi egyedülállóvá a piacon.
A XIV. kerület, Alsórákos egyik legkeresettebb része. Kiváló közlekedés (trolik, buszok pár percre), sétatávolságra boltok, iskolák, óvodák és kikapcsolódási lehetőségek. Minden elérhető, amire a mindennapi életben szükség van, mégis zöldebb, élhetőbb környezetben.
FŐBB JELLEMZŐK:
Alapterület: 70 nm lakótér + 23 nm terasz.
Elosztás: Amerikai konyhás nappali + 2 külön nyíló hálószoba (ideális családoknak vagy home office-hoz).
Állapot: Fiatal, 2018-as építésű társasház, kifogástalan állapot.
Kényelem: Légkondicionált helyiségek, akadálymentesített épület, modern lift.
Fényviszonyok: Délnyugati tájolásának köszönhetően a lakás egész nap úszik a természetes fényben.
Kilátás: Csendes, belső udvari nézet, amely garantálja a nyugalmat a városi nyüzsgés közepette is.
A lakás 2018-as átadását követően 2021-ben minden konstrukciós hibát kijavított a kivitelező, így a lakás kifogástalan állapotban várja az új tulajdonosát, semmihez nem kellett hozzányúlni köszönhetően a gondos tulajdonosoknak.
Az eladási ár részét képezik a beépített bútorok a konyhában, az előszobában, mosdóban, fürdőszobában, valamint az egyik hálószobában található nagyméretű gardrób szekrény is. Minden egyéb mozdítható bútorzat külön megbeszélés tárgya.
Az ingatlanhoz OPCIONÁLISAN megvásárolható egy kényelmes hely a teremgarázsban is, így a parkolás sosem lesz probléma, illetve egy tároló is szükség esetén.
A teraszon holland pázsit szolgálja a lakók kényelmét, az ablakokon szúnyogháló található, ha már elege lett túl sok napfényből a teraszon egy motoros napernyő is lett beépítve, hogy hűs árnyékot nyújtson az ott tartózkodóknak.
KINEK AJÁNLJUK?
Fiatal pároknak/családoknak: Aki modern, biztonságos és igényes otthont keresnek.
A terasz szerelmeseinek: Akiknek fontos a saját kültéri birodalom, ahol kávézhatnak, kertészkedhetnek vagy barátokat fogadhatnak.
NE MARADJON LE RÓLA!
Ez az ingatlan ritka kincs a zuglói piacon. Jöjjön el, nézze meg személyesen, és szeressen bele a tágas terasz adta szabadságba!
Az OTP Ingatlanpont teljes körű ügyintézéssel áll az eladók és a vevők rendelkezésére. A kínálatunkból választott ingatlan finanszírozásához kedvezményes hitelkonstrukciót kínálunk. Az adásvételi szerződés megkötéséhez igény szerint megbízható ügyvédi közreműködést biztosítunk, és segítséget nyújtunk az adásvételhez kapcsolódó ügyek intézéséhez is.
Az energetikai tanúsítvány készítése folyamatban van, amint rendelkezésre áll, úgy azzal a hirdetés frissítésre kerül.