Eladó Lakás
Hirdetéskód: 9259953
Benefit Line (OC)
56.00 m2
ALAPTERÜLET3
SZOBASZÁMnincs megadva
ÉPÍTÉSnincs megadva
FŰTÉS- CSOK igénybe vehető nem
- Tetőtér beépíthető nem
- Építés éve 1960
- Klíma nem
- Szigetelt nem
A+++
A++
A+
A
B
C
D
E
F
G
H
I
Az ingatlan leírása
Fedezze fel álmai otthonát Nagyzuglóban 3 szobás, hangulatos lakás várja Önt!
Budapest XIV. kerületének kedvelt, csendes részén, Nagyzuglóban keresi új tulajdonosát egy hangulatos, bruttó 80 m2 alapterületű, 3 szobás, tetőtéri tégla lakás, rendezett társasházban. Ideális választás lehet pároknak, családoknak vagy befektetőknek is, akik a városi kényelmet szeretnék egy csendesebb, zöldebb helyen élvezni.
A KÖRNYEZETRŐL
XIV. kerület, Nagyzugló – csendes, mégis központi elhelyezkedés.
Barátságos, zöldövezeti környék, ideális, ha a városközpont közelségét szeretné élvezni, de nyugodtabb környezetben.
Kiváló a közlekedés, az Örs vezér tere pár perces távolság, ami rengeteg busz- és metrókapcsolatot jelent és gyors belvárosi elérést.
5–10 perces sétatávolságon belül elérhetők a napi életvitelhez szükséges dolgok, élelmiszerbolt, pékség, óvoda, iskola, gyógyszertár, edzőterem.
A TÁRSASHÁZRÓL
1950-es években épült, 4 szintes, jó állapotú, tégla falazatú társasház.
Rendezett homlokzat és gondozott, tiszta közös terek jellemzik.
Az épületben nincs lift, a lakás a 4. szinten, a beépített tetőtérben található.
A LAKÁSRÓL
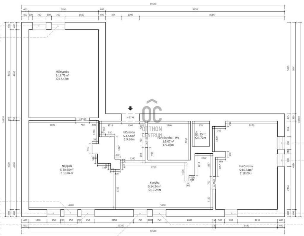
️ 4. emeleti /tetőtéri, 80 m2 teljes alapterületű, világos, 3 szobás ingatlan.
️ Tulajdoni lapon 56 m2-es, északi tájolású, nagyon világos és hangulatos otthon.
️ Elosztása: előszoba, amerikai konyhás nappali és étkező, 2 hálószoba, kádas fürdőszoba - toalett.
️ Nappali és hálószobák laminált padlóval, az előszoba, konyha, fürdőszoba járólappal burkolt.
️ Az egyedileg tervezett, modern konyhagépekkel felszerelt konyhabútor a vételár részét képezi.
️ Műszaki és esztétikai állapot jó, tulajdonosai folyamatosan gondozzák, 2022-ben történt a radiátorok cseréje.
️ Modern, WiFi-n keresztül, telefonról is vezérelhető termosztát került beszerelésre.
️ Fűtését gáz cirkó kazán, hűtését klímaberendezés biztosítja.
️ Közös költség: 16 320 Ft/hó
️ A lakáshoz 2,5 m²-es saját tároló tartozik a pince szinten.
FINANSZÍROZÁSBAN ONLINE ÜGYINTÉZÉSSEL IS SEGÍTÜNK
Többszörösen díjnyertes irodánk hitelszakértői 20+ év tapasztalattal várják.
Bank-független hitelcenterünk díjmentesen versenyezteti a bankok ajánlatait.
Egyedi, személyre szabott hitelkonstrukciók és kedvezményes feltételek.
Fogyasztóbarát hitelek, babaváró támogatás, teljes körű CSOK PLUSZ és OTTHON START ügyintézés.
Igény esetén előzetes időpont egyeztetéssel akár munkaidőn kívül is.
Ha nyugodt és kertvárosi hangulatú környéken szeretne egy tágas terekkel rendelkező, világos, azonnal költözhető otthont és fontos szempont a csend és a jó közlekedés, akkor ezt ne hagyja ki!
Bővebb információért és megtekintési időpontért kérem, hívjon bizalommal!
Ez az ingatlan a Felező csomag megbízási portfólióhoz tartozik. Részletek az Otthon Centrum weboldalán.
Budapest XIV. kerületének kedvelt, csendes részén, Nagyzuglóban keresi új tulajdonosát egy hangulatos, bruttó 80 m2 alapterületű, 3 szobás, tetőtéri tégla lakás, rendezett társasházban. Ideális választás lehet pároknak, családoknak vagy befektetőknek is, akik a városi kényelmet szeretnék egy csendesebb, zöldebb helyen élvezni.
A KÖRNYEZETRŐL
XIV. kerület, Nagyzugló – csendes, mégis központi elhelyezkedés.
Barátságos, zöldövezeti környék, ideális, ha a városközpont közelségét szeretné élvezni, de nyugodtabb környezetben.
Kiváló a közlekedés, az Örs vezér tere pár perces távolság, ami rengeteg busz- és metrókapcsolatot jelent és gyors belvárosi elérést.
5–10 perces sétatávolságon belül elérhetők a napi életvitelhez szükséges dolgok, élelmiszerbolt, pékség, óvoda, iskola, gyógyszertár, edzőterem.
A TÁRSASHÁZRÓL
1950-es években épült, 4 szintes, jó állapotú, tégla falazatú társasház.
Rendezett homlokzat és gondozott, tiszta közös terek jellemzik.
Az épületben nincs lift, a lakás a 4. szinten, a beépített tetőtérben található.
A LAKÁSRÓL
️ 4. emeleti /tetőtéri, 80 m2 teljes alapterületű, világos, 3 szobás ingatlan.
️ Tulajdoni lapon 56 m2-es, északi tájolású, nagyon világos és hangulatos otthon.
️ Elosztása: előszoba, amerikai konyhás nappali és étkező, 2 hálószoba, kádas fürdőszoba - toalett.
️ Nappali és hálószobák laminált padlóval, az előszoba, konyha, fürdőszoba járólappal burkolt.
️ Az egyedileg tervezett, modern konyhagépekkel felszerelt konyhabútor a vételár részét képezi.
️ Műszaki és esztétikai állapot jó, tulajdonosai folyamatosan gondozzák, 2022-ben történt a radiátorok cseréje.
️ Modern, WiFi-n keresztül, telefonról is vezérelhető termosztát került beszerelésre.
️ Fűtését gáz cirkó kazán, hűtését klímaberendezés biztosítja.
️ Közös költség: 16 320 Ft/hó
️ A lakáshoz 2,5 m²-es saját tároló tartozik a pince szinten.
FINANSZÍROZÁSBAN ONLINE ÜGYINTÉZÉSSEL IS SEGÍTÜNK
Többszörösen díjnyertes irodánk hitelszakértői 20+ év tapasztalattal várják.
Bank-független hitelcenterünk díjmentesen versenyezteti a bankok ajánlatait.
Egyedi, személyre szabott hitelkonstrukciók és kedvezményes feltételek.
Fogyasztóbarát hitelek, babaváró támogatás, teljes körű CSOK PLUSZ és OTTHON START ügyintézés.
Igény esetén előzetes időpont egyeztetéssel akár munkaidőn kívül is.
Ha nyugodt és kertvárosi hangulatú környéken szeretne egy tágas terekkel rendelkező, világos, azonnal költözhető otthont és fontos szempont a csend és a jó közlekedés, akkor ezt ne hagyja ki!
Bővebb információért és megtekintési időpontért kérem, hívjon bizalommal!
Ez az ingatlan a Felező csomag megbízási portfólióhoz tartozik. Részletek az Otthon Centrum weboldalán.