Eladó Lakás
Hirdetéskód: 9201034
Fővállalkozó Balla és Balla Kft
32 m2
ALAPTERÜLET1
SZOBASZÁMnincs megadva
ÉPÍTÉSHázközponti
FŰTÉS- CSOK igénybe vehető nem
- Tetőtér beépíthető nem
- Építés éve 2025
- Fűtés Házközponti
- Klíma nem
- Szigetelt nem
A+++
A++
A+
A
B
C
D
E
F
G
H
I
Az ingatlan leírása
XIII. KERÜLET - ÚJ ÉPÍTÉSŰ - GÉPKOCSIBEÁLLÓ - 2026. ÁPRILISI ÁTADÁS
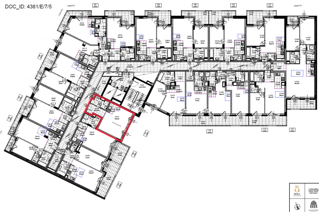
Angyalföldön - Üteg utcában - kínálok eladásra egy új építésű társasház V. emeletén elhelyezkedő lakást - liftes házban.
Az ingatlan lakóterülete 32, 13 nm.
Vásárolható hozzá egy 13,7 nm-es gépkocsibeálló - nem kötelező -
ára: 8.000.000.-Ft.
A műszaki átadás az első negyedévben várható.
Novemberben műszaki bejárásra van lehetőség.
Remek lokáció, jó közlekedés, modern korszerű lakás.
Kérdéseivel, megtekintéssel kapcsolatban hívjon bizalommal!
Angyalföldön - Üteg utcában - kínálok eladásra egy új építésű társasház V. emeletén elhelyezkedő lakást - liftes házban.
Az ingatlan lakóterülete 32, 13 nm.
Vásárolható hozzá egy 13,7 nm-es gépkocsibeálló - nem kötelező -
ára: 8.000.000.-Ft.
A műszaki átadás az első negyedévben várható.
Novemberben műszaki bejárásra van lehetőség.
Remek lokáció, jó közlekedés, modern korszerű lakás.
Kérdéseivel, megtekintéssel kapcsolatban hívjon bizalommal!