Eladó Lakás
Hirdetéskód: 9236463
Fővállalkozó Balla és Balla Kft
Felújításhoz személyi kölcsönt keres? Kalkuláljon itt! →69.00 m2
ALAPTERÜLET3
SZOBASZÁMnincs megadva
ÉPÍTÉSnincs megadva
FŰTÉS- CSOK igénybe vehető nem
- Tetőtér beépíthető nem
- Építés éve 2009
- Klíma nem
- Szigetelt nem
A+++
A++
A+
A
B
C
D
E
F
G
H
I
Az ingatlan leírása
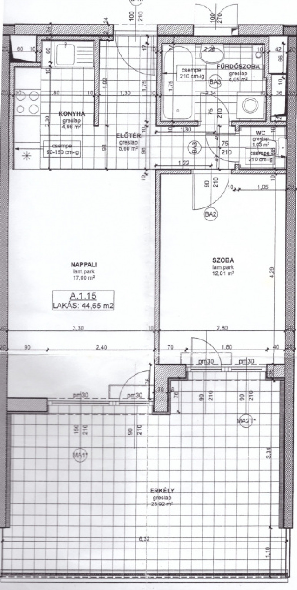
Eladó téglalakás a XIII. kerületben!
Prémium adottságú, különleges élettérrel rendelkező lakás eladó!
Eladásra kínálunk egy 2009-ben épült, tégla szerkezetű, kiváló állapotú társasházban található, modern kialakítású lakást, amely egyedülálló megoldásaival és kiemelkedő műszaki tartalmával emelkedik ki a kínálatból.
Az ingatlan egyik legnagyobb értéke a 24 m²-es, beépített és fűthető erkély, amely teljes értékű lakótérként funkcionál. A gondosan megtervezett kialakításnak köszönhetően az erkély egész évben használható, miközben megőrizte eredeti terasz jellegét is. Alkalmas nappalinak, hálószobának, dolgozószobának, műteremnek vagy akár télikertnek.
Lakás főbb jellemzői:
• 45 m² lakótér + 24 m² erkély
• amerikai konyhás nappali
• két külön nyíló szoba
• fürdőszoba és külön WC
• gépesített konyha (beépített sütő, mosogatógép)
• egyedileg tervezett, beépített bútorok a lakás több pontján
Erkély jellemzői:
• hőszigetelt kialakítás
• prémium kerámia burkolat
• elektromos padlófűtés külön termosztáttal
• nagyméretű, elhúzható tolóajtók pliszé szúnyoghálóval
Műszaki felszereltség:
• Junkers gázkazán + elektromos padlófűtés
• két külön szabályozható termosztát
• kiváló hő- és hangszigetelés
• alacsony fenntartási költségek
• 3×32 A elektromos hálózat (maximális teljesítménybővítés)
• kialakított internet- és HDMI kábelezés
• négyponton záródó, tűzálló biztonsági bejárati ajtó
• előkészített riasztórendszer
A társasház rendezett, karbantartott, lakóközössége stabil. A környezet csendes, zöldre néző, családbarát, mégis kiváló infrastruktúrával ellátott: tömegközlekedés, óvoda, iskola, bölcsőde, bevásárlási lehetőségek, szolgáltatások rövid sétatávolságra elérhetők.
A társasház mélygarázsában található parkolóhely külön megvásárolható.
Az ingatlan sokoldalúan hasznosítható, ideális választás lehet fiatal pároknak, családoknak vagy befektetési céllal vásárlóknak is, köszönhetően az elhelyezkedésnek, a műszaki tartalomnak és az egyedi kialakításnak.
Jöjjön el, nézze meg biztosan beleszeret!
Várom hívását a hét minden napján akár hétvégén is!
Prémium adottságú, különleges élettérrel rendelkező lakás eladó!
Eladásra kínálunk egy 2009-ben épült, tégla szerkezetű, kiváló állapotú társasházban található, modern kialakítású lakást, amely egyedülálló megoldásaival és kiemelkedő műszaki tartalmával emelkedik ki a kínálatból.
Az ingatlan egyik legnagyobb értéke a 24 m²-es, beépített és fűthető erkély, amely teljes értékű lakótérként funkcionál. A gondosan megtervezett kialakításnak köszönhetően az erkély egész évben használható, miközben megőrizte eredeti terasz jellegét is. Alkalmas nappalinak, hálószobának, dolgozószobának, műteremnek vagy akár télikertnek.
Lakás főbb jellemzői:
• 45 m² lakótér + 24 m² erkély
• amerikai konyhás nappali
• két külön nyíló szoba
• fürdőszoba és külön WC
• gépesített konyha (beépített sütő, mosogatógép)
• egyedileg tervezett, beépített bútorok a lakás több pontján
Erkély jellemzői:
• hőszigetelt kialakítás
• prémium kerámia burkolat
• elektromos padlófűtés külön termosztáttal
• nagyméretű, elhúzható tolóajtók pliszé szúnyoghálóval
Műszaki felszereltség:
• Junkers gázkazán + elektromos padlófűtés
• két külön szabályozható termosztát
• kiváló hő- és hangszigetelés
• alacsony fenntartási költségek
• 3×32 A elektromos hálózat (maximális teljesítménybővítés)
• kialakított internet- és HDMI kábelezés
• négyponton záródó, tűzálló biztonsági bejárati ajtó
• előkészített riasztórendszer
A társasház rendezett, karbantartott, lakóközössége stabil. A környezet csendes, zöldre néző, családbarát, mégis kiváló infrastruktúrával ellátott: tömegközlekedés, óvoda, iskola, bölcsőde, bevásárlási lehetőségek, szolgáltatások rövid sétatávolságra elérhetők.
A társasház mélygarázsában található parkolóhely külön megvásárolható.
Az ingatlan sokoldalúan hasznosítható, ideális választás lehet fiatal pároknak, családoknak vagy befektetési céllal vásárlóknak is, köszönhetően az elhelyezkedésnek, a műszaki tartalomnak és az egyedi kialakításnak.
Jöjjön el, nézze meg biztosan beleszeret!
Várom hívását a hét minden napján akár hétvégén is!