Eladó Lakás
Hirdetéskód: 9191706
Duna House Óbuda
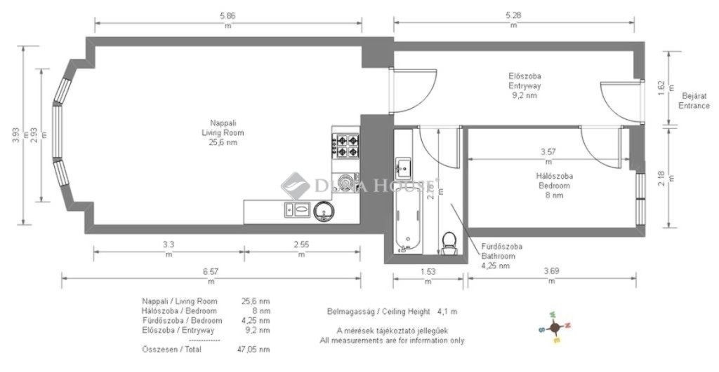
47 m2
ALAPTERÜLET2
SZOBASZÁMnincs megadva
ÉPÍTÉSElektromos
FŰTÉS- CSOK igénybe vehető nem
- Tetőtér beépíthető nem
- Építés éve 1883
- Fűtés Elektromos
- Klíma nem
- Szigetelt nem
A+++
A++
A+
A
B
C
D
E
F
G
H
I
Az ingatlan leírása
Kivételes lehetőség Újlipótváros szívében – a Vígszínház közvetlen szomszédságában!
Eladásra kínálok egy 47 m²-es, nappali + hálószobás, teljeskörűen és magas minőségben felújított lakást Budapest egyik legkedveltebb városrészében, a XIII. kerületben, közvetlenül a Vígszínház mellett. Az ingatlan egy rendezett, kulturált társasház első emeletén helyezkedik el, kiváló adottságokkal és kivételes lokációval.
A lakás teljes felújításon esett át, amely során prémium anyagokat és modern technológiákat használtak fel. A konyha gépesített és beépített, az ablakokra motoros redőnyök kerültek, a szobákban pedig minőségi faparketta teszi otthonossá a tereket. A fűtésről és hűtésről inverteres klíma gondoskodik, a biztonságot pedig egy beépített riasztórendszer garantálja.
A lakás világos és barátságos hangulatú, nagy belmagasságának köszönhetően tágas érzetet kelt. Elhelyezkedése miatt ideális választás lehet saját otthonnak, de befektetésnek is tökéletes – az ingatlan airbnb-re bejáratott, így akár azonnal hozamot termelhet új tulajdonosának.
A környék infrastruktúrája páratlan: néhány perc sétára található a Margitsziget, a Duna-part, valamint számtalan kávézó, étterem és bolt. A Nyugati pályaudvar, a 4-6-os villamos, a Lehel téri metró és több buszjárat is könnyen elérhető, így a közlekedés rendkívül kényelmes.
Ez a lakás igazi gyöngyszem azoknak, akik a belvárosi életstílust szeretnék élvezni, mégis egy igényes, modern otthont keresnek.
Ne maradjon le róla! Hívjon bizalommal, és egyeztessünk időpontot a megtekintésre – garantáltan szerelem lesz első látásra!
Eladásra kínálok egy 47 m²-es, nappali + hálószobás, teljeskörűen és magas minőségben felújított lakást Budapest egyik legkedveltebb városrészében, a XIII. kerületben, közvetlenül a Vígszínház mellett. Az ingatlan egy rendezett, kulturált társasház első emeletén helyezkedik el, kiváló adottságokkal és kivételes lokációval.
A lakás teljes felújításon esett át, amely során prémium anyagokat és modern technológiákat használtak fel. A konyha gépesített és beépített, az ablakokra motoros redőnyök kerültek, a szobákban pedig minőségi faparketta teszi otthonossá a tereket. A fűtésről és hűtésről inverteres klíma gondoskodik, a biztonságot pedig egy beépített riasztórendszer garantálja.
A lakás világos és barátságos hangulatú, nagy belmagasságának köszönhetően tágas érzetet kelt. Elhelyezkedése miatt ideális választás lehet saját otthonnak, de befektetésnek is tökéletes – az ingatlan airbnb-re bejáratott, így akár azonnal hozamot termelhet új tulajdonosának.
A környék infrastruktúrája páratlan: néhány perc sétára található a Margitsziget, a Duna-part, valamint számtalan kávézó, étterem és bolt. A Nyugati pályaudvar, a 4-6-os villamos, a Lehel téri metró és több buszjárat is könnyen elérhető, így a közlekedés rendkívül kényelmes.
Ez a lakás igazi gyöngyszem azoknak, akik a belvárosi életstílust szeretnék élvezni, mégis egy igényes, modern otthont keresnek.
Ne maradjon le róla! Hívjon bizalommal, és egyeztessünk időpontot a megtekintésre – garantáltan szerelem lesz első látásra!