Eladó Lakás
Hirdetéskód: 9179981

Duna House Csillaghegy

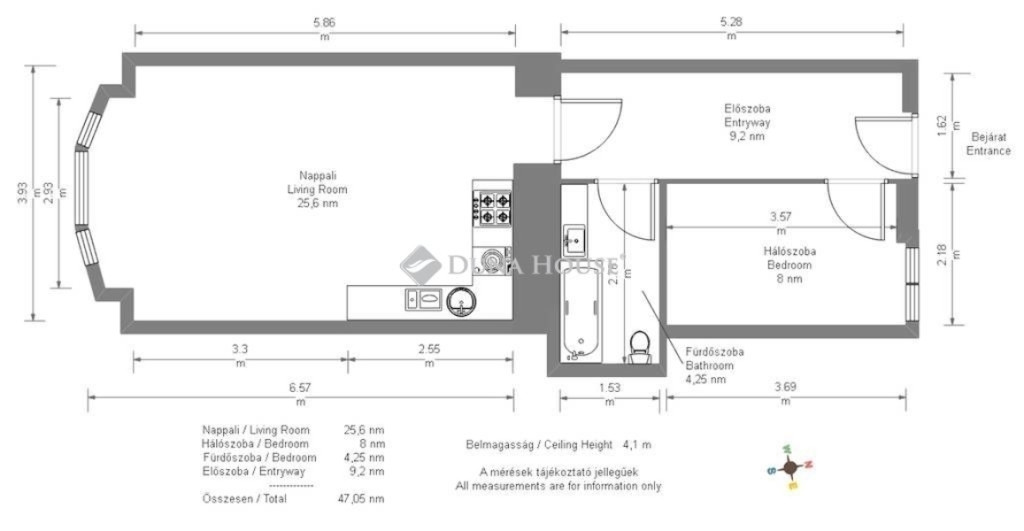
47 m2
ALAPTERÜLET
2
SZOBASZÁM
nincs megadva
ÉPÍTÉS
Elektromos
FŰTÉS
  • CSOK igénybe vehető nem
  • Tetőtér beépíthető nem
  • Építés éve 1883
  • Fűtés Elektromos
  • Klíma nem
  • Szigetelt nem
Energetikai besorolás: Nincs meghatározva
A+++
A++
A+
A
B
C
D
E
F
G
H
I

Az ingatlan leírása

Újlipótvárosban, közvetlenül a Vígszínháznál, airbnb-re bejáratott, teljeskörűen felújított, első emeleti, nappali + hálós lakás eladó!Budapesten, a 13. kerületben, közvetlenül a Vígszínháznál, kulturált társasházban eladó egy első emeleti, teljes körűen, minőségi anyagokkal felújított, nappali + hálószobás, 47 nm-es lakás. A felújítás prémium minőségben készült el, beépítésre került egy gépesített konyhaszekrény, az ablakokra motoros redőnyöket szereltek fel, és minőségi faparketta melegburkolatot fektettek le. A fűtésről/hűtésről egy iverteres hűtő-fűtő klíma gondoskodik és a biztonságot a beépített riasztó biztosítja.

86500000 Ft

Térkép

A hirdető elérhetősége

Duna House Csillaghegy

Cseh Klaudia
+36 20 420