Eladó Lakás
Hirdetéskód: 9266745

Duna House Csillaghegy

Felújításhoz személyi kölcsönt keres? Kalkuláljon itt! →
72.00 m2
ALAPTERÜLET
3
SZOBASZÁM
nincs megadva
ÉPÍTÉS
Távfűtés egyedi méréssel
FŰTÉS
  • CSOK igénybe vehető nem
  • Tetőtér beépíthető nem
  • Építés éve 2021
  • Fűtés Távfűtés egyedi méréssel
  • Klíma nem
  • Szigetelt nem
Energetikai besorolás: Nincs meghatározva
A+++
A++
A+
A
B
C
D
E
F
G
H
I

Az MBH Bank személyi kölcsön ajánlata

Fizetett hirdetés
1 millió Ft
6 évre
20 585 Ft/hó
THM: 14.5%
Részletek →
2 millió Ft
6 évre
41 169 Ft/hó
THM: 14.5%
Részletek →
3 millió Ft
6 évre
61 754 Ft/hó
THM: 14.5%
Részletek →

A tájékoztatás nem teljes körű és nem minősül ajánlattételnek.

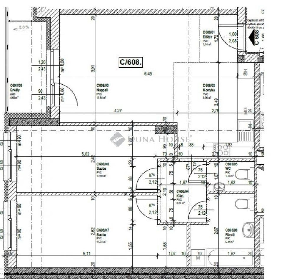
Az ingatlan leírása

Kiváló lokáció, közkedvelt lakópark, modern, fiatalos lakások!Budapesten, a XIII. kerület Angyalföld városrészén, egy 2021-ben épült, modern, liftes lakóparkban eladó egy 69 nm-es, 6. emeleti lakás 5 nm-es erkéllyel.A lakás amerikai konyhás nappalival, étkezővel és 2 hálószobával rendelkezik.A környék kiváló tömegközlekedési lehetőségekkel rendelkezik!A 14-es villamos, helyi autóbusz járatok, illetve akár az M3 metró megállója is csupán perc sétára található, így a belváros is könnyen megközelíthető.A lakáshoz teremgarázsban parkolóhely vásárolható vagy bérelhető.Találja meg nálunk leendő otthonát, aktuális befektetését!

Térkép

Ingatlan adásvétel ügyvédi díja
498 713 Ft
a hirdetésben szereplő ár alapján
  • A vételár 0,45%-a
  • Szerződéscsomag teljeskörű képviselettel
  • Ingyenes tulajdoni lap ellenőrzés
  • Az ÁFA-t már tartalmazza
Érdekel az ajánlat →
A tájékoztatás nem teljes körű és nem minősül ajánlattételnek. Minimum díj: 150 000 Ft, maximum díj: 600 000 Ft. A díj kizárólag lakóingatlan adásvételére vonatkozik.

A hirdető elérhetősége

Duna House Csillaghegy

Halász Györgyné
+36 30 422