Eladó Lakás
Hirdetéskód: 9242820
Kulcs-Pont Ingatlan Kft.
Felújításhoz személyi kölcsönt keres? Kalkuláljon itt! →71.00 m2
ALAPTERÜLET3
SZOBASZÁMnincs megadva
ÉPÍTÉSTávfűtés
FŰTÉS- CSOK igénybe vehető nem
- Tetőtér beépíthető nem
- Építés éve 2021
- Fűtés Távfűtés
- Klíma nem
- Szigetelt nem
A+++
A++
A+
A
B
C
D
E
F
G
H
I
Az ingatlan leírása
Kiváló lokáció, közkedvelt lakópark, modern, fiatalos lakások!
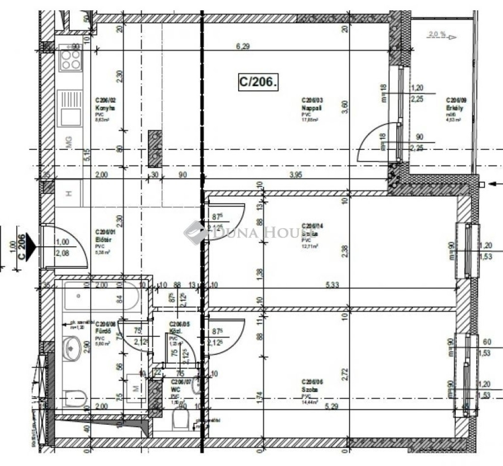
Budapesten, a XIII. kerület Angyalföld városrészén, egy 2021-ben épült, modern, liftes lakóparkban eladó egy 68 nm-es, 2. emeleti lakás 5 nm-es erkéllyel.
A lakás amerikai konyhás nappalival, étkezővel és 2 hálószobával rendelkezik.
A környék kiváló tömegközlekedési lehetőségekkel rendelkezik! A 14-es villamos, helyi autóbusz járatok, illetve akár az M3 metró megállója is csupán perc sétára található, így a belváros is könnyen megközelíthető.
A lakáshoz teremgarázsban parkolóhely vásárolható vagy bérelhető.
Találja meg nálunk leendő otthonát, aktuális befektetését!
Budapesten, a XIII. kerület Angyalföld városrészén, egy 2021-ben épült, modern, liftes lakóparkban eladó egy 68 nm-es, 2. emeleti lakás 5 nm-es erkéllyel.
A lakás amerikai konyhás nappalival, étkezővel és 2 hálószobával rendelkezik.
A környék kiváló tömegközlekedési lehetőségekkel rendelkezik! A 14-es villamos, helyi autóbusz járatok, illetve akár az M3 metró megállója is csupán perc sétára található, így a belváros is könnyen megközelíthető.
A lakáshoz teremgarázsban parkolóhely vásárolható vagy bérelhető.
Találja meg nálunk leendő otthonát, aktuális befektetését!