Eladó Lakás
Hirdetéskód: 9252325
Dunaharaszti, Dózsa György út 45. (OTPIP)
91.00 m2
ALAPTERÜLET4
SZOBASZÁMnincs megadva
ÉPÍTÉSnincs megadva
FŰTÉS- CSOK igénybe vehető nem
- Tetőtér beépíthető nem
- Építés éve 2018
- Klíma nem
- Szigetelt nem
A+++
A++
A+
A
B
C
D
E
F
G
H
I
Az ingatlan leírása
Penthouse életérzés Angyalföldön!
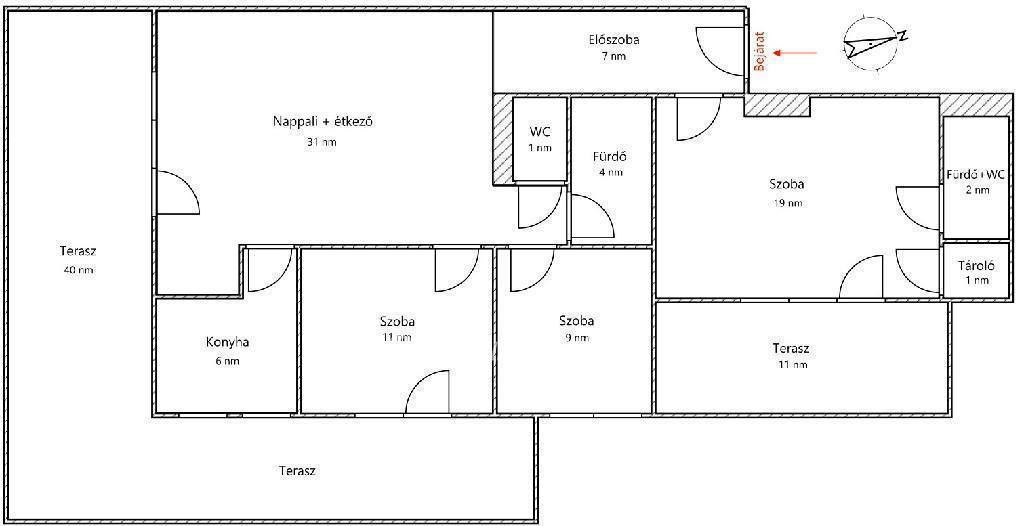
Képzeld el: reggeli kávédat a 40 nm-es teraszon kortyolgatod, miközben a környék, és a Budai hegyek panorámája terül el előtted, a gyerekek pedig biztonságban játszanak a ház saját játszóterén a parkosított udvarban. Ez nem álom, ez lehet a mindennapod ebben a sosem lakott, 91 nm + 51 nm terasszal rendelkező luxuslakásban.
Miért pont ez a lakás? Miért pont most?
Ez a 4 szobás penthouse jellegű otthon pont ilyen. Sosem lakott benne senki, úgyhogy Te lehetsz az első, aki berendezi, aki megtölti élettel ezeket a napfényes tereket.
A tágas terek és az óriási ablakok miatt sosem fogod szűknek érezni a helyet. A padlófűtés télen melegen tartja, a légkondi minden szobában nyáron hűsít. A minőségi márvány díszítések és a beépített konyha már megvan - csak a család receptjeit kell hozzátenni.
A két terasz két különböző hangulatot ad: a nagy a családi összejövetelekhez, a kisebb az intim estékhez. Nincs falszomszéd, nincs zaj felülről - csak a béke és a panoráma.
Befektetésként is briliáns döntés!
Angyalföld éppen most válik Budapest újabb aranyháromszögévé. A környező fejlesztések már most emelik az ingatlanértékeket, és Ön még az emelkedés előtt szállhat be. A lakás elrendezése miatt akár két külön lakóegységgé is alakítható - tökéletes megoldás két generációs családoknak, vagy befektetőknek, akik dupla bérleti díjra számíthatnak.
A két kötelezően megvásárolandó teremgarázsbeálló (6,5 M Ft/db) és a három db tároló (9,7 M Ft) tovább növelik az ingatlan értékét és a befektetés megtérülését.
A közlekedés kiváló: 3 perc sétára van 8 különböző busz- és villamosjárat. Spar, Tesco, Aldi, Lidl, iskolák, orvosi rendelők - minden azonnali elérésű.
Képzeld el: reggeli kávédat a 40 nm-es teraszon kortyolgatod, miközben a környék, és a Budai hegyek panorámája terül el előtted, a gyerekek pedig biztonságban játszanak a ház saját játszóterén a parkosított udvarban. Ez nem álom, ez lehet a mindennapod ebben a sosem lakott, 91 nm + 51 nm terasszal rendelkező luxuslakásban.
Miért pont ez a lakás? Miért pont most?
Ez a 4 szobás penthouse jellegű otthon pont ilyen. Sosem lakott benne senki, úgyhogy Te lehetsz az első, aki berendezi, aki megtölti élettel ezeket a napfényes tereket.
A tágas terek és az óriási ablakok miatt sosem fogod szűknek érezni a helyet. A padlófűtés télen melegen tartja, a légkondi minden szobában nyáron hűsít. A minőségi márvány díszítések és a beépített konyha már megvan - csak a család receptjeit kell hozzátenni.
A két terasz két különböző hangulatot ad: a nagy a családi összejövetelekhez, a kisebb az intim estékhez. Nincs falszomszéd, nincs zaj felülről - csak a béke és a panoráma.
Befektetésként is briliáns döntés!
Angyalföld éppen most válik Budapest újabb aranyháromszögévé. A környező fejlesztések már most emelik az ingatlanértékeket, és Ön még az emelkedés előtt szállhat be. A lakás elrendezése miatt akár két külön lakóegységgé is alakítható - tökéletes megoldás két generációs családoknak, vagy befektetőknek, akik dupla bérleti díjra számíthatnak.
A két kötelezően megvásárolandó teremgarázsbeálló (6,5 M Ft/db) és a három db tároló (9,7 M Ft) tovább növelik az ingatlan értékét és a befektetés megtérülését.
A közlekedés kiváló: 3 perc sétára van 8 különböző busz- és villamosjárat. Spar, Tesco, Aldi, Lidl, iskolák, orvosi rendelők - minden azonnali elérésű.