Eladó Lakás
Hirdetéskód: 9259754
GDN Ingatlanhálózat - Harmónia
Felújításhoz személyi kölcsönt keres? Kalkuláljon itt! →35.00 m2
ALAPTERÜLET2
SZOBASZÁMnincs megadva
ÉPÍTÉSTávfűtés egyedi méréssel
FŰTÉS- CSOK igénybe vehető nem
- Tetőtér beépíthető nem
- Fűtés Távfűtés egyedi méréssel
- Klíma nem
- Szigetelt nem
A+++
A++
A+
A
B
C
D
E
F
G
H
I
Az ingatlan leírása
Beköltözésre kész, berendezett lakás a Párkány utcában
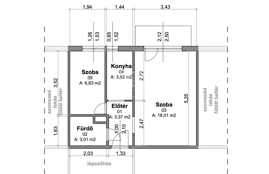
A XIII. kerületben, a Párkány utcában kínálok megvételre egy 2 szobás, ablakos konyhás, klímás lakást, amely kifejezetten jó állapotú, gyakorlatilag beköltözésre előkészített.
Az ingatlan állapota nem (feltétlenül) igényel további ráfordítást: rendezett, karbantartott, a terek jól használhatók. Az ablakos konyha világos, a lakás összhatása egységes és élhető. A teljes bútorzat a vételár részét képezi, így az ingatlan azonnal használható, akár saját célra, akár kiadásra.
Kiadási szempontból kifejezetten jó adottságokkal bír: a lokáció keresett, a lakás mérete és elrendezése könnyen bérbe adható kategória. Nem kell berendezni, nem kell előkészíteni – csak átvenni és használni.
Ez egy olyan lakás, ahol a döntés után nincs teendő. Megtekintés után gyorsan eldől, kinek való.
Érdemes megnézni! ...TOVÁBBI, TÖBBEZRES INGATLAN KÍNÁLAT: - GDN azonosító: 392196
A XIII. kerületben, a Párkány utcában kínálok megvételre egy 2 szobás, ablakos konyhás, klímás lakást, amely kifejezetten jó állapotú, gyakorlatilag beköltözésre előkészített.
Az ingatlan állapota nem (feltétlenül) igényel további ráfordítást: rendezett, karbantartott, a terek jól használhatók. Az ablakos konyha világos, a lakás összhatása egységes és élhető. A teljes bútorzat a vételár részét képezi, így az ingatlan azonnal használható, akár saját célra, akár kiadásra.
Kiadási szempontból kifejezetten jó adottságokkal bír: a lokáció keresett, a lakás mérete és elrendezése könnyen bérbe adható kategória. Nem kell berendezni, nem kell előkészíteni – csak átvenni és használni.
Ez egy olyan lakás, ahol a döntés után nincs teendő. Megtekintés után gyorsan eldől, kinek való.
Érdemes megnézni! ...TOVÁBBI, TÖBBEZRES INGATLAN KÍNÁLAT: - GDN azonosító: 392196