Eladó Lakás
Hirdetéskód: 9277135
GDN Ingatlanhálózat - AllStars
Felújításhoz személyi kölcsönt keres? Kalkuláljon itt! →41.00 m2
ALAPTERÜLET2
SZOBASZÁMnincs megadva
ÉPÍTÉSnincs megadva
FŰTÉS- CSOK igénybe vehető nem
- Tetőtér beépíthető nem
- Klíma nem
- Szigetelt nem
A+++
A++
A+
A
B
C
D
E
F
G
H
I
Az ingatlan leírása
ÚJ ÉPÍTÉSŰ INGATLANOK 2027 KÖLTÖZÉSSEL!
Angyalföld:
Angyalföld Budapest XIII. kerületének legnagyobb városrésze, amely az egykori ipari zónából mára modern lakó- és irodanegyeddé alakult át. Hagyományos ipari zónák helyén ma már irodaházak, kereskedelmi egységek és a Duna-parton luxuslakások találhatók.
Az épület tettérbeépítése során törekedtünk olyan lakások kialakítására, ami a mai lakásigényeknek felel
meg, mint amerikai konyhás nappali és külön hálószoba. Változatos lakásokat alakítottunk ki úgy
méretükben, mint elrendezésükben.
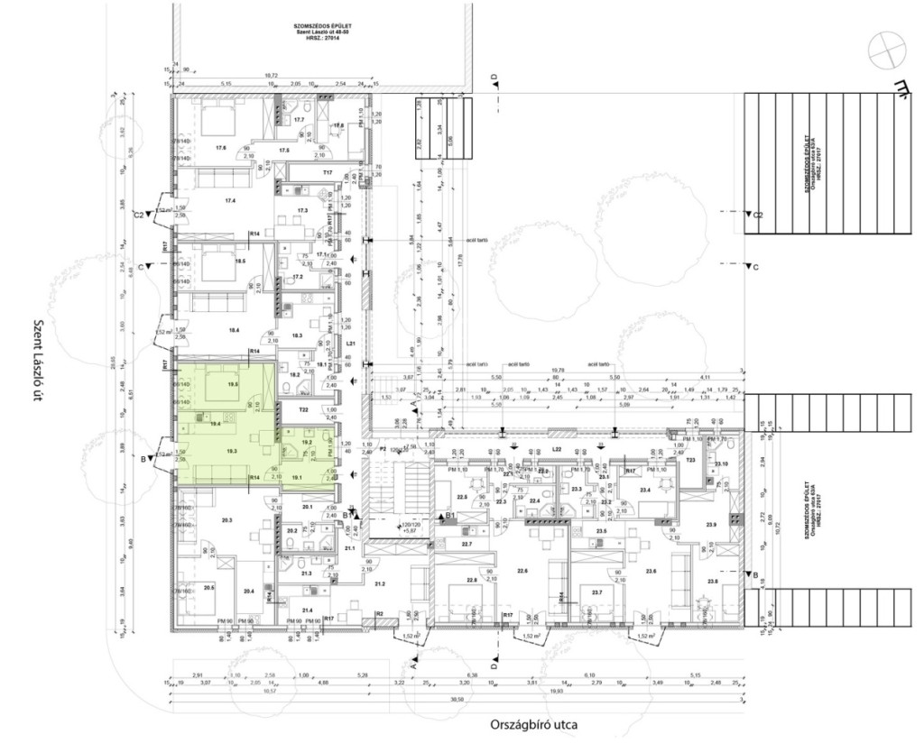
19. lakás.
Előtér: 5.14 nm.
Fürdőszoba: 4.77 nm.
Nappali étkező: 17.52 nm.
Konyha:4.48
Hálószoba: 12.91 nm.
Erkély: 1.52 nm.
Fizetés: készültségi fokozathoz kötött fizetési ütemezés.
A további kérdésekkel és a megtekintéssel kapcsolatban, kérem keressen a megadott mobil számon. ...TOVÁBBI, TÖBBEZRES INGATLAN KÍNÁLAT: - GDN azonosító: 392821
Angyalföld:
Angyalföld Budapest XIII. kerületének legnagyobb városrésze, amely az egykori ipari zónából mára modern lakó- és irodanegyeddé alakult át. Hagyományos ipari zónák helyén ma már irodaházak, kereskedelmi egységek és a Duna-parton luxuslakások találhatók.
Az épület tettérbeépítése során törekedtünk olyan lakások kialakítására, ami a mai lakásigényeknek felel
meg, mint amerikai konyhás nappali és külön hálószoba. Változatos lakásokat alakítottunk ki úgy
méretükben, mint elrendezésükben.
19. lakás.
Előtér: 5.14 nm.
Fürdőszoba: 4.77 nm.
Nappali étkező: 17.52 nm.
Konyha:4.48
Hálószoba: 12.91 nm.
Erkély: 1.52 nm.
Fizetés: készültségi fokozathoz kötött fizetési ütemezés.
A további kérdésekkel és a megtekintéssel kapcsolatban, kérem keressen a megadott mobil számon. ...TOVÁBBI, TÖBBEZRES INGATLAN KÍNÁLAT: - GDN azonosító: 392821