Eladó Lakás
Hirdetéskód: 9311204
OTP Ingatlanpont - Takács Zsuzsanna
Felújításhoz személyi kölcsönt keres? Kalkuláljon itt! →87.00 m2
ALAPTERÜLET4
SZOBASZÁMnincs megadva
ÉPÍTÉSHázközponti
FŰTÉS- CSOK igénybe vehető nem
- Tetőtér beépíthető nem
- Építés éve 2020
- Fűtés Házközponti
- Klíma nem
- Szigetelt nem
A+++
A++
A+
A
B
C
D
E
F
G
H
I
Az ingatlan leírása
Eladó világos, 4 szobás, egyedileg kialakított lakás a Marina parton
Budapest 13. kerületének egyik legkedveltebb részén, a Marina parton kínálunk eladásra egy 2020-ban épült, modern társasház 5. emeletén található, 87 nm-es, 4 szobás, napfényes lakást.
A lakás egyedi belső kialakítású, modern stílusban berendezett, igényesen karbantartott, jelenleg rövid távú kiadásra használják. Tisztaságáról és rendezettségéről rendszeres takarítás gondoskodik. Augusztus második felétől költözhető, de a megvásárlása már most lehetséges.
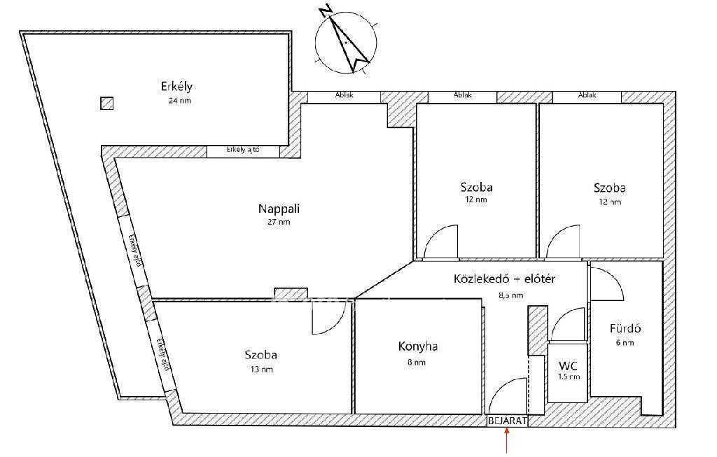
A lakás elrendezése rendkívül praktikus: egy tágas, világos nappali, három külön nyíló hálószoba, modern fürdőszoba sarokkáddal, valamint egy beépített gardróbos előtér várja az új tulajdonost. A plafon mentén végigfutó hangulatvilágítás, valamint az óriási ablakok természetes fényt biztosítanak egész nap, anélkül hogy túlmelegedne a lakás.
A 24 nm-es, több ponton megközelíthető erkély ideális pihenéshez vagy baráti összejövetelekhez, északkeleti-nyugati tájolásának köszönhetően nyáron is kellemesen használható.
A lakás tehermentes... Gépjárművel rendelkezők számára külön megvásárolható beállóhely(ek) is elérhetők - akár több autó számára is, ezek ára nem része az ingatlan árának. A társasház lifttel felszerelt, modern és rendezett.
Elhelyezkedés és környezet:
A környék kiváló infrastruktúrával rendelkezik: a Duna Plaza, Váci úti irodaházak, iskolák, óvodák, gyógyszertárak, rendelők, üzletek és éttermek mind perceken belül elérhetők. Kiváló a közlekedés: metró (Gyöngyösi út), 105-ös, 115-ös busz, éjszakai járatok mind a közelben állnak meg.
A Duna-part mindössze két perc sétára található, parkosított környezetben. Bár a környéken még zajlanak fejlesztések, a városrész gyors ütemben alakul át egy modern, magas színvonalú lakókörnyezetté, ami hosszú távon is stabil értéknövekedést jelent.
Ideális választás saját célra, de befektetésnek is kiváló - gyors megtérülési potenciállal.
Ha kérdése van vagy megtekintené az ingatlant, kérem, vegye fel velem a kapcsolatot.
M306258
Az OTP Ingatlanpont, mint egyetlen közvetlen banki hátterű ingatlanközvetítő társaság teljes körű ügyintézéssel áll az eladók és a vevők rendelkezésére! A kínálatunkból választott ingatlan finanszírozásához minősített fogyasztóbarát, piaci és kedvezményes hitel- és lízingkonstrukciókat kínálunk (lakásvásárlási hitel, CSOK plusz, szabad felhasználású hitel, babaváró hitel, céges hitelek, pályázatok, amennyiben az ügyfél és az ingatlan megfelel a feltételeknek). Az adásvételi szerződés megkötéséhez igény szerint megbízható ügyvédi közreműködést biztosítunk, és segítséget nyújtunk az adásvételhez kapcsolódó egyéb ügyek intézéséhez.
Ha az új ingatlana megvásárlásához a jelenlegi ingatlanát el kell adnia, abban is szívesen segítünk.
Budapest 13. kerületének egyik legkedveltebb részén, a Marina parton kínálunk eladásra egy 2020-ban épült, modern társasház 5. emeletén található, 87 nm-es, 4 szobás, napfényes lakást.
A lakás egyedi belső kialakítású, modern stílusban berendezett, igényesen karbantartott, jelenleg rövid távú kiadásra használják. Tisztaságáról és rendezettségéről rendszeres takarítás gondoskodik. Augusztus második felétől költözhető, de a megvásárlása már most lehetséges.
A lakás elrendezése rendkívül praktikus: egy tágas, világos nappali, három külön nyíló hálószoba, modern fürdőszoba sarokkáddal, valamint egy beépített gardróbos előtér várja az új tulajdonost. A plafon mentén végigfutó hangulatvilágítás, valamint az óriási ablakok természetes fényt biztosítanak egész nap, anélkül hogy túlmelegedne a lakás.
A 24 nm-es, több ponton megközelíthető erkély ideális pihenéshez vagy baráti összejövetelekhez, északkeleti-nyugati tájolásának köszönhetően nyáron is kellemesen használható.
A lakás tehermentes... Gépjárművel rendelkezők számára külön megvásárolható beállóhely(ek) is elérhetők - akár több autó számára is, ezek ára nem része az ingatlan árának. A társasház lifttel felszerelt, modern és rendezett.
Elhelyezkedés és környezet:
A környék kiváló infrastruktúrával rendelkezik: a Duna Plaza, Váci úti irodaházak, iskolák, óvodák, gyógyszertárak, rendelők, üzletek és éttermek mind perceken belül elérhetők. Kiváló a közlekedés: metró (Gyöngyösi út), 105-ös, 115-ös busz, éjszakai járatok mind a közelben állnak meg.
A Duna-part mindössze két perc sétára található, parkosított környezetben. Bár a környéken még zajlanak fejlesztések, a városrész gyors ütemben alakul át egy modern, magas színvonalú lakókörnyezetté, ami hosszú távon is stabil értéknövekedést jelent.
Ideális választás saját célra, de befektetésnek is kiváló - gyors megtérülési potenciállal.
Ha kérdése van vagy megtekintené az ingatlant, kérem, vegye fel velem a kapcsolatot.
M306258
Az OTP Ingatlanpont, mint egyetlen közvetlen banki hátterű ingatlanközvetítő társaság teljes körű ügyintézéssel áll az eladók és a vevők rendelkezésére! A kínálatunkból választott ingatlan finanszírozásához minősített fogyasztóbarát, piaci és kedvezményes hitel- és lízingkonstrukciókat kínálunk (lakásvásárlási hitel, CSOK plusz, szabad felhasználású hitel, babaváró hitel, céges hitelek, pályázatok, amennyiben az ügyfél és az ingatlan megfelel a feltételeknek). Az adásvételi szerződés megkötéséhez igény szerint megbízható ügyvédi közreműködést biztosítunk, és segítséget nyújtunk az adásvételhez kapcsolódó egyéb ügyek intézéséhez.
Ha az új ingatlana megvásárlásához a jelenlegi ingatlanát el kell adnia, abban is szívesen segítünk.