Eladó Lakás
Hirdetéskód: 9303642
OTP Ingatlanpont - Budapest IX. ker., Üllői út 21.
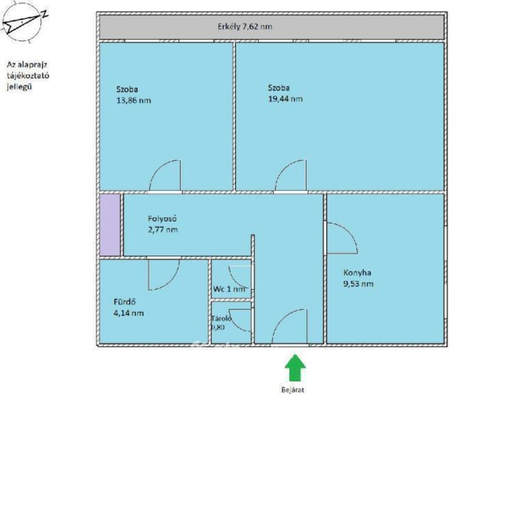
Felújításhoz személyi kölcsönt keres? Kalkuláljon itt! →60.00 m2
ALAPTERÜLET2
SZOBASZÁMnincs megadva
ÉPÍTÉSnincs megadva
FŰTÉS- CSOK igénybe vehető nem
- Tetőtér beépíthető nem
- Építés éve 1953
- Klíma nem
- Szigetelt nem
A+++
A++
A+
A
B
C
D
E
F
G
H
I
Az ingatlan leírása
ELADÓ XIII. KERÜLETI LAKÁS - NAGY ERKÉLY, ZÁRT LAKÓPARK, PARKOLÓ!!!
Ha már unod a kompromisszumokat és szeretnél egy zárt, biztonságos lakóparkban élni, rád vár ez a 60 nm-es világos, frissen festett, azonnal költözhető lakás.
Gyalog és autóval is kényelmes a bejutás, a bejáratot elektromos kapu őrzi.
Miért fogod imádni?
- 60 nm jelenleg két szobás, de könnyes három szobássá alakítható
- Óriási erkély- reggeli kávé, baráti fröccsözés
- Vadiúj sarokkád- hogy a fürdőszoba wellness legyen
- Műanyag nyílászárók, nagy ablakok- jó hőszigetelés
- Eredeti fa parketta, frissen felújítva - karakter és elegancia egyben
- 2019-ben cserélt kondenzációs gázkazán - új, modern és takarékos
- Zárt saját tároló - bicikli, bőrönd, karácsonyi díszek
- Felszíni kocsibeálló - nem kell többé parkolóhelyet vadászni, ÉS IGEN, BENNE VAN AZ ÁRBAN!!!!
- Tehermentes, 1/1 tulajdon, üres, azonnal költözhető
Várom hívását a hét minden napján 9-20 h között, jöjjön és nézzük meg együtt a leendő otthonát.
Ügyfeleink részére teljes banki és jogi háttérrel állunk rendelkezésre.
Ha már unod a kompromisszumokat és szeretnél egy zárt, biztonságos lakóparkban élni, rád vár ez a 60 nm-es világos, frissen festett, azonnal költözhető lakás.
Gyalog és autóval is kényelmes a bejutás, a bejáratot elektromos kapu őrzi.
Miért fogod imádni?
- 60 nm jelenleg két szobás, de könnyes három szobássá alakítható
- Óriási erkély- reggeli kávé, baráti fröccsözés
- Vadiúj sarokkád- hogy a fürdőszoba wellness legyen
- Műanyag nyílászárók, nagy ablakok- jó hőszigetelés
- Eredeti fa parketta, frissen felújítva - karakter és elegancia egyben
- 2019-ben cserélt kondenzációs gázkazán - új, modern és takarékos
- Zárt saját tároló - bicikli, bőrönd, karácsonyi díszek
- Felszíni kocsibeálló - nem kell többé parkolóhelyet vadászni, ÉS IGEN, BENNE VAN AZ ÁRBAN!!!!
- Tehermentes, 1/1 tulajdon, üres, azonnal költözhető
Várom hívását a hét minden napján 9-20 h között, jöjjön és nézzük meg együtt a leendő otthonát.
Ügyfeleink részére teljes banki és jogi háttérrel állunk rendelkezésre.