Eladó Lakás
Hirdetéskód: 9256519

ingatlanhirdeto

Felújításhoz személyi kölcsönt keres? Kalkuláljon itt! →
0.00 m2
ALAPTERÜLET
3
SZOBASZÁM
nincs megadva
ÉPÍTÉS
nincs megadva
FŰTÉS
  • CSOK igénybe vehető nem
  • Belső szintek 7
  • Tetőtér beépíthető nem
  • Építés éve 2027
  • Klíma nem
  • Szigetelt nem
Energetikai besorolás: Nincs meghatározva
A+++
A++
A+
A
B
C
D
E
F
G
H
I

Az MBH Bank személyi kölcsön ajánlata

Fizetett hirdetés
1 millió Ft
6 évre
20 585 Ft/hó
THM: 14.5%
Részletek →
2 millió Ft
6 évre
41 169 Ft/hó
THM: 14.5%
Részletek →
3 millió Ft
6 évre
61 754 Ft/hó
THM: 14.5%
Részletek →

A tájékoztatás nem teljes körű és nem minősül ajánlattételnek.

Az ingatlan leírása


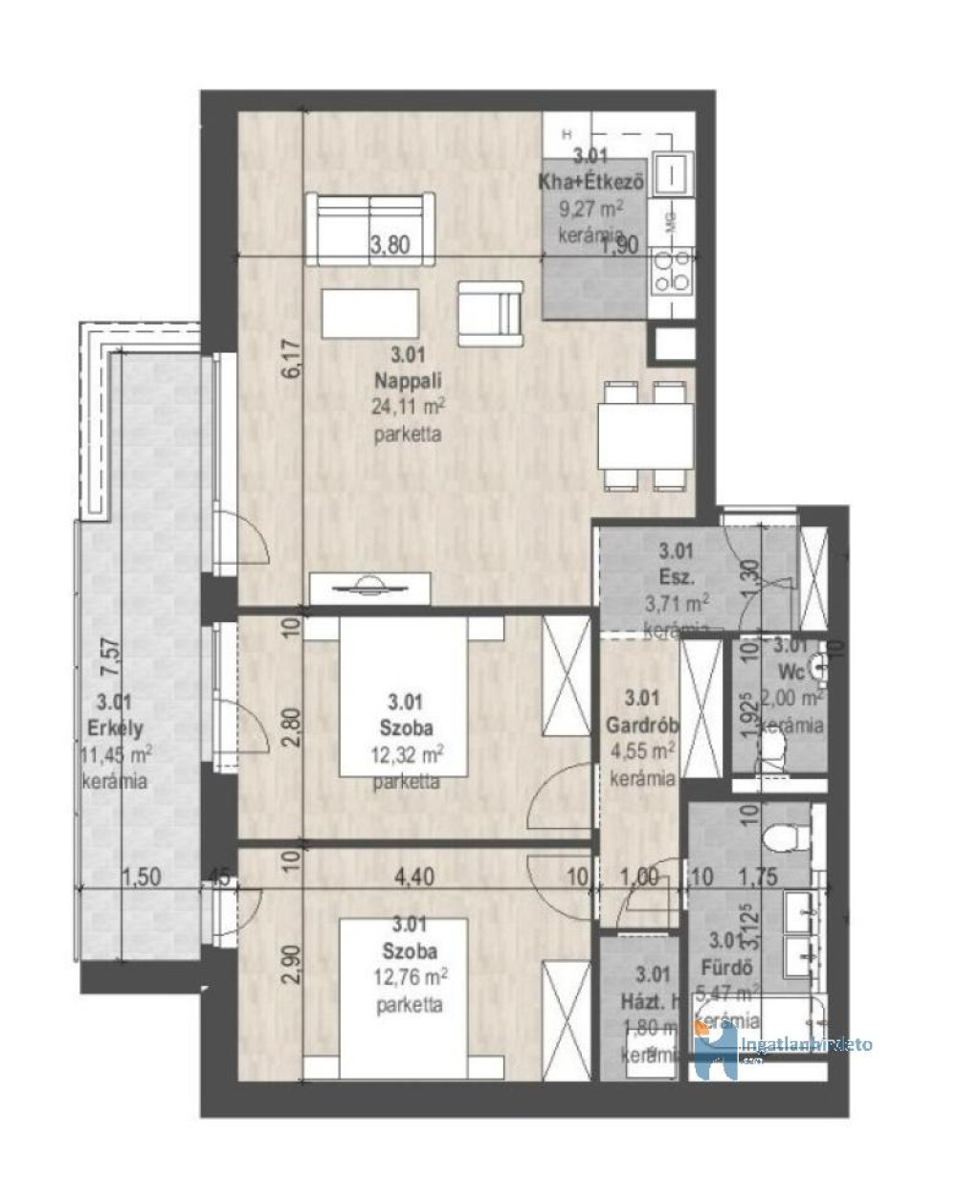
Elhelyezkedése: Társasház Emeleti elhelyezkedés: Emeleten Emelet száma: 3 Épület emeleteinek száma: 7 Tájolása: Déli tájolású Állapota: új Komfort besorolása: összkomfortos Építési éve: 2027 Alapterülete: 76 m2 Szobák száma: 3szoba Közművek: Víz, Villany, Csatorna Fűtés típusa: Padlófűtés, Fan-coil, Hőszivattyú Homlokzat állapot: új Építési mód: Tégla Parkolási lehetőség: Garázsban Kilátás: Udvari kilátás Napelem: Nincs Jellemzői: Alacsony rezsi, Csendes környék, Jó közlekedés Energetikai besorolás: A+ Egyéb jellemzők: Erkély, Lift Tv, Internet: Kábeltévé, Internet Terhelések: Tehermentes ingatlan Eladásra vonatkozó információk: Kizárólag magánszemélyek jelentkezését várjuk
ÚJ TÁRSASHÁZ ÉRTÉKESÍTÉSE KEZDŐDÖTT MEG! VÁLASSZA KI MOST A LEGJOBB ELHELYEZKEDÉSŰ LAKÁST!
VÁSÁROLJON KOCKÁZAT NÉLKÜL, REFERENCIÁKKAL rendelkező beruházótól!

A XIII. kerületben, a Béke tér közelében épül egy 54 lakásos társasház. Változatos alaprajz, az 1. emeleten privát kertkapcsolat, az emeleten erkélyek. A lakások 2, 3 és 4 szobásak.

A lakások főbb jellemzői:

- MINŐSÉGI ÉPÍTŐANYAGOK
- MINŐSÉGI BURKOLATOK
- fűtése: levegős hőszivattyús rendszer (padlófűtés, Fan-coil hűtés)
- fürdőszobában: elektromos törölközőszárítós radiátor előkészítés
- riasztó előkészítés kiépítve - nyitásérzékelő
- elektromos alumínium redőny távirányítóval
- 6 légkamrás, 3 rétegű hőszigetelő üvegezésű ablakok
- több ponton záródó biztonsági, hőszigetelt bejárati ajtó fémtokkal
- 32A energia
- kiváló közlekedés- és infrastruktúra
- csendes utca
- világos lakások
- A hőszigetelési, akusztikai, ill. energetikai szempontok kiemelt kezeléssel kerülnek megvalósításra.
- ÖNÁLLÓ MÉRÉSI lehetőség
- TEREMGARÁZS vásárolható
- TÁROLÓ vásárolható

Bizonyos készültségi fokig a beltéri anyagok választhatók (hidegburkolat, laminált padló, beltéri ajtó).

Birtokba adás/költözés: 2027. augusztus 30.

Közlekedés: kiváló (villamosok /1, 14/, buszok /20E, 30, 30A, 32, 105, 110, 210, 230/, éjszakai járatok /901, 918/, a 3-as metró is pár percen belül elérhető).

További információért és a szabad lakások miatt, kérem, hívjon bizalommal!

AZ IDŐ PÉNZ! SPÓROLJON VELÜNK! NÁLUNK MINDENT EGY HELYEN INTÉZHET!
- ingyenes hitelügyintézés (bankfüggetlen, CSOK, START hitel stb.)
- jogi háttér – projektügyvéd van (0,5%+Áfa)

Térkép

Ingatlan adásvétel ügyvédi díja
600 000 Ft
a hirdetésben szereplő ár alapján
  • A vételár 0,45%-a
  • Szerződéscsomag teljeskörű képviselettel
  • Ingyenes tulajdoni lap ellenőrzés
  • Az ÁFA-t már tartalmazza
Érdekel az ajánlat →
A tájékoztatás nem teljes körű és nem minősül ajánlattételnek. Minimum díj: 150 000 Ft, maximum díj: 600 000 Ft. A díj kizárólag lakóingatlan adásvételére vonatkozik.

A hirdető elérhetősége

ingatlanhirdeto

Mirkó Ágnes
+36 30 894