Eladó Lakás
Hirdetéskód: 9274983

Ballagó Antal

Felújításhoz személyi kölcsönt keres? Kalkuláljon itt! →
86.00 m2
ALAPTERÜLET
3
SZOBASZÁM
Tégla
ÉPÍTÉS
Házközponti fűtés egyedi méréssel
FŰTÉS
  • Belső szintek 1
  • Kilátás Udvari
  • Tájolás Délkelet
  • Ingatlan komfort Összkomfortos
  • Építés éve 2026
  • Fűtés Házközponti fűtés egyedi méréssel
  • Építőanyag Tégla
  • Erkély, terasz Erkély 20.00m2
  • Szigetelt igen
  • Bútorozott nem
Energetikai besorolás: Nincs meghatározva
A+++
A++
A+
A
B
C
D
E
F
G
H
I

Az MBH Bank személyi kölcsön ajánlata

Fizetett hirdetés
1 millió Ft
6 évre
20 585 Ft/hó
THM: 14.5%
Részletek →
2 millió Ft
6 évre
41 169 Ft/hó
THM: 14.5%
Részletek →
3 millió Ft
6 évre
61 754 Ft/hó
THM: 14.5%
Részletek →

A tájékoztatás nem teljes körű és nem minősül ajánlattételnek.

Az ingatlan leírása

EXKLUZÍV, ÚJ ÉPÍTÉSŰ, NAPPALI + 2 HÁLÓSZOBÁS, HATALMAS TERASZOS LAKÁS ELADÓ A XIII. KERÜLETBEN, A KARTÁCS UTCÁBAN


Budapest XIII. kerületének egyik legdinamikusabban fejlődő részén, a Kartács utca 21. szám alatt kínálunk megvételre egy modern kialakítású, nappali + 2 hálószobás, kiváló elrendezésű lakást, amelyhez egy rendkívül tágas, több mint 20 m²-es terasz is tartozik.


Ez az ingatlan ideális választás saját otthonnak és befektetésnek egyaránt, köszönhetően a kiváló lokációnak, az átgondolt alaprajznak és a magas szintű műszaki tartalomnak.


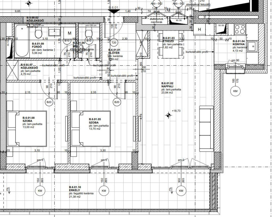
A LAKÁS FŐBB PARAMÉTEREI


• Lakás alapterülete: 75,95 m²
• Terasz: 20,37 m²
• Elrendezés: nappali + 2 külön nyíló hálószoba
• Külön fürdőszoba és WC
• Tágas, világos nappali étkezővel
• Funkcionális, különálló konyha
• Praktikus előszoba és közlekedő
• Modern, jól bútorozható terek


A lakás egyik legnagyobb értéke a nagyméretű, jól használható terasz, amely kiváló helyszín lehet pihenésre, étkezésre vagy akár egy hangulatos kültéri lounge kialakítására.


ÁTGONDOLT ELRENDEZÉS, MAXIMÁLIS KOMFORT


Az ingatlan elrendezése ideális mind családok, mind párok számára:


• világos, tágas nappali közvetlen teraszkapcsolattal
• két külön nyíló hálószoba, amelyek ideálisak hálónak, dolgozószobának vagy gyerekszobának
• külön fürdő és WC a kényelmes mindennapokért
• jól szeparált privát és közösségi terek


A lakás elrendezése kiválóan alkalmas hosszú távú lakhatásra és bérbeadásra egyaránt.


MODERN, ÚJ ÉPÍTÉSŰ KÖRNYEZET


Az ingatlan egy korszerű, modern társasházban található, amely megfelel a mai energetikai és műszaki elvárásoknak.


• modern építészeti megoldások
• energiatakarékos kialakítás
• értékálló befektetés
• alacsony fenntartási költségek


KIVÁLÓ LOKÁCIÓ - XIII. KERÜLET, KARTÁCS UTCA


A környék Budapest egyik legnépszerűbb városrésze, kiváló infrastruktúrával és közlekedéssel.


A közelben megtalálható:


• busz- és villamosjáratok
• bevásárlási lehetőségek, üzletek
• éttermek, kávézók
• óvodák, iskolák
• parkok, zöldterületek
• irodaházak és üzleti központok


A belváros gyorsan és könnyen elérhető tömegközlekedéssel és autóval egyaránt.


IDEÁLIS VÁLASZTÁS


Ez a lakás tökéletes választás:


• saját otthonnak
• befektetésnek
• hosszú távú kiadásra
• családoknak
• pároknak
• home office-hoz


Az új építésű ingatlanok értékállósága és a XIII. kerület folyamatos fejlődése kiemelkedő befektetési potenciált biztosít.


ÖSSZEFOGLALÓ


• kiváló lokáció
• modern, új építésű társasház
• nappali + 2 hálószoba
• több mint 20 m² terasz
• világos, jól bútorozható terek
• kiváló befektetési lehetőség

Térkép

Ingatlan adásvétel ügyvédi díja
600 000 Ft
a hirdetésben szereplő ár alapján
  • A vételár 0,45%-a
  • Szerződéscsomag teljeskörű képviselettel
  • Ingyenes tulajdoni lap ellenőrzés
  • Az ÁFA-t már tartalmazza
Érdekel az ajánlat →
A tájékoztatás nem teljes körű és nem minősül ajánlattételnek. Minimum díj: 150 000 Ft, maximum díj: 600 000 Ft. A díj kizárólag lakóingatlan adásvételére vonatkozik.

A hirdető elérhetősége

Filadelfia Kft

Ballagó Antal
+36 30 403