Eladó Lakás
Hirdetéskód: 9255417
OTP Ingatlanpont - Budapest IX. ker., Üllői út 21.
116.00 m2
ALAPTERÜLET3
SZOBASZÁMnincs megadva
ÉPÍTÉSnincs megadva
FŰTÉS- CSOK igénybe vehető nem
- Tetőtér beépíthető nem
- Építés éve 1900
- Klíma nem
- Szigetelt nem
A+++
A++
A+
A
B
C
D
E
F
G
H
I
Az ingatlan leírása
Budapest szívében, mégis csendes utcában eladó egy 116 nm-es, világos, jó állapotú polgári lakás kivételes elhelyezkedéssel és átalakítási lehetőségekkel!
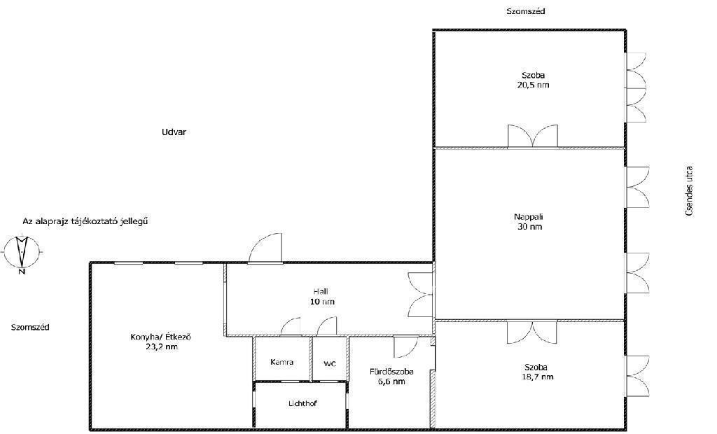
Budapest központjában, a Westend City Center és a Nyugati pályaudvar közvetlen szomszédságában, ugyanakkor egy kellemesen csendes mellékutcában kínáljuk megvételre ezt a tágas, napfényes, 3 + 1 félszobás polgári lakást. Jelenleg 3 szoba + nagy, étkezővel egybenyitott konyha elrendezésű, jó állapotú ingatlan.
A lakás igazi ritkaság a piacon: méretéből adódóan könnyedén 2, akár 3 különálló lakásra is osztható, és a kialakítás lehetővé teszi egy új, külön bejárat megnyitását is ez komoly értéknövelő és befektetési lehetőség. SzMSz nem tiltja a rövid távú lakáskiadást se.
Műszaki háttér és állapot: a lakásban és a társasházban megtörtént a teljes cső- és elektromos hálózat cseréje; folyamatosan karbantartott, kulturált ház; a tető felújítása nemrég lezárult; lift jelenleg nincs; a lakáshoz saját, száraz pincei tároló tartozik
A lakás 1/1 tulajdonosé, per- és tehermentes, néhány hónapon belül rugalmasan költözhető.
A különleges elhelyezkedés és a nagy alapterület miatt tökéletes választás kiadásra, befektetésnek vagy annak a családnak, aki a belváros pezsgése mellett szeretné élvezni egy klasszikus polgári otthon eleganciáját és a mellékutca nyugalmát.
A környéken az ehhez hasonló, nagy alapterületű polgári lakások értéke folyamatosan emelkedik, így hosszú távon is biztos befektetést jelent.
Budapest központjában, a Westend City Center és a Nyugati pályaudvar közvetlen szomszédságában, ugyanakkor egy kellemesen csendes mellékutcában kínáljuk megvételre ezt a tágas, napfényes, 3 + 1 félszobás polgári lakást. Jelenleg 3 szoba + nagy, étkezővel egybenyitott konyha elrendezésű, jó állapotú ingatlan.
A lakás igazi ritkaság a piacon: méretéből adódóan könnyedén 2, akár 3 különálló lakásra is osztható, és a kialakítás lehetővé teszi egy új, külön bejárat megnyitását is ez komoly értéknövelő és befektetési lehetőség. SzMSz nem tiltja a rövid távú lakáskiadást se.
Műszaki háttér és állapot: a lakásban és a társasházban megtörtént a teljes cső- és elektromos hálózat cseréje; folyamatosan karbantartott, kulturált ház; a tető felújítása nemrég lezárult; lift jelenleg nincs; a lakáshoz saját, száraz pincei tároló tartozik
A lakás 1/1 tulajdonosé, per- és tehermentes, néhány hónapon belül rugalmasan költözhető.
A különleges elhelyezkedés és a nagy alapterület miatt tökéletes választás kiadásra, befektetésnek vagy annak a családnak, aki a belváros pezsgése mellett szeretné élvezni egy klasszikus polgári otthon eleganciáját és a mellékutca nyugalmát.
A környéken az ehhez hasonló, nagy alapterületű polgári lakások értéke folyamatosan emelkedik, így hosszú távon is biztos befektetést jelent.