Eladó Lakás
Hirdetéskód: 9320857
Fővállalkozó Balla és Balla Kft
Felújításhoz személyi kölcsönt keres? Kalkuláljon itt! →77.00 m2
ALAPTERÜLET3
SZOBASZÁMnincs megadva
ÉPÍTÉSHázközponti
FŰTÉS- CSOK igénybe vehető nem
- Tetőtér beépíthető nem
- Építés éve 2021
- Fűtés Házközponti
- Klíma nem
- Szigetelt nem
A+++
A++
A+
A
B
C
D
E
F
G
H
I
Az ingatlan leírása
• NAPPALI + 2 SZOBA + ERKÉLY • 2021-BEN ÉPÜLT • MODERN DIZÁJN ÉS TECHNOLÓGIA •
• 3%-os OTTHON START igényelhető! •
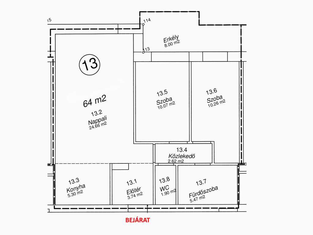
Kiváló közlekedésnél, közel a város központjához, Angyalföldön eladó 73 nm + 8 nm-es, erkélyes, nappali + 2 db hálószobás lakás, ÚJSZERŰ, liftes, 6 emeletes épülettömbben.
• Az épületben TÖBB LAKÁS ÁLL RENDELKEZÉSRE különböző méretben és eladási áron •
A lakás berendezett, gépesített. A vételár tartozéka: klíma és beépített bútorok.
A gépek, bútorok ára: 3,5 millió Ft.
Lakás:
- előszoba
- fürdőszoba – zuhanyzóval (szellőzővel)
- vécé (szellőzővel)
- gépesített konyha (mosogatógép, hűtőszekrény, főzőlap, szagelszívó, sütő, mosógép)
- 2 hálószoba
- amerikai konyhás nappali (klímával)
- erkély (8 nm)
A lakás fekvésének és a nagy ablakainak köszönhetően világos, napfényes.
Műszaki tartalom:
- kétrétegű hő- és hangszigetelt nyílászárók
- biztonsági ajtó, minőségi beltéri ajtók, bútorok
- magas minőségű csaptelepek, szaniterek
- LED-lámpák, házközponti fűtés egyedi mérővel
- klíma, riasztó, internet
Parkolás:
- mélygarázsbeálló bérelhető
- a teremgarázsban parkolóhely vásárolható
Rezsi:
- a lakás fenntartása, havi költsége kedvező, a rezsi egyedi mérőórákkal mért egyéni fogyasztás után fizetendő (fűtés, víz, villany)
Infrastruktúra:
- busz, villamos, metró (M3), éttermek, boltok pár perc sétára
Amennyiben felkeltette érdeklődését, kérem, hívjon, akár hétvégén is.
• ASZÓD KÖZPONTJÁBAN • NAGY HÁZ • MŰHELY •
• BEFEKTETŐKNEK • VÁLLALKOZÓKNAK •
Eladóvá vált Aszód családi házas környezetében, központi részen egy részben felújítandó, összközműves, földszintes családi ház.
Az ingatlant az 1950-es években építették.
A lakótér: 100 nm. A telek: 504 nm.
A ház:
- 2 előszoba (új nyílászárókkal)
- 3 szoba
- 2 konyha
- kamra
- fürdő vécével
- terasz (beépített)
- csarnok/műhely/garázs – 70 nm
- kazánház
- pince
Fekvése nyugati.
A fűtést gázkazán, a meleg vizet villanybojler biztosítja.
Áram: rézvezetékek, a műhely áramellátása: 380 V.
Az ingatlan szerkezetileg jól megépített, masszív, száraz, jó állapotú.
A lakás fölött nagy padlástér található, amely beépíthető.
Az elmúlt években az eredeti állapothoz képest tovább bővítették.
Az ingatlan adottságait tekintve jó alap lehet korszerű, modern élettér kialakításához is.
Központi elhelyezkedéséből adódóan alkalmas szolgáltatást nyújtó VÁLLALKOZÁSOK üzemeltetésére is.
A KERT gyümölcsfákkal, bokrokkal beültetett, kerti csapról locsolható.
Az ingatlan közlekedése kiváló, buszok állnak rendelkezésre, és a vasútállomás is kb. 10 perc alatt elérhető.
A közelben megtalálható óvoda, bölcsőde, iskola és bevásárlási lehetőségek.
Amennyiben felkeltette érdeklődését, hívjon bizalommal, akár hétvégén is!
• 3%-os OTTHON START igényelhető! •
Kiváló közlekedésnél, közel a város központjához, Angyalföldön eladó 73 nm + 8 nm-es, erkélyes, nappali + 2 db hálószobás lakás, ÚJSZERŰ, liftes, 6 emeletes épülettömbben.
• Az épületben TÖBB LAKÁS ÁLL RENDELKEZÉSRE különböző méretben és eladási áron •
A lakás berendezett, gépesített. A vételár tartozéka: klíma és beépített bútorok.
A gépek, bútorok ára: 3,5 millió Ft.
Lakás:
- előszoba
- fürdőszoba – zuhanyzóval (szellőzővel)
- vécé (szellőzővel)
- gépesített konyha (mosogatógép, hűtőszekrény, főzőlap, szagelszívó, sütő, mosógép)
- 2 hálószoba
- amerikai konyhás nappali (klímával)
- erkély (8 nm)
A lakás fekvésének és a nagy ablakainak köszönhetően világos, napfényes.
Műszaki tartalom:
- kétrétegű hő- és hangszigetelt nyílászárók
- biztonsági ajtó, minőségi beltéri ajtók, bútorok
- magas minőségű csaptelepek, szaniterek
- LED-lámpák, házközponti fűtés egyedi mérővel
- klíma, riasztó, internet
Parkolás:
- mélygarázsbeálló bérelhető
- a teremgarázsban parkolóhely vásárolható
Rezsi:
- a lakás fenntartása, havi költsége kedvező, a rezsi egyedi mérőórákkal mért egyéni fogyasztás után fizetendő (fűtés, víz, villany)
Infrastruktúra:
- busz, villamos, metró (M3), éttermek, boltok pár perc sétára
Amennyiben felkeltette érdeklődését, kérem, hívjon, akár hétvégén is.
• ASZÓD KÖZPONTJÁBAN • NAGY HÁZ • MŰHELY •
• BEFEKTETŐKNEK • VÁLLALKOZÓKNAK •
Eladóvá vált Aszód családi házas környezetében, központi részen egy részben felújítandó, összközműves, földszintes családi ház.
Az ingatlant az 1950-es években építették.
A lakótér: 100 nm. A telek: 504 nm.
A ház:
- 2 előszoba (új nyílászárókkal)
- 3 szoba
- 2 konyha
- kamra
- fürdő vécével
- terasz (beépített)
- csarnok/műhely/garázs – 70 nm
- kazánház
- pince
Fekvése nyugati.
A fűtést gázkazán, a meleg vizet villanybojler biztosítja.
Áram: rézvezetékek, a műhely áramellátása: 380 V.
Az ingatlan szerkezetileg jól megépített, masszív, száraz, jó állapotú.
A lakás fölött nagy padlástér található, amely beépíthető.
Az elmúlt években az eredeti állapothoz képest tovább bővítették.
Az ingatlan adottságait tekintve jó alap lehet korszerű, modern élettér kialakításához is.
Központi elhelyezkedéséből adódóan alkalmas szolgáltatást nyújtó VÁLLALKOZÁSOK üzemeltetésére is.
A KERT gyümölcsfákkal, bokrokkal beültetett, kerti csapról locsolható.
Az ingatlan közlekedése kiváló, buszok állnak rendelkezésre, és a vasútállomás is kb. 10 perc alatt elérhető.
A közelben megtalálható óvoda, bölcsőde, iskola és bevásárlási lehetőségek.
Amennyiben felkeltette érdeklődését, hívjon bizalommal, akár hétvégén is!