Eladó Lakás
Hirdetéskód: 9254610
Érd Bajcsy-Zsilinszky út 160 - OTP Ingatlanpont Iroda
Felújításhoz személyi kölcsönt keres? Kalkuláljon itt! →59.00 m2
ALAPTERÜLET2
SZOBASZÁMnincs megadva
ÉPÍTÉSEgyéb fűtés
FŰTÉS- CSOK igénybe vehető nem
- Tetőtér beépíthető nem
- Építés éve 2025
- Fűtés Egyéb fűtés
- Klíma nem
- Szigetelt nem
A+++
A++
A+
A
B
C
D
E
F
G
H
I
Az ingatlan leírása
VIRÁNYOS VILLAPARK - PRÉMIUM OTTHONOK!
Elindult a Virányos Villapark épülő lakásainak értékesítése! Részletes információk, alaprajzok, parkolóhelyek, tárolók a viranyosvillapark oldalon! Várható átadás: 2026. IV. negyedév!
A Virányos Villapark Budapest 12. kerületében, a budai Széll Kálmán térhez közel, mégis csendes környezetben elhelyezkedő prémium minőségű lakópark.
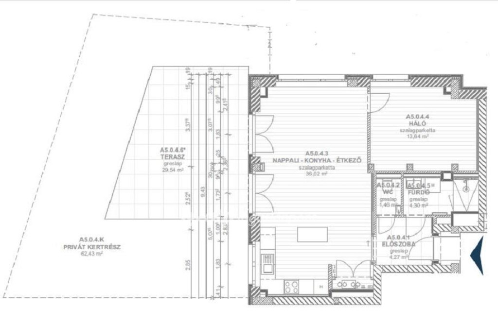
A hirdetésben szereplő lakás, az F épület földszintjén helyezkedik el, ÉNY tájolással, 59.69 m2 alapterülettel, mely életteret tovább növeli a 29.54 m2 alapterületű terasz és a 62.43 m2 területű privát kert. A lakás helyiségei: Előszoba, WC, Szoba, Amerikai konyhás nappali, Fürdőszoba.
A Villaparkban 60-175m2 közötti, N + 1-2-3-4 szobás, kertes, teraszos, erkélyes, tágas tetőteraszos, valamint duplex és penthouse lakások közül választhat. Az elérhető lakásokról érdeklődjön telefonon! A kiválasztott lakáshoz mélygarázs beálló hely és tároló vásárlása kötelező. További beálló helyek és tárolók a készlet erejéig vásárolhatóak.
A villapark főbb jellemzői: parkosított, öntözőrendszerrel ellátott közös kert, csendes környezet, változatos lakás-, terasz- és kertméretek, tágas, napfényes lakások.
A lakások műszaki jellemzői: megújuló energiával előállított hatékony, hőszivattyús hűtő-fűtő rendszer, padlófűtés és mennyezeti fan-coil hűtés a maximális komfort érzetért, lakásonként kialakított hővisszanyerős szellőztetőrendszer az állandó friss levegő biztosításáért, magas minőségű alumínium nyílászárók 3 rétegű üvegezéssel a kiváló hő- és hangszigetelésért, árnyékoló rendszer az optimális fényviszonyok eléréséért, audió-videó kaputelefon, személyre szabható okosotthon rendszer előkészítés, amely lehetővé teszi a lakás teljeskörű vezérlését.
Az ingatlan közvetlen környezetében számos magánóvoda és általános iskola, gimnázium található. Bevásárlási lehetőségként a Budagyöngye Bevásárlóközpont és a szintén közeli Mammut Bevásárló- és Szórakoztató Központ is rendelkezésre áll.
A Virányos Villapark tömegközlekedési eszközzel is könnyen megközelíthető, az 56-os, 59-es, 61-es villamosok, a 22-es, 91-es, 155-ös és 156-os buszok megállói pár perc sétatávolságra találhatók.
Elindult a Virányos Villapark épülő lakásainak értékesítése! Részletes információk, alaprajzok, parkolóhelyek, tárolók a viranyosvillapark oldalon! Várható átadás: 2026. IV. negyedév!
A Virányos Villapark Budapest 12. kerületében, a budai Széll Kálmán térhez közel, mégis csendes környezetben elhelyezkedő prémium minőségű lakópark.
A hirdetésben szereplő lakás, az F épület földszintjén helyezkedik el, ÉNY tájolással, 59.69 m2 alapterülettel, mely életteret tovább növeli a 29.54 m2 alapterületű terasz és a 62.43 m2 területű privát kert. A lakás helyiségei: Előszoba, WC, Szoba, Amerikai konyhás nappali, Fürdőszoba.
A Villaparkban 60-175m2 közötti, N + 1-2-3-4 szobás, kertes, teraszos, erkélyes, tágas tetőteraszos, valamint duplex és penthouse lakások közül választhat. Az elérhető lakásokról érdeklődjön telefonon! A kiválasztott lakáshoz mélygarázs beálló hely és tároló vásárlása kötelező. További beálló helyek és tárolók a készlet erejéig vásárolhatóak.
A villapark főbb jellemzői: parkosított, öntözőrendszerrel ellátott közös kert, csendes környezet, változatos lakás-, terasz- és kertméretek, tágas, napfényes lakások.
A lakások műszaki jellemzői: megújuló energiával előállított hatékony, hőszivattyús hűtő-fűtő rendszer, padlófűtés és mennyezeti fan-coil hűtés a maximális komfort érzetért, lakásonként kialakított hővisszanyerős szellőztetőrendszer az állandó friss levegő biztosításáért, magas minőségű alumínium nyílászárók 3 rétegű üvegezéssel a kiváló hő- és hangszigetelésért, árnyékoló rendszer az optimális fényviszonyok eléréséért, audió-videó kaputelefon, személyre szabható okosotthon rendszer előkészítés, amely lehetővé teszi a lakás teljeskörű vezérlését.
Az ingatlan közvetlen környezetében számos magánóvoda és általános iskola, gimnázium található. Bevásárlási lehetőségként a Budagyöngye Bevásárlóközpont és a szintén közeli Mammut Bevásárló- és Szórakoztató Központ is rendelkezésre áll.
A Virányos Villapark tömegközlekedési eszközzel is könnyen megközelíthető, az 56-os, 59-es, 61-es villamosok, a 22-es, 91-es, 155-ös és 156-os buszok megállói pár perc sétatávolságra találhatók.