Eladó Lakás
Hirdetéskód: 9197816
Mirage Immobile Kft.
74 m2
ALAPTERÜLET2
SZOBASZÁMnincs megadva
ÉPÍTÉSnincs megadva
FŰTÉS- CSOK igénybe vehető nem
- Tetőtér beépíthető nem
- Építés éve 1935
- Klíma nem
- Szigetelt nem
A+++
A++
A+
A
B
C
D
E
F
G
H
I
Az ingatlan leírása
Napsütötte, tágas, teraszos otthon - Kissvábhegyen
Budapest egyik legkedveltebb, zöldövezeti részén, a XII. kerület Kissvábhegyén, az Ügyész utcában kínálunk megvételre egy különleges hangulatú, 80 m²-es, belső kétszintes lakást, 12 m²-es, napfényben fürdőző, kertre néző saját terasszal.
A lakás egy elegáns, háromlakásos villaépület legfelső szintjén helyezkedik el, így teljes intimitást és nyugalmat biztosít tulajdonosának.
A lakás különlegességei:
- Lélegzetelállító terek és fényár a közel 4 méteres belmagasság, valamint a rusztikus, látszó gerendás nappali egyedi karaktert kölcsönöz az otthonnak.
- Kivételes tárolókapacitás ízlésesen beépített szekrények és tágas gardrób biztosítanak rendszerezett életteret.
- Csendes, zöld környezet, mégis kiváló közlekedés a belváros mindössze percek alatt elérhető. (Busz: 21, 39, 102, 210, 212 Villamos: 17, 59, 61 M2 metró: 10 perc séta)
A lakás elrendezése:
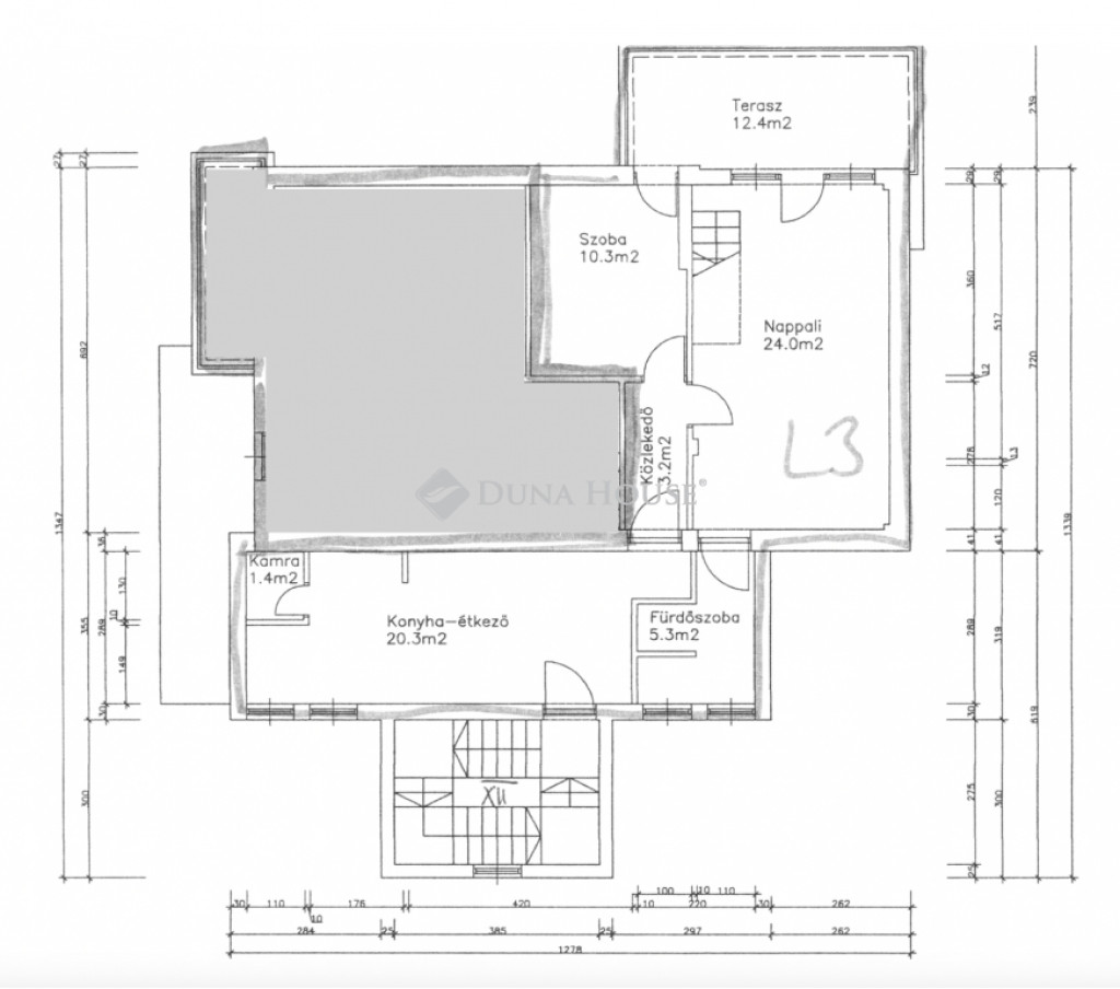
- elegáns előszoba
- konyha-étkező + kamra
- tágas nappali rusztikus látszógerendákkal, közvetlen teraszkapcsolattal
- kényelmes méretű hálószoba, szintén kijárattal a teraszra
- stílusos fürdőszoba zuhanykabinnal és WC-vel
- a galériaszinten egy nyitott, világos dolgozó- vagy vendégszoba, beépített gardrób és extra tárolófelületek
A lakás a villa felső szintjén, kb. másfél emelet magasságban található. A hozzá vezető zárható, kizárólagos használatú lépcsőház további biztonságot és extra tárolási lehetőséget kínál.
A lakás teljes körű felújításon esett át, és azóta is gondosan karbantartott.
Cirkófűtés és klímaberendezés gondoskodik az évszakokhoz illő kényelemről.
Külső adottságok:
A villa egy 1070 m²-es, ősfás, parkosított telken helyezkedik el. A lakáshoz saját kerthasználat tartozik, ahol homokozó-játszórész, grillterasz, pihenőkert vagy veteményes is kialakítható.
A kényelmet saját udvari gépkocsibeálló és külön külső tároló is szolgálja, melyek árát a vételár tartalmazza!!!
Ez az ingatlan tökéletes választás azoknak, akik egy napfényes, hangulatos, otthonos lakást keresnek a XII. kerület egyik legjobb részén, ahol a zöld környezet és a városi kényelem találkozik.
Ha Ön is egy egyedi atmoszférájú, magas minőségű lakásra vágyik Budapest egyik legkívánatosabb részén, keressen bizalommal a részletekért és a megtekintés egyeztetéséhez!
Budapest egyik legkedveltebb, zöldövezeti részén, a XII. kerület Kissvábhegyén, az Ügyész utcában kínálunk megvételre egy különleges hangulatú, 80 m²-es, belső kétszintes lakást, 12 m²-es, napfényben fürdőző, kertre néző saját terasszal.
A lakás egy elegáns, háromlakásos villaépület legfelső szintjén helyezkedik el, így teljes intimitást és nyugalmat biztosít tulajdonosának.
A lakás különlegességei:
- Lélegzetelállító terek és fényár a közel 4 méteres belmagasság, valamint a rusztikus, látszó gerendás nappali egyedi karaktert kölcsönöz az otthonnak.
- Kivételes tárolókapacitás ízlésesen beépített szekrények és tágas gardrób biztosítanak rendszerezett életteret.
- Csendes, zöld környezet, mégis kiváló közlekedés a belváros mindössze percek alatt elérhető. (Busz: 21, 39, 102, 210, 212 Villamos: 17, 59, 61 M2 metró: 10 perc séta)
A lakás elrendezése:
- elegáns előszoba
- konyha-étkező + kamra
- tágas nappali rusztikus látszógerendákkal, közvetlen teraszkapcsolattal
- kényelmes méretű hálószoba, szintén kijárattal a teraszra
- stílusos fürdőszoba zuhanykabinnal és WC-vel
- a galériaszinten egy nyitott, világos dolgozó- vagy vendégszoba, beépített gardrób és extra tárolófelületek
A lakás a villa felső szintjén, kb. másfél emelet magasságban található. A hozzá vezető zárható, kizárólagos használatú lépcsőház további biztonságot és extra tárolási lehetőséget kínál.
A lakás teljes körű felújításon esett át, és azóta is gondosan karbantartott.
Cirkófűtés és klímaberendezés gondoskodik az évszakokhoz illő kényelemről.
Külső adottságok:
A villa egy 1070 m²-es, ősfás, parkosított telken helyezkedik el. A lakáshoz saját kerthasználat tartozik, ahol homokozó-játszórész, grillterasz, pihenőkert vagy veteményes is kialakítható.
A kényelmet saját udvari gépkocsibeálló és külön külső tároló is szolgálja, melyek árát a vételár tartalmazza!!!
Ez az ingatlan tökéletes választás azoknak, akik egy napfényes, hangulatos, otthonos lakást keresnek a XII. kerület egyik legjobb részén, ahol a zöld környezet és a városi kényelem találkozik.
Ha Ön is egy egyedi atmoszférájú, magas minőségű lakásra vágyik Budapest egyik legkívánatosabb részén, keressen bizalommal a részletekért és a megtekintés egyeztetéséhez!