Eladó Lakás
Hirdetéskód: 9183013
GDN Ingatlanhálózat - Ingatlan Budafok
Felújításhoz személyi kölcsönt keres? Kalkuláljon itt! →100.00 m2
ALAPTERÜLET2
SZOBASZÁMnincs megadva
ÉPÍTÉSEgyéb fűtés
FŰTÉS- CSOK igénybe vehető nem
- Tetőtér beépíthető nem
- Fűtés Egyéb fűtés
- Klíma nem
- Szigetelt nem
A+++
A++
A+
A
B
C
D
E
F
G
H
I
Az ingatlan leírása
Eladásra kínálunk Kútvölgy kedvelt részén egy Ősfás 1100 m2 területen elhelyezkedő patinás házban található 100 m2 panorámás lakást. Az ingatlanhoz 150-200 m2 kertrész is tartozik.
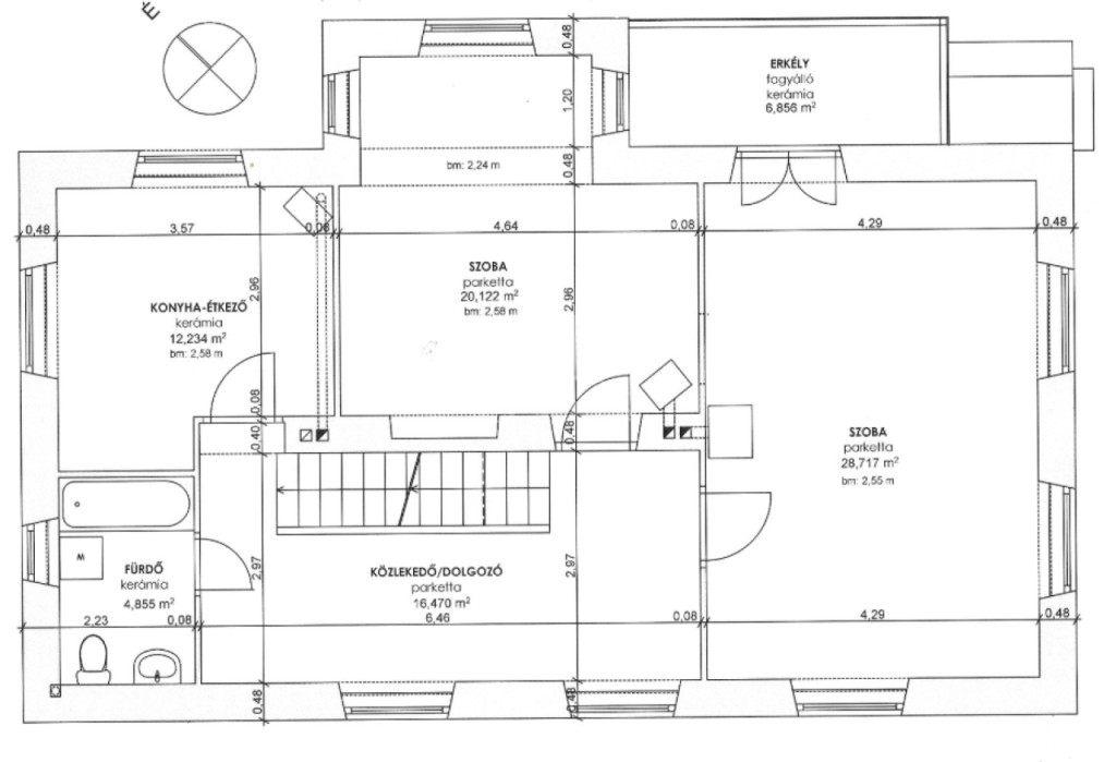
A 2 szobás 100 m2-es lakás az épület első emeltén helyezkedik el.
Lakás elrendezése:
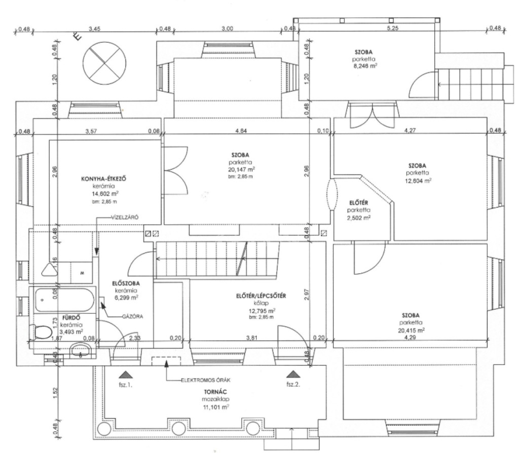
Földszint:
• Lépcsőház - gardrob 12,7 m2
• Tornác 5,5 m2
Emelet:
• 2 db. szoba 20,1 m2 + 28,7 m2
• Közlekedő -dolgozó sarok 16,47 m2
• Konyha 12,2 m2
• Fürdőszoba 4,8 m2
• Erkély 7 m2
Kert:
• 150 - 200 m2 kertrész
A ház 1940-ben épült 55 cm vastag téglafalakkal. Az épület szerkezetileg jó állapotú – feljutása és korszerűsítése esedékes.
Az ingatlant fiatal pároknak -családoknak egyaránt ajánljuk.
A társasházban párhuzamosan kerül értékesítésre a hírdetésben szereplő 100 m2 és az az alatta található 93 m2 db.földszinti lakás.
Amennyiben Önnek a vásárláshoz szüksége lenne hitelre egyedi kedvezménnyel,kezdeményezheti a kapcsolatfelvételt bankfüggetlen hitelügyintézőinkkel, teljesen DÍJMENTESEN.
Az ingatlan részletes ismertetése és bemutatása előre egyeztetett időpontban lehetséges, melyet nagyon rugalmasan kezelünk, akár HÉTVÉGÉN is.
Amennyiben felkeltette az érdeklődését, további kérdéseivel kapcsolatban várom jelentkezését! ...TOVÁBBI, TÖBBEZRES INGATLAN KÍNÁLAT: - GDN azonosító: 388132
A 2 szobás 100 m2-es lakás az épület első emeltén helyezkedik el.
Lakás elrendezése:
Földszint:
• Lépcsőház - gardrob 12,7 m2
• Tornác 5,5 m2
Emelet:
• 2 db. szoba 20,1 m2 + 28,7 m2
• Közlekedő -dolgozó sarok 16,47 m2
• Konyha 12,2 m2
• Fürdőszoba 4,8 m2
• Erkély 7 m2
Kert:
• 150 - 200 m2 kertrész
A ház 1940-ben épült 55 cm vastag téglafalakkal. Az épület szerkezetileg jó állapotú – feljutása és korszerűsítése esedékes.
Az ingatlant fiatal pároknak -családoknak egyaránt ajánljuk.
A társasházban párhuzamosan kerül értékesítésre a hírdetésben szereplő 100 m2 és az az alatta található 93 m2 db.földszinti lakás.
Amennyiben Önnek a vásárláshoz szüksége lenne hitelre egyedi kedvezménnyel,kezdeményezheti a kapcsolatfelvételt bankfüggetlen hitelügyintézőinkkel, teljesen DÍJMENTESEN.
Az ingatlan részletes ismertetése és bemutatása előre egyeztetett időpontban lehetséges, melyet nagyon rugalmasan kezelünk, akár HÉTVÉGÉN is.
Amennyiben felkeltette az érdeklődését, további kérdéseivel kapcsolatban várom jelentkezését! ...TOVÁBBI, TÖBBEZRES INGATLAN KÍNÁLAT: - GDN azonosító: 388132