Eladó Lakás
Hirdetéskód: 9183012
GDN Ingatlanhálózat - Ingatlan Budafok
Felújításhoz személyi kölcsönt keres? Kalkuláljon itt! →93.00 m2
ALAPTERÜLET4
SZOBASZÁMnincs megadva
ÉPÍTÉSGáz (cirkó)
FŰTÉS- CSOK igénybe vehető nem
- Tetőtér beépíthető nem
- Fűtés Gáz (cirkó)
- Klíma nem
- Szigetelt nem
A+++
A++
A+
A
B
C
D
E
F
G
H
I
Az ingatlan leírása
Eladásra kínálunk Kútvölgy kedvelt részén egy Ősfás 1100 m2 területen elhelyezkedő patinás házban elhelyezkedő 93 m2 lakást mely 250 m2-es közvetlen kertkapcsolattal rendelkezik.
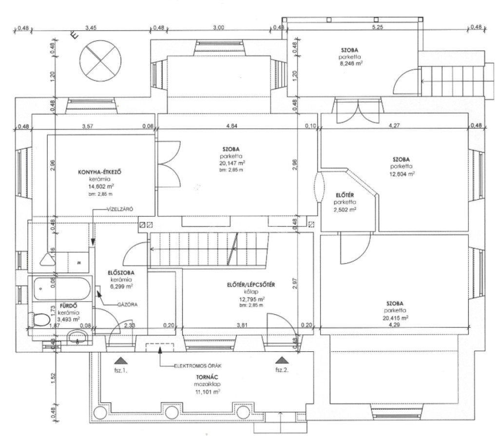
A 93 m2-es lakás az épület földszintjén helyezkedik el.
Lakás elrendezése:
Földszint:
• 3 db. 20,1 - 20,1 - 12,6 m2, 12,6 m2 szoba, + 8,2 m2 télikert
• Konyha - étkező 14,6 m2
• Fürdőszoba 6,2 m2
• Közlekedő 6,2 m2
• Tornác 5,5 m2
Tároló - pince:
• 30 m2
Kert:
• Közvetlen 250-300 m2 kertrész + kerti kemence
• Kocsibeálló 2 autónak is kialakitható terület
A ház 1940-ben épült 55 cm vastag téglafalakkal. Az épület szerkezetileg jó állapotú – feljutása és korszerűsítése esedékes.
Az ingatlant fiatal pároknak -családoknak egyaránt ajánljuk.
A társasházban párhuzamosan kerül értékesítésre a hirdetésben szereplő 93 m2 és a felette található 100 db. első emeleti lakás.
Amennyiben Önnek a vásárláshoz szüksége lenne hitelre egyedi kedvezménnyel,kezdeményezheti a kapcsolatfelvételt bankfüggetlen hitelügyintézőinkkel, teljesen DÍJMENTESEN.
Az ingatlan részletes ismertetése és bemutatása előre egyeztetett időpontban lehetséges, melyet nagyon rugalmasan kezelünk, akár HÉTVÉGÉN is.
Amennyiben felkeltette az érdeklődését, további kérdéseivel kapcsolatban várom jelentkezését! ...TOVÁBBI, TÖBBEZRES INGATLAN KÍNÁLAT: - GDN azonosító: 388131
A 93 m2-es lakás az épület földszintjén helyezkedik el.
Lakás elrendezése:
Földszint:
• 3 db. 20,1 - 20,1 - 12,6 m2, 12,6 m2 szoba, + 8,2 m2 télikert
• Konyha - étkező 14,6 m2
• Fürdőszoba 6,2 m2
• Közlekedő 6,2 m2
• Tornác 5,5 m2
Tároló - pince:
• 30 m2
Kert:
• Közvetlen 250-300 m2 kertrész + kerti kemence
• Kocsibeálló 2 autónak is kialakitható terület
A ház 1940-ben épült 55 cm vastag téglafalakkal. Az épület szerkezetileg jó állapotú – feljutása és korszerűsítése esedékes.
Az ingatlant fiatal pároknak -családoknak egyaránt ajánljuk.
A társasházban párhuzamosan kerül értékesítésre a hirdetésben szereplő 93 m2 és a felette található 100 db. első emeleti lakás.
Amennyiben Önnek a vásárláshoz szüksége lenne hitelre egyedi kedvezménnyel,kezdeményezheti a kapcsolatfelvételt bankfüggetlen hitelügyintézőinkkel, teljesen DÍJMENTESEN.
Az ingatlan részletes ismertetése és bemutatása előre egyeztetett időpontban lehetséges, melyet nagyon rugalmasan kezelünk, akár HÉTVÉGÉN is.
Amennyiben felkeltette az érdeklődését, további kérdéseivel kapcsolatban várom jelentkezését! ...TOVÁBBI, TÖBBEZRES INGATLAN KÍNÁLAT: - GDN azonosító: 388131