Eladó Lakás
Hirdetéskód: 9213123
GDN Ingatlanhálózat - Ingatlan Budafok
48 m2
ALAPTERÜLET2
SZOBASZÁMnincs megadva
ÉPÍTÉSHázközponti fűtés egyedi méréssel
FŰTÉS- CSOK igénybe vehető nem
- Tetőtér beépíthető nem
- Fűtés Házközponti fűtés egyedi méréssel
- Klíma nem
- Szigetelt nem
A+++
A++
A+
A
B
C
D
E
F
G
H
I
Az ingatlan leírása
CSAK AZ IRODÁNK KÍNÁLATÁBAN !
A XI. kerület Csurgói úton a TÖLGYES LAKÓPARKBAN, egy 2 szobás, amerikai konyhás, 2 emeleti lakást 13 m2-es fedett erkéllyel kínálunk megvételre.
A lakás jó állapotú, modern, praktikusan berendezhető és mindkét szobából kiléphetünk a zöldövezeti kilátást adó nagy erkélyre.
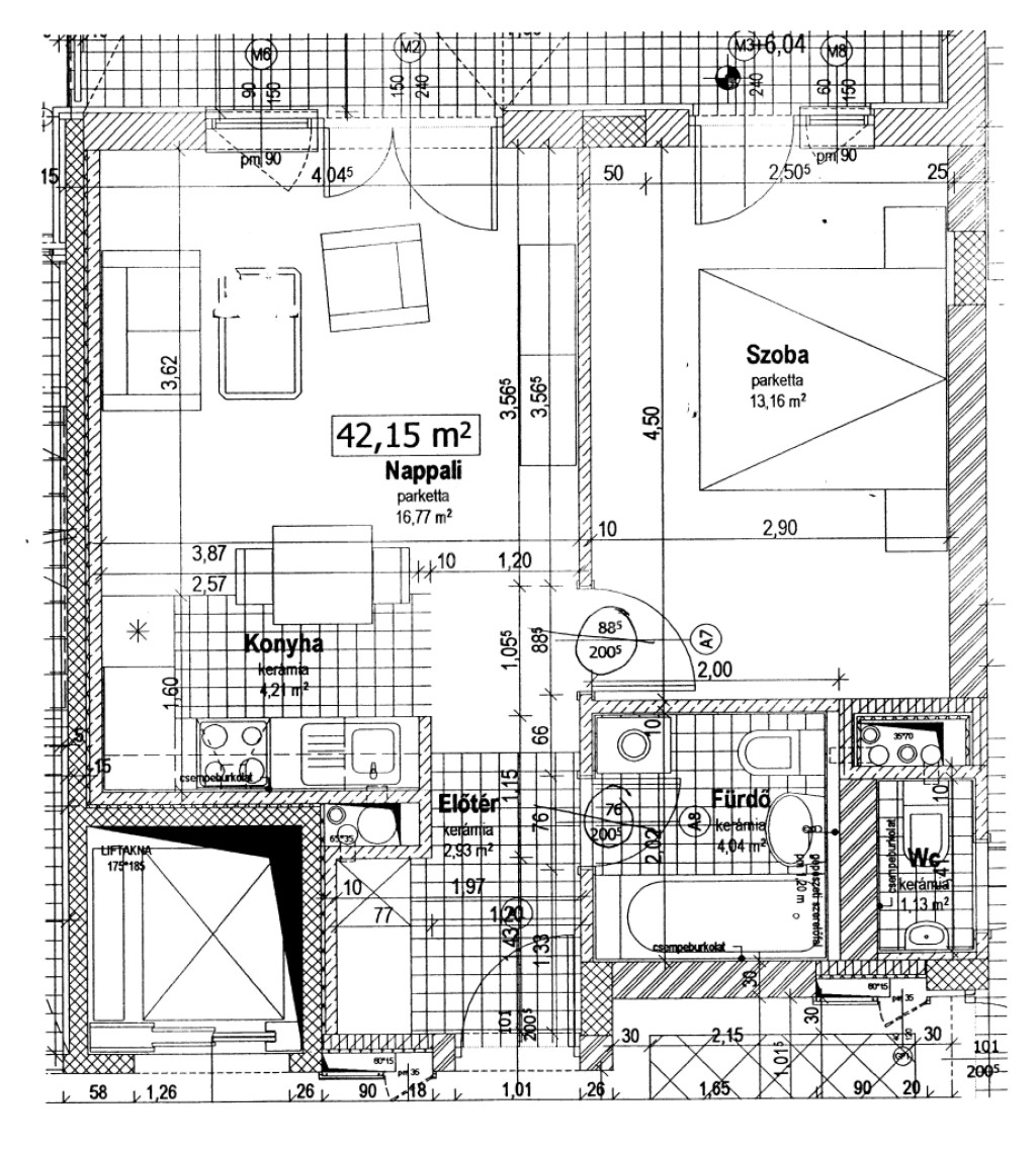
A lakás helyiségei:
Az előtér 3 m2, nappali amerikai konyhával 16,8 m2, hálószoba 13 m2, fürdőszoba + WC 4 m2, terasz 13 m2.
A helyiségek elrendezését, méreteit lásd az ALAPRAJZON !
A lakópark zárt, biztonsági szolgálat által őrzött terület.
A lakás kulturált zárt lépcsőházból, lifttel is megközelíthető.
A közös költség 20.000 Ft /hó.
Az ingatlan TEHERMENTES, egy tulajdonostól eladó, érvényes Energetikai Tanúsítvánnyal is rendelkezünk!
KIVÁLÓ AJÁNLAT lehet azoknak, akik biztonságos, zöldövezeti, nyugodt otthont keresnek.
Az ingatlan tömegközlekedése NAGYON JÓ !
Tétényi út és a Fehérvári út közelsége miatt, busszal, villamossal könnyen megközelíthető. A parkolás közterületen ingyenes.
A közelben minden megtalálható, óvoda, iskola, orvosi rendelő, parkok, játszóterek és bevásárlási lehetőségek.
Hiteligénylés miatt kezdeményezheti díjmentesen a kapcsolatfelvételt hitelszakértő munkatársunkkal.
Az Ingatlan megtekintése ELŐRE EGYEZTETETT IDŐPONTBAN
lehetséges.
Amennyiben felkeltette érdeklődését, további kérdéseivel VÁROM JELENTKEZÉSÉT !
(G.I.) ...TOVÁBBI, TÖBBEZRES INGATLAN KÍNÁLAT: - GDN azonosító: 389212
A XI. kerület Csurgói úton a TÖLGYES LAKÓPARKBAN, egy 2 szobás, amerikai konyhás, 2 emeleti lakást 13 m2-es fedett erkéllyel kínálunk megvételre.
A lakás jó állapotú, modern, praktikusan berendezhető és mindkét szobából kiléphetünk a zöldövezeti kilátást adó nagy erkélyre.
A lakás helyiségei:
Az előtér 3 m2, nappali amerikai konyhával 16,8 m2, hálószoba 13 m2, fürdőszoba + WC 4 m2, terasz 13 m2.
A helyiségek elrendezését, méreteit lásd az ALAPRAJZON !
A lakópark zárt, biztonsági szolgálat által őrzött terület.
A lakás kulturált zárt lépcsőházból, lifttel is megközelíthető.
A közös költség 20.000 Ft /hó.
Az ingatlan TEHERMENTES, egy tulajdonostól eladó, érvényes Energetikai Tanúsítvánnyal is rendelkezünk!
KIVÁLÓ AJÁNLAT lehet azoknak, akik biztonságos, zöldövezeti, nyugodt otthont keresnek.
Az ingatlan tömegközlekedése NAGYON JÓ !
Tétényi út és a Fehérvári út közelsége miatt, busszal, villamossal könnyen megközelíthető. A parkolás közterületen ingyenes.
A közelben minden megtalálható, óvoda, iskola, orvosi rendelő, parkok, játszóterek és bevásárlási lehetőségek.
Hiteligénylés miatt kezdeményezheti díjmentesen a kapcsolatfelvételt hitelszakértő munkatársunkkal.
Az Ingatlan megtekintése ELŐRE EGYEZTETETT IDŐPONTBAN
lehetséges.
Amennyiben felkeltette érdeklődését, további kérdéseivel VÁROM JELENTKEZÉSÉT !
(G.I.) ...TOVÁBBI, TÖBBEZRES INGATLAN KÍNÁLAT: - GDN azonosító: 389212