Eladó Lakás
Hirdetéskód: 9293047
Dunaharaszti Bocskai utca 10 - OTP Ingatlanpont Iroda
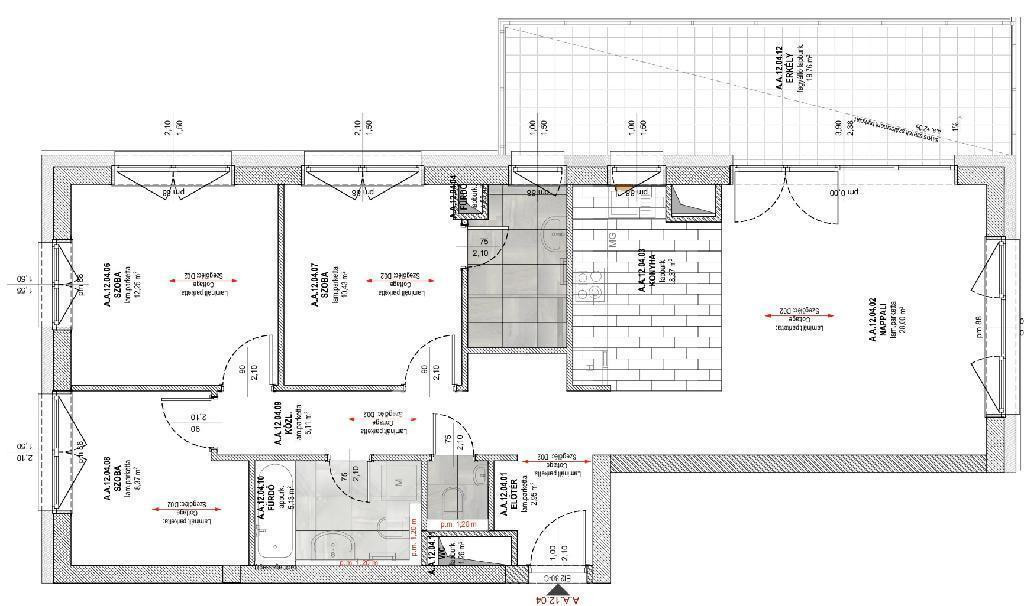
Felújításhoz személyi kölcsönt keres? Kalkuláljon itt! →86.00 m2
ALAPTERÜLET3
SZOBASZÁMnincs megadva
ÉPÍTÉSEgyéb fűtés
FŰTÉS- CSOK igénybe vehető nem
- Tetőtér beépíthető nem
- Építés éve 2024
- Fűtés Egyéb fűtés
- Klíma nem
- Szigetelt nem
A+++
A++
A+
A
B
C
D
E
F
G
H
I
Az ingatlan leírása
Dunai Panorámás Luxus Okos Otthon a 11. Kerületben!
Eladó egy 86 nm-es, 3+1 szobás, teljesen felújított, sosem lakott, újépítésű lakás Budapest egyik legexkluzívabb részén, közvetlen Dunai-kapcsolattal! Az ingatlan prémium minőségű, extra feláras burkolatokkal készült, és a legmodernebb okosotthon-rendszerrel van felszerelve a maximális kényelem érdekében. A lakás egy három hektáros, parkosított telken helyezkedik el, amely közvetlen kapcsolatot biztosít a Dunával, hiszen a telek egészen a folyóparton kiépülő sétányig nyújtózik. Az épületben a lakók kényelmét és kikapcsolódását szolgálja a fitneszterem, szauna, jóga- és baba-mama szoba, valamint egy hangulatos grillterasz is. A családosok számára különleges előnyt jelent a házon belül működő családi óvoda és a játszótér. A biztonságot, kiépített kamerarendszer és 0-24 órás portaszolgálat garantálja. A csónakház pedig kiváló lehetőséget nyújt a víz közelségének élvezetére. Ez a lakás nemcsak egy otthon, hanem egy életstílus ne hagyja ki ezt a páratlan lehetőséget! Érdeklődjön most, és tekintse meg személyesen!
Amennyiben felkeltettem érdeklődését, várom megtisztelő hívását a hét bármely napján. Az OTP Bankcsoport teljes körű ügyintézéssel áll az eladók és a vevők rendelkezésére! Az adásvételi szerződés megkötéséhez igény szerint megbízható ügyvédi közreműködést és sorban állás nélküli hitel tanácsadást biztosítunk ügyfeleink részére!
Referenciaszám: M299829
Eladó egy 86 nm-es, 3+1 szobás, teljesen felújított, sosem lakott, újépítésű lakás Budapest egyik legexkluzívabb részén, közvetlen Dunai-kapcsolattal! Az ingatlan prémium minőségű, extra feláras burkolatokkal készült, és a legmodernebb okosotthon-rendszerrel van felszerelve a maximális kényelem érdekében. A lakás egy három hektáros, parkosított telken helyezkedik el, amely közvetlen kapcsolatot biztosít a Dunával, hiszen a telek egészen a folyóparton kiépülő sétányig nyújtózik. Az épületben a lakók kényelmét és kikapcsolódását szolgálja a fitneszterem, szauna, jóga- és baba-mama szoba, valamint egy hangulatos grillterasz is. A családosok számára különleges előnyt jelent a házon belül működő családi óvoda és a játszótér. A biztonságot, kiépített kamerarendszer és 0-24 órás portaszolgálat garantálja. A csónakház pedig kiváló lehetőséget nyújt a víz közelségének élvezetére. Ez a lakás nemcsak egy otthon, hanem egy életstílus ne hagyja ki ezt a páratlan lehetőséget! Érdeklődjön most, és tekintse meg személyesen!
Amennyiben felkeltettem érdeklődését, várom megtisztelő hívását a hét bármely napján. Az OTP Bankcsoport teljes körű ügyintézéssel áll az eladók és a vevők rendelkezésére! Az adásvételi szerződés megkötéséhez igény szerint megbízható ügyvédi közreműködést és sorban állás nélküli hitel tanácsadást biztosítunk ügyfeleink részére!
Referenciaszám: M299829