Eladó Lakás
Hirdetéskód: 9215244
OTP Ingatlanpont Csongrád
43 m2
ALAPTERÜLET2
SZOBASZÁMnincs megadva
ÉPÍTÉSnincs megadva
FŰTÉS- CSOK igénybe vehető nem
- Tetőtér beépíthető nem
- Építés éve 2020
- Klíma nem
- Szigetelt nem
A+++
A++
A+
A
B
C
D
E
F
G
H
I
Az ingatlan leírása
Csendesebb környezet, mégis teljes városi kényelem.
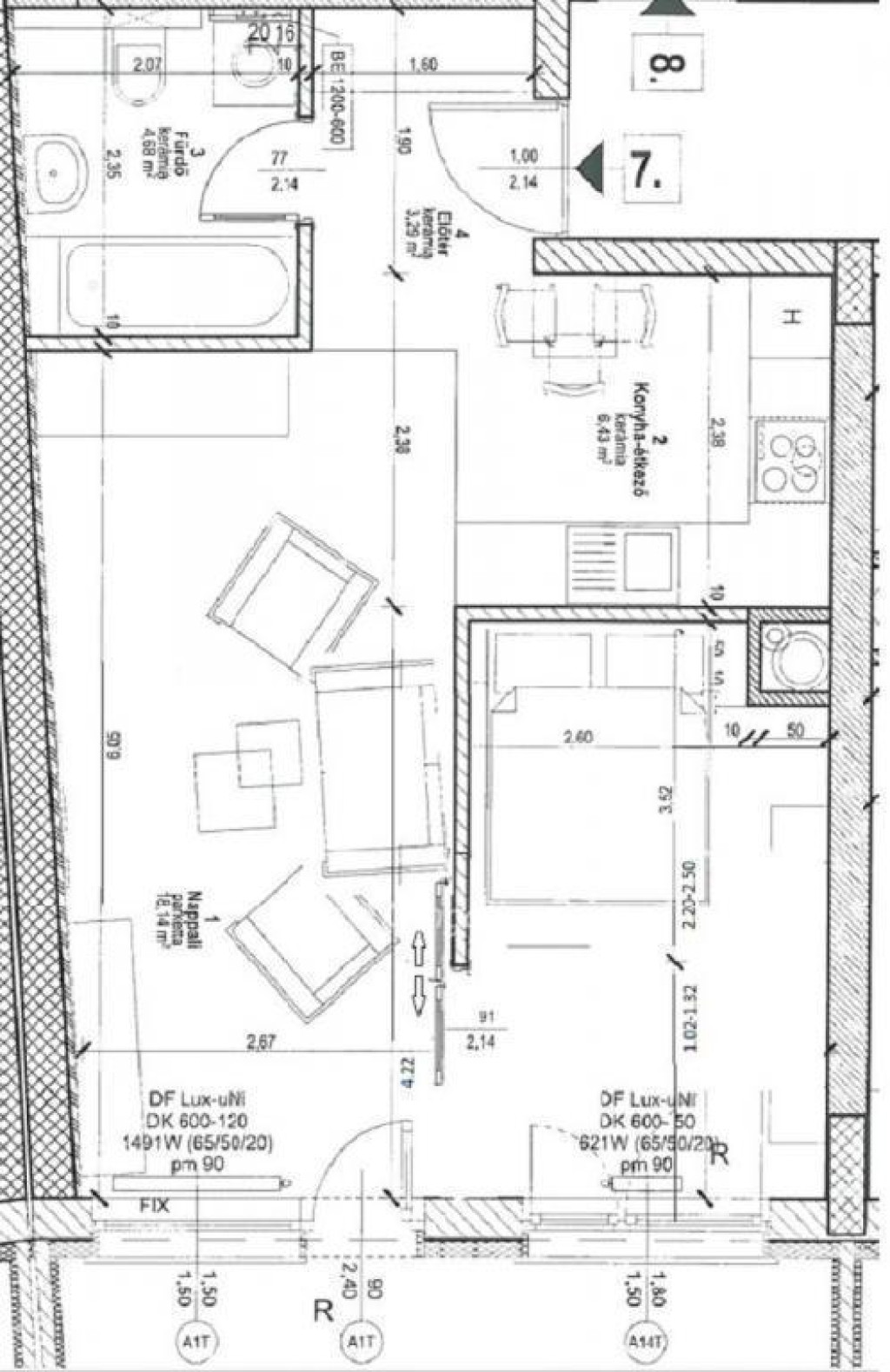
Eladó a Kopaszi-gát közelében, egy kiemelkedő műszaki minőségű, modern, fiatalos, napfényes lakás óriási erkéllyel, több kilométeres városi panorámával (több pontos Duna-részletekkel).
Fő jellemzők:
45 m nettó nappali + háló
12 m a teljes homlokzatot lefedő erkély
4,7 nm-es kádas, nagyméretű fürdőszoba
Jól élhető, kényelmes terek, praktikus elrendezés.
8. emelet, délkeleti (kiemelten kedvező) tájolás, hosszú, napos délelőttök.
Teljes bútorzat + gépesített konyha, azonnal költözhető / azonnal kiadható.
Prémium / smart-home megoldások:
Nagyteljesítményű klíma
Távirányítható alu-redőnyök és lámpák
Szúnyoghálók
Prémium csempe és parketta
Nagy tolóajtó, mellyel a nappali és háló igény szerint egybenyitható.
Elhelyezkedés:
Minden sétatávolságra: boltok, kávézók, éttermek, szolgáltatások, tömegközlekedés. Kopaszi-gát percek alatt, futás, Duna-parti séták, kikapcsolódás. Autópályák könnyen megközelíthetőek.
Parkolás:
Opcionális teremgarázs-hely: 13 000 000 Ft.
Ideális választás, kiscsaládoknak: külön háló, nagy erkély, biztonságos környék.
Egyedülálló profi tulajdonosoknak: modern, alacsony rezsi.
Befektetőknek: könnyen kiadható lokáció, ~4% bruttó hozam potenciál.
Tekintse meg és érezni fogja a különbséget...
Eladó a Kopaszi-gát közelében, egy kiemelkedő műszaki minőségű, modern, fiatalos, napfényes lakás óriási erkéllyel, több kilométeres városi panorámával (több pontos Duna-részletekkel).
Fő jellemzők:
45 m nettó nappali + háló
12 m a teljes homlokzatot lefedő erkély
4,7 nm-es kádas, nagyméretű fürdőszoba
Jól élhető, kényelmes terek, praktikus elrendezés.
8. emelet, délkeleti (kiemelten kedvező) tájolás, hosszú, napos délelőttök.
Teljes bútorzat + gépesített konyha, azonnal költözhető / azonnal kiadható.
Prémium / smart-home megoldások:
Nagyteljesítményű klíma
Távirányítható alu-redőnyök és lámpák
Szúnyoghálók
Prémium csempe és parketta
Nagy tolóajtó, mellyel a nappali és háló igény szerint egybenyitható.
Elhelyezkedés:
Minden sétatávolságra: boltok, kávézók, éttermek, szolgáltatások, tömegközlekedés. Kopaszi-gát percek alatt, futás, Duna-parti séták, kikapcsolódás. Autópályák könnyen megközelíthetőek.
Parkolás:
Opcionális teremgarázs-hely: 13 000 000 Ft.
Ideális választás, kiscsaládoknak: külön háló, nagy erkély, biztonságos környék.
Egyedülálló profi tulajdonosoknak: modern, alacsony rezsi.
Befektetőknek: könnyen kiadható lokáció, ~4% bruttó hozam potenciál.
Tekintse meg és érezni fogja a különbséget...