Eladó Lakás
Hirdetéskód: 9254613
Érd Bajcsy-Zsilinszky út 160 - OTP Ingatlanpont Iroda
Felújításhoz személyi kölcsönt keres? Kalkuláljon itt! →81.00 m2
ALAPTERÜLET3
SZOBASZÁMnincs megadva
ÉPÍTÉSHázközponti
FŰTÉS- CSOK igénybe vehető nem
- Belső szintek 1
- Tetőtér beépíthető nem
- Építés éve 2027
- Fűtés Házközponti
- Klíma nem
- Szigetelt nem
A+++
A++
A+
A
B
C
D
E
F
G
H
I
Az ingatlan leírása
Új építésű, vízparti lakások eladók Budapest XI. kerületében, közvetlenül a Duna partján!
Élvezze a Duna közelségének különleges hangulatát egy modern, új építésű lakóparkban Budapest egyik legkedveltebb városrészében. A vízparti sétány, kerékpárút, kikötő és lenyűgöző panoráma mindennapjai részévé válhatnak.
A kiváló elhelyezkedés könnyű megközelíthetőséget és remek infrastruktúrát biztosít: tömegközlekedés, bevásárlási lehetőségek, szolgáltatások és zöldterületek mind karnyújtásnyira.
A projekt széles lakásválasztékot kínál, 43-144 m2 közötti alapterületek, nappali + 1, 2 vagy 3 hálószobás elosztások, erkélyes vagy teraszos lakások.
Összesen 648 db lakás készül több ütemben, e hirdetésben szereplő lakás:
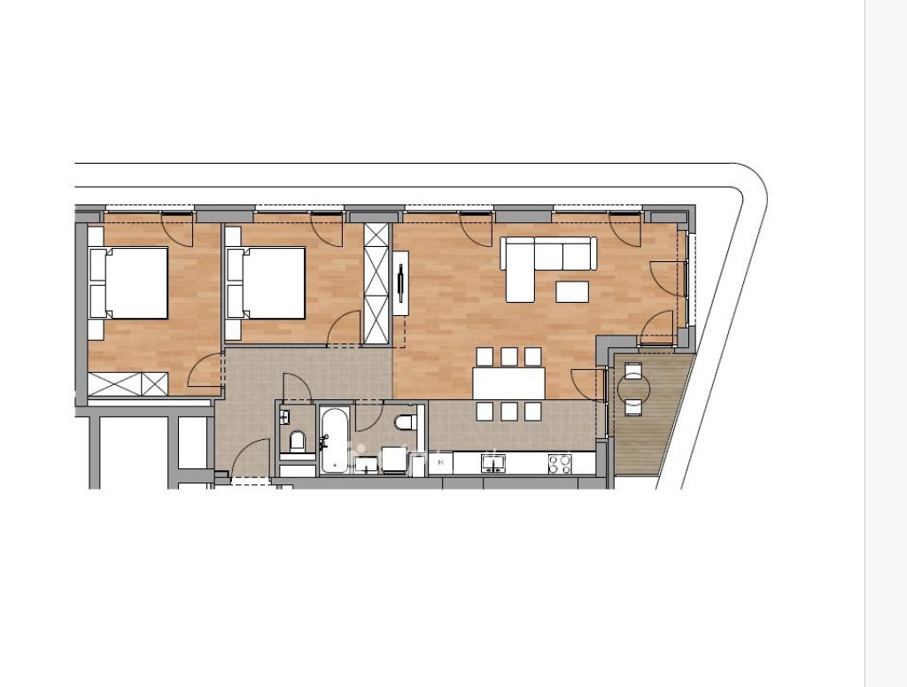
1. épület 4. emelet 1-401. lakás.
nettó 78,52 m2 + 4,97 m2 erkély. helyiségek: előtér 8,19 m2, nappali + étkező 29,86 m2, konyha 8,10 m2, fürdő 4,44 m2, wc 1,08 m2, szoba 12,68 m2, szoba 14,72 m2, erkély 4,97 m2.
A 9 emeletes épületben modern műszaki megoldások gondoskodnak a kényelemről és energiahatékonyságról: levegős hőszivattyús rendszer, lakásonként szabályozható fűtés-hűtés.
30%-kal leköthető, mélygarázs és tároló igény szerint vásárolható hozzá.
Ideális választás fiataloknak, családoknak, valamint befektetőknek egyaránt, akik értékálló, kiemelkedő adottságokkal rendelkező lakást keresnek.
A XI. kerület ezen részéről (a Savoya Park környéke) a 17-es, 41-es, 47-es villamosokkal a belváros kb. 15 perc alatt elérhető.
Vevőinknek szükség esetén kedvezményes hitelt biztosítunk, teljes körű ügyintézéssel áll az eladók és a vevők rendelkezésére!
Élvezze a Duna közelségének különleges hangulatát egy modern, új építésű lakóparkban Budapest egyik legkedveltebb városrészében. A vízparti sétány, kerékpárút, kikötő és lenyűgöző panoráma mindennapjai részévé válhatnak.
A kiváló elhelyezkedés könnyű megközelíthetőséget és remek infrastruktúrát biztosít: tömegközlekedés, bevásárlási lehetőségek, szolgáltatások és zöldterületek mind karnyújtásnyira.
A projekt széles lakásválasztékot kínál, 43-144 m2 közötti alapterületek, nappali + 1, 2 vagy 3 hálószobás elosztások, erkélyes vagy teraszos lakások.
Összesen 648 db lakás készül több ütemben, e hirdetésben szereplő lakás:
1. épület 4. emelet 1-401. lakás.
nettó 78,52 m2 + 4,97 m2 erkély. helyiségek: előtér 8,19 m2, nappali + étkező 29,86 m2, konyha 8,10 m2, fürdő 4,44 m2, wc 1,08 m2, szoba 12,68 m2, szoba 14,72 m2, erkély 4,97 m2.
A 9 emeletes épületben modern műszaki megoldások gondoskodnak a kényelemről és energiahatékonyságról: levegős hőszivattyús rendszer, lakásonként szabályozható fűtés-hűtés.
30%-kal leköthető, mélygarázs és tároló igény szerint vásárolható hozzá.
Ideális választás fiataloknak, családoknak, valamint befektetőknek egyaránt, akik értékálló, kiemelkedő adottságokkal rendelkező lakást keresnek.
A XI. kerület ezen részéről (a Savoya Park környéke) a 17-es, 41-es, 47-es villamosokkal a belváros kb. 15 perc alatt elérhető.
Vevőinknek szükség esetén kedvezményes hitelt biztosítunk, teljes körű ügyintézéssel áll az eladók és a vevők rendelkezésére!