Eladó Lakás
Hirdetéskód: 9201114

Thököly OC

FIX 3% Program

Ez a hirdetés megfelelhet a FIX 3%-os programnak.
Tudj meg többet a részletekről itt.

79 m2
ALAPTERÜLET
3
SZOBASZÁM
nincs megadva
ÉPÍTÉS
nincs megadva
FŰTÉS
  • CSOK igénybe vehető nem
  • Tetőtér beépíthető nem
  • Építés éve 2008
  • Klíma nem
  • Szigetelt nem
Energetikai besorolás: Nincs meghatározva
A+++
A++
A+
A
B
C
D
E
F
G
H
I

Az ingatlan leírása

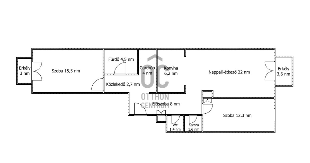
Eladó a 10.kerületben Kőbányán egy 2008-ban épült liftes társasház 1. emeletén, egy 79 nm-es, praktikus elosztású, igényes, 3 szobás, külön Wc-vel, kamrával és dupla erkéllyel is rendelkező, kitűnő állapotú lakás. Tágas és erkélyes nappaliján kívül, két szintén tágas hálószobával (melyek egyike szintén erkélyes), amerikai konyhával, kádas fürdővel, előszobával, külön Wc-vel és kamrával rendelkezik. A keleti tájolású nappali és az egyik szoba csendes utcára, míg a másik, nyugati tájolású szoba belső kertre néz. Az ingatlan egy éven belül teljes felújításon esett át, melynek keretében valamennyi burkolat cserére került, megújult a fürdő, a Wc, és új (még bőven garanciális) gépesített konyhabútor került beépítésre. További tárolást elősegítő szekrények is beépítésre kerültek, melyek a vételárban benne foglaltatnak. A nyílászárók műanyagok és redőnnyel felszereltek, a padlófűtést egyedi méréssel házközponti kazán látja el. A nemrégiben kamerarendszerrel és új postaládákkal valamint friss lépcsőházi festéssel ellátott három szintes szigetelt társasház nagy belső udvarral rendelkezik, mely játszótérrel is rendelkezik. A közös költség átlagban 25 000 Ft, mely a fűtési és vízmelegítési díjat is magában foglalja. Az utcai parkolás megoldott, de igény esetén a házban garázshely és felszíni beálló egyaránt vásárolható vagy bérelhető. A környék ellátottsága mind szolgáltatások, mind közlekedés tekintetében remek, iskolák, óvodák, orvosi rendelők, gyógyszertárak, üzletek, a kerület központja és busz valamint villamos és vasúti közlekedés is sétatávolságon belül találhatóak.

Ha felkeltettem érdeklődését, várom hívását!

Térkép

A hirdető elérhetősége

Thököly OC

Tőke Zoltán
+36 70 716