Eladó Lakás
Hirdetéskód: 9266990
OTP Ingatlanpont - Budapest IX. ker., Üllői út 21.
31.00 m2
ALAPTERÜLET1
SZOBASZÁMnincs megadva
ÉPÍTÉSnincs megadva
FŰTÉS- CSOK igénybe vehető nem
- Tetőtér beépíthető nem
- Építés éve 1970
- Klíma nem
- Szigetelt nem
A+++
A++
A+
A
B
C
D
E
F
G
H
I
Az ingatlan leírása
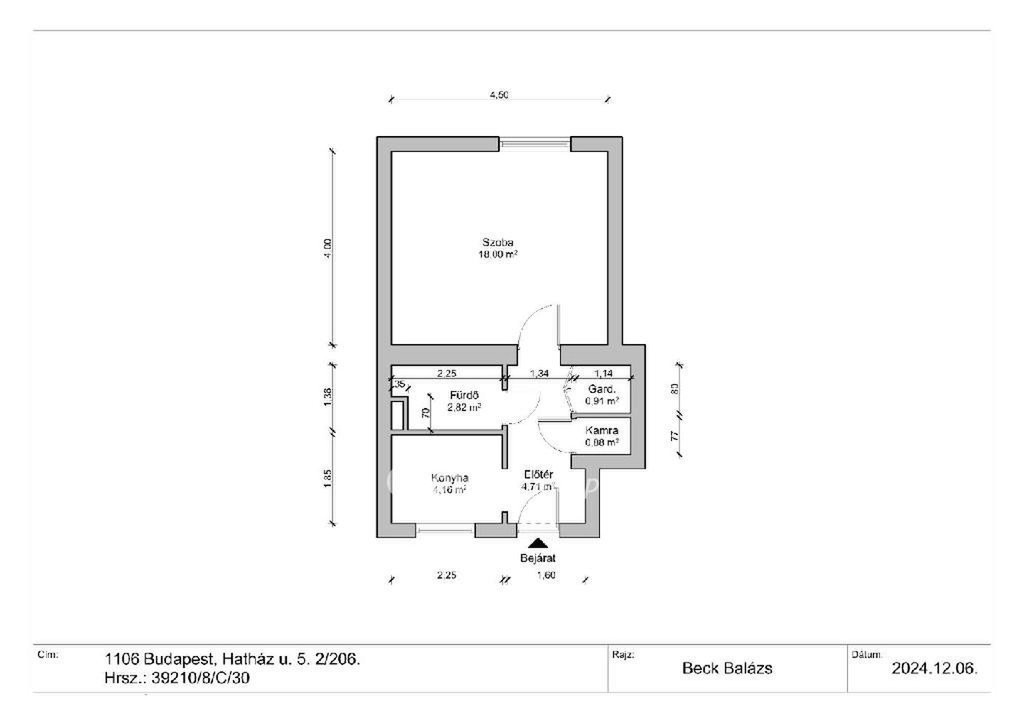
Eladásra kínálunk Budapest X. kerületében, a Hatház utcában egy 31 nm-es, tégla építésű, 1 szobás lakást, amely a társasház második emeletén található.
Az ingatlan főbb jellemzői: 31 nm alapterület, 1 szoba, külön konyha, fürdőszoba, külön tároló, tégla építésű társasház, teljesen felújítandó állapot, saját igény szerint alakítható, műanyag nyílászárók (ablakok és bejárati ajtó már cserélve) külön mérőórák: villany, víz, gáz, második emeleti lakás.
A külön mérőóráknak és az alacsony közös költségnek köszönhetően a lakás kifejezetten gazdaságosan fenntartható, így ideális választás befektetésnek, kiadásra vagy első lakásnak.
Közlekedés:
A környék közlekedése kiváló. A közelben több busz- és villamosjárat közlekedik, amelyekkel gyorsan elérhető a belváros és a kerület fontosabb központjai. Az Örs vezér tere rövid idő alatt megközelíthető, ahol metró-, HÉV- és további tömegközlekedési kapcsolatok állnak rendelkezésre.
Környék:
A Hatház utca csendes, rendezett környezetben helyezkedik el. A közelben üzletek, bevásárlási lehetőségek, gyógyszertár, iskola, óvoda és egyéb szolgáltatások találhatók. Parkos területek és zöldfelületek is könnyen elérhetők, ami kellemes lakókörnyezetet biztosít.
Ne hagyja ki ezt a remek lehetőséget!
Az ingatlan főbb jellemzői: 31 nm alapterület, 1 szoba, külön konyha, fürdőszoba, külön tároló, tégla építésű társasház, teljesen felújítandó állapot, saját igény szerint alakítható, műanyag nyílászárók (ablakok és bejárati ajtó már cserélve) külön mérőórák: villany, víz, gáz, második emeleti lakás.
A külön mérőóráknak és az alacsony közös költségnek köszönhetően a lakás kifejezetten gazdaságosan fenntartható, így ideális választás befektetésnek, kiadásra vagy első lakásnak.
Közlekedés:
A környék közlekedése kiváló. A közelben több busz- és villamosjárat közlekedik, amelyekkel gyorsan elérhető a belváros és a kerület fontosabb központjai. Az Örs vezér tere rövid idő alatt megközelíthető, ahol metró-, HÉV- és további tömegközlekedési kapcsolatok állnak rendelkezésre.
Környék:
A Hatház utca csendes, rendezett környezetben helyezkedik el. A közelben üzletek, bevásárlási lehetőségek, gyógyszertár, iskola, óvoda és egyéb szolgáltatások találhatók. Parkos területek és zöldfelületek is könnyen elérhetők, ami kellemes lakókörnyezetet biztosít.
Ne hagyja ki ezt a remek lehetőséget!