Eladó Lakás
Hirdetéskód: 9298811
Fővállalkozó Balla és Balla Kft
Felújításhoz személyi kölcsönt keres? Kalkuláljon itt! →125.00 m2
ALAPTERÜLET4
SZOBASZÁMnincs megadva
ÉPÍTÉSEgyéb fűtés
FŰTÉS- CSOK igénybe vehető nem
- Tetőtér beépíthető nem
- Építés éve 2026
- Fűtés Egyéb fűtés
- Klíma nem
- Szigetelt nem
A+++
A++
A+
A
B
C
D
E
F
G
H
I
Az ingatlan leírása
SZÁZADOS NEGYED
ZUGLÓI HANGULAT A BELVÁROS KÖZELÉBEN!
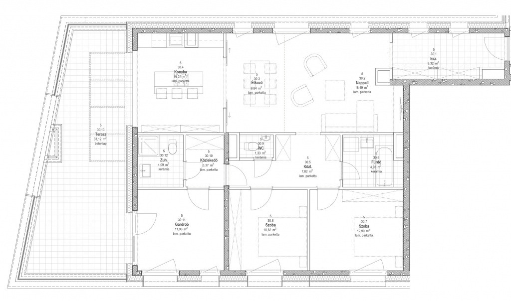
PENTHOUSE - A város felett!
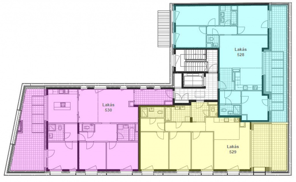
530 lakás - 108,12 nm + 33,12 nm terasz.
Hasznos alapterület: 124,68 nm
ÉPÜLET, LAKÁSOK
30 lakás és egy üzlet kerül kialakításra, melyekhez 32 db parkolóhely kapcsolódik.
A gépkocsi-beállók közül 11 elektromos töltésre alkalmas.
FINANSZÍROZÁS
A feltüntetett vételár önerőből történő vásárlás esetén értendő, szakaszos fizetés mellett.
Hitelfelvétel esetén a vételár pár százalékkal emelkedik.
Kérjen ajánlatot értékesítő kollégánktól!
MODERN ÉPÍTÉSI TECHNOLÓGIA
A falak és födémek előregyártott Leier kéregfal (LKF) elemekből készülnek.
A Leier-rendszer előnyei:
• megbízható hang- és hővédelem
• nagy felhasználói komfort és hosszú távú értékmegőrzés
• energiatakarékosság – kisebb fűtési/hűtési igény, kevesebb rezsi
KÖRNYEZETTUDATOS, ALACSONY ENERGIA IGÉNYŰ OKOS OTTHONOK
A beruházó nagy hangsúlyt fektet a minőségi fenntartható és környezettudatos otthonok kialakítására. Az egyedi hőszivattyús hűtés-fűtés megoldásnak, illetve fokozott hőszigetelésnek köszönhetően a lakások energiaigénye minimális.
KIS LAKÁSSZÁM – BARÁTSÁGOS KÖRNYEZET
A kis lakásszámú társasházak barátságosabb, kellemesebb lakókörnyezetet biztosítanak.
Ezt az érzést fokozza az épületen belüli zöldfelület-kialakítás.
PENTHOUSE – BELVÁROSI LUXUS
Megengedhet magának egy kis luxust, de nem szeretne kiköltözni a belvárosból?
Vásárolja meg az 5. emeleten kialakított három egyedülálló ingatlanunk egyikét!
Hatalmas panorámás terasz, jakuzzi, szauna, csend és nyugalom a város felett.
ZUGLÓI HANGULAT A BELVÁROS KÖZELÉBEN!
PENTHOUSE - A város felett!
530 lakás - 108,12 nm + 33,12 nm terasz.
Hasznos alapterület: 124,68 nm
ÉPÜLET, LAKÁSOK
30 lakás és egy üzlet kerül kialakításra, melyekhez 32 db parkolóhely kapcsolódik.
A gépkocsi-beállók közül 11 elektromos töltésre alkalmas.
FINANSZÍROZÁS
A feltüntetett vételár önerőből történő vásárlás esetén értendő, szakaszos fizetés mellett.
Hitelfelvétel esetén a vételár pár százalékkal emelkedik.
Kérjen ajánlatot értékesítő kollégánktól!
MODERN ÉPÍTÉSI TECHNOLÓGIA
A falak és födémek előregyártott Leier kéregfal (LKF) elemekből készülnek.
A Leier-rendszer előnyei:
• megbízható hang- és hővédelem
• nagy felhasználói komfort és hosszú távú értékmegőrzés
• energiatakarékosság – kisebb fűtési/hűtési igény, kevesebb rezsi
KÖRNYEZETTUDATOS, ALACSONY ENERGIA IGÉNYŰ OKOS OTTHONOK
A beruházó nagy hangsúlyt fektet a minőségi fenntartható és környezettudatos otthonok kialakítására. Az egyedi hőszivattyús hűtés-fűtés megoldásnak, illetve fokozott hőszigetelésnek köszönhetően a lakások energiaigénye minimális.
KIS LAKÁSSZÁM – BARÁTSÁGOS KÖRNYEZET
A kis lakásszámú társasházak barátságosabb, kellemesebb lakókörnyezetet biztosítanak.
Ezt az érzést fokozza az épületen belüli zöldfelület-kialakítás.
PENTHOUSE – BELVÁROSI LUXUS
Megengedhet magának egy kis luxust, de nem szeretne kiköltözni a belvárosból?
Vásárolja meg az 5. emeleten kialakított három egyedülálló ingatlanunk egyikét!
Hatalmas panorámás terasz, jakuzzi, szauna, csend és nyugalom a város felett.